Запил дверных коробок своими руками. Как правильно запилить коробку для межкомнатной двери?
- Запил дверных коробок своими руками. Как правильно запилить коробку для межкомнатной двери?
- Саморезы для сборки дверной коробки. Собираем коробку и подгоняем по высоте
- Подготовка дверной коробки. Что такое дверная коробка?
- Как сделать дверную коробку из бруса. Выбираем материал
- Установка дверной коробки. Сборка коробки
- Как установить дверную коробку без порога. Основные правила установки
- Сборка дверной коробки по. Сборка несущей конструкции
Запил дверных коробок своими руками. Как правильно запилить коробку для межкомнатной двери?
Сборка дверной коробки
Вступление
В этой статье я расскажу, как осуществляется сборка дверной коробки , а именно как запилить и собрать дверную коробку в двух разных исполнении:
- Запил коробки под 45°
- Запил коробки под 90°.
Сборка дверной коробки
Дверная коробка с уплотнителем

коробка с уплотнителем

Дверная коробка без уплотнителем
Межкомнатная дверь состоит из дверного полотна, навесных петель, врезного замка или защелки, а также дверной коробки. Как правило, дверная коробка, для дверей среднего ценового класса, поставляется в виде «конструктора» сделай сам, то есть в разобранном виде. Состоит коробка из трех профилированных деревянных брусов, покрытых шпоном или пленкой под цвет дверного полотна. Длина вертикальных брусов-2100-2200 мм;горизонтального бруса-1000-1100 мм. Отличаются дверные коробки, от каждого производителя, своей подготовленностью к установке.
Дверная коробка с заводским запилом 45 градусов.
У некоторых производителей дверные коробки уже отпилены и подрезаны под углом 45°, как раз под размер полотна и полностью подготовлены для сборки. Но большество коробок поставляются в не подготовленном виде. Их нужно подготовить.
Рассмотрим два варианта сбора дверной коробки
Вариант 1. Запил и сборка коробки под углом 45°

Запил коробки под 45 градусов

Правильная стыковка дверной коробки в углах

Запил коробки на стусле

Дверная коробка готова к сборке
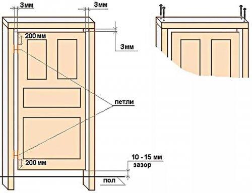
- Возьмите два будущих вертикальных брусков коробки. При размере полотна 2000 мм и чистовом напольном покрытии в 30 мм длина короткой стороны бруса должен быть-2000+30+зазор межу полотном и чистовым полом:10-15 мм=2040-2045 мм.
- Поставьте отметку на внутренней стороне Брусов коробки по необходимой длине полотна.
- Отпилите лишнее под углом. Угол отпила бруса должен быть по внутренней стороне 135° или по наружней -45°. Длинна обоих вертикальных Брусов коробки должна быть одинаковая.
- Такую же процедуру проделайте и с горизонтальным коротким брусом. Отличие только в том, что отпиливать придется с двух сторон. Будьте внимательны с размерами. Главное во всех столярных работах: Семь раз отмерь, один раз отрежь.
При разметке не забывайте, что зазор межу полотном и самой коробкой должен быть 3 мм.
Вариант 2. Сборка коробки под углом 90°

Сборка коробки под углом 90°

Вид дверной коробки для прямого соединения

Соединение дверной коробки под 90 градусов

Подготовка к прямому соединению коробки
При этом варианте сборки, в вертикальных стойках будущей коробки удаляется, так называемый притвор коробки, на толщину вертикального бруса. См. рисунок.
Сборка дверной коробки по шагам

Сборка дверной коробки

Сбор дверной коробки с запилом
После подготовки коробки приступаем к её сборке.
Саморезы для сборки дверной коробки. Собираем коробку и подгоняем по высоте
Следующий этап — сборка дверной коробки. Делать это лучше при помощи саморезов. Если углы планок запилены под 45o, наискосок просверливаем отверстия под саморезы на боковой планке, как показано на фото. Потом прикладываем ее к горизонтальному бруску и скручиваем саморезами.

При сборке дверной коробки сверлим отверстия под саморезы — так древесина или МДФ не растрескаются
Если углы коробки запилены под 90o, работать несколько проще, но все равно желательно просверлить отверстия. Это точно необходимо, если коробка сделана из МДФ: так будет гарантия того, что материал не разрушится.
Верхний брусок приставляют к боковому, выравнивают края. Проделывают два отверстия: верхний брусок насквозь и в торец бокового. Понятнее будет, если взглянуть на фото.

Если углы в коробке прямые (90 градусов), то сборка немного другая
Соединив таким образом планки, получаете готовую коробку. Нижняя планка сегодня практически не используется, потому снизу ничего нет. Проверьте еще раз, в собранном состоянии коробка больше дверного полотна на 3-4 мм (и шире и длиннее). Можете проверить.
Часто высота стоек больше, чем необходимо. Берете рулетку, измеряете высоту дверного проема, вычитаете 1-2 см, которые будут заполнены пеной. Это и будет высота коробки. Меряете с каждой стороны проема отдельно: Еще раз перемеряв, откладываете это значение на стойках собранной коробки, чертите линию распила. Лишнее отрезаете. Половина установки дверной коробки уже сделана вами, причем своими руками.
Подготовка дверной коробки. Что такое дверная коробка?
Коробка является частью дверного блока. Применяется в моделях распашного типа, к ней на петли подвешивается створка. Устанавливают лудку входной или межкомнатной двери в проём на стене. Самым популярным материалом для изготовления коробок считается массив. Дешевле вариант – МДФ и другие комбинации из древесных отходов. Лудки могут иметь на торце нарезные пазы, предназначенные для фиксации наличников и доборов.

Скрытую коробку двери прячут при монтаже в стене, она изготавливается из алюминия. Невидимыми остаются даже петли.

Устройство дверной рамы предполагает использование трёх или четырёх элементов. П-образные лудки без порога состоят из двух стоек, соединённых вверху поперечиной. У полноценной лудки четвёртым элементом выступает порог. Такие рамы обязательны при установке дверного блока в санузел или на вход в помещение.
Продаются коробки обычно комплектом с доборами и наличниками. Дополнительные элементы помогают облагородить дверной проём. Устройство лудки различается по следующим признакам:
- с доборами или без;
- с телескопическими наличниками или планками без пазов;
- с наличием или отсутствием уплотнителя;
- с накладной или врезной фурнитурой.

Удобной в монтаже и использовании считается коробка с телескопическими наличниками, а также укомплектованная уплотнителем.
Форма и размеры конструкции
Основа-короб должен соответствовать параметрам двери (ширине и высоте), для того чтобы обеспечивать полный охват и поддержку конструкции. Важным нюансом относительно полотна является назначение помещения, для которого оно предназначено. Потому что от этого будут зависеть требования к вентиляции. В парных и банях двери должны обеспечивать надёжную теплоизоляцию, поэтому проём заделывают максимально герметично.
Ванную комнату, наоборот, нужно хорошо проветривать, для того чтобы не скапливалась лишняя влага и не появлялась плесень. Поэтому зазор между коробом и дверью должен быть немного шире. А также требуется хорошая вентиляция для помещений, в которых установлено газовое оборудование.
Для обеспечения надёжной защиты от утечки тепла из четырёх брусков сооружают прямоугольную раму, которая будет служить коробкой для двери. Вертикальные стойки станут петельным и притворным элементом, а поперечные – верхней опорой и порогом.

Для свободного движения полотна зазор должен быть между дверью и стойками около 3 мм. В тех случаях, когда необходим приток воздуха в помещение, короб собирают из трёх брусков, а на месте порога делают зазор около 10–15 мм. Вдоль вертикальных стоек и притолоки оставляют стандартное расстояние в 3 мм.

Коробка с порогом в сборе немного выше, чем без него. Разница составляет около 20 мм. Важно учесть этот нюанс, чтобы не пришлось укорачивать дверь. Потому что подогнать полотно можно только в том случае, если оно изготовлено из дерева.
Зазор между дверной коробкой и проёмом должен быть не меньше 10 мм с каждой стороны, чтобы конструкцию легко можно было установить и зафиксировать.
Разновидности дверных коробов
Чтобы правильно установить дверной короб в стеновой проем, предварительно рекомендуется изучить конструкцию изделия.
Коробка является несущим элементом дверной конструкции, который принимает на себя нагрузку полотна. Она состоит из одной горизонтальной и двух вертикальных планок, соединяющихся между собой. Крепление короба осуществляется непосредственно к стенкам входного или межкомнатного проема.
Несущий элемент двери формирует ровный портал, а также обеспечивает надежное крепление самой двери. С одной стороны рамы коробки крепятся петли, на которые навешивается полотно, с другой стороны выполняется отверстие для замочного механизма и крепится ответная планка.
Положение двери в первую очередь зависит от правильного монтажа несущей составляющей (короба). Поэтому именно данный этап работ является приоритетным. Даже из-за незначительного перекоса двери буду плохо закрываться, затираться и быстро изнашиваться. Также важно обращать особое внимание на прочность рамы, учитывая вес материала, из которого изготовлено полотно.

Дверные коробки, предлагаемые на рынке, классифицируются по разным показателям. Одним из них является технология сборки конструкции: прямая, диагональная или шип в паз. Установка в дверной проем коробки межкомнатной двери выполняется только после предварительной сборки конструкции.
В первом случае элементы дверной коробки соединяются между собой перпендикулярно. Во втором – края планок обрезаются под 45 градусов. В обоих случаях для их соединения используются шурупы. Самым надежным способом соединения конструкции является шип в паз, который вырезан непосредственно в планке.
Также коробки можно разделить на разные типы по материалу изготовления. Для их производства используют сталь, дерево, пластик и МДФ панели. Сегодня на входе в квартиры и частные дома чаще всего устанавливают металлические конструкции. Они наиболее прочные, надежные и долговечные. Деревянные двери устанавливаются в межкомнатные проемы, а пластиковые — на балконах.
Как сделать дверную коробку из бруса. Выбираем материал
Здесь у меня нет однозначного ответа, так как выбор зависит от ваших предпочтений и бюджета. Приведу примеры самых распространенных материалов, используемых для дверных коробок.
Двери из МДФ
МДФ — это древесно-волокнистая плита. Двери дешевые, но при этом неплохо смотрятся. К достоинствам можно отнести легкость и экологичность. Минусы — это пониженная ударопрочность, плохая шумоизоляция и непродолжительный срок службы.
Клееный массив
Клееная доска или «евробрус».
Данные двери состоят не из цельного дерева, а из склееных под высоким давлением частей. Стыков на них практически не видно. Двери довольно прочные и стоят немного дороже МДФ. Цена и качество приемлимые.
Цельные деревянные двери
Двери на порядок дороже клееных. Прочные и долговечные. Недостатком является неправильная обработка производителем, вследствие чего дерево чрезмерно напитывается влагой.
Двери из ДСП и ДВП
Древесно-волокнистые или древесно-спресованные плиты. Эти двери очень дешевы, так как изготавливаются из остатков материала. Достоинство этих дверей — хорошая механическая прочность, и довольно неплохая звуко- и шумоизоляция. Недостатком являются низкая влагоустойчивость, а также наличие в клее летучего вещества, пагубно влияющего на здоровье. Еще один аспект — это сложность монтажа, так как саморезы в таких дверях плохо держатся.
Помимо описанных еще существуют пластиковые, стеклянные, алюминиевые, шпонированные. Двери с сотовым наполнителем, ламинированные и др.
Выбор материала зависит от вас, но он должен быть целесообразным и практичным.
Установка дверной коробки. Сборка коробки
При изучении, какие трубы лучше для водопровода и проще монтируются, приходится рассматривать множество металлических и пластиковых вариантов. С дверными блоками для интерьеров гораздо проще. Практически все они сделаны из пиломатериалов. Конструкции из пластика или алюминия в частных домах встречаются крайне редко. В итоге работать при установке межкомнатных дверей приходится только с древесиной, что не так уж сложно.

Виды дверных коробок
Собрать деревянную дверную коробку можно двумя способами:
- срезом углов верхней перекладины и вертикальных стоек под 45 градусов;
- соединение перекладин и стоек встык без уголковых обрезов.
Первый вариант смотрится элегантней. Однако второй более прост в самостоятельном раскрое. Только при нем надо быть очень аккуратным при срезе бортика на верхней перекладине, чтобы вертикальные бруски встали ровно и без зазоров. При этом выбирать способ сборки внешнего каркаса межкомнатной двери рекомендуется в зависимости от дизайна интерьера.

Необходимые размеры и допуски для сборки дверной коробки
Чтобы полотно потом не сидело в коробе слишком плотно, при обрезке перекладины следует заложить по 3 мм дополнительно слева и справа. Скрепление горизонтальной и вертикальных деталей производится в углах сверху саморезами в торец стоек снаружи. А чтобы при вкручивании этих шурупов бруски коробки не треснули, надо вначале просверлить в отверстия тонким сверлом (на миллиметр тоньше, чем крепеж).
При этом несущую стойку, где будут петли, не стоит на этом этапе установки двери притягивать до конца жестко. Ее следует лишь слегка зафиксировать на предназначенном месте.
Как установить дверную коробку без порога. Основные правила установки
Важными характеристиками хорошего монтажа являются примерно одинаковые по толщине щели между дверью и ее коробкой. Если дверное полотно при установке четко входит в притвор и нигде не цепляется за дверную коробку, а щель по всей длине притвора составляет около 2-3 мм, это можно считать превосходным результатом установки дверного блока.
Качество монтажа также зависит от самого дверного проема. Если по отношению со стеной он будет далек от вертикали, то качественно установить в таком месте дверь без порога — практически невыполнимая задача.
Инструменты для монтажа двери.
Дело в том, что в процессе монтажа двери должны устанавливаться только вертикально и равняться на одну из плоскостей стены, а это приведет к тому, что она верхом или низом неизбежно выйдет за границы неровной стены. Это приведет к тому, что наличник, прикрепленный к дверной коробке на финальной стадии работы, будет в одном месте примыкать к стене, а в другом — отходить от нее. Конечно, это будет выглядеть некрасиво, и, чтобы уберечься от подобных негативных эксцессов, нужно устанавливать двери после отделочных работ со стеной.
Но не все так печально, если учесть, что выровнять стену или ее небольшую часть, прилегающую к дверному проему, можно после установки дверной коробки. В таком случае на момент проведения «грязных» работ двери лучше снять, а коробку оклеить строительным скотчем. Применять какой-либо другой скотч нежелательно, поскольку только строительный имеет бумажную основу, следовательно, он не оставит на деликатном шпоне никаких следов (в отличие от простого скотча). Его можно без опасения клеить на любую поверхность, даже на бумажные обои.
Сборка дверной коробки по. Сборка несущей конструкции
Если коробка приобретена в сборе вместе с дверью, то в подготовке она не нуждается — можно сразу приступать к установке, единственное, предварительно следует закрепить подвесы, о чем мы расскажем ниже. Но, нередко изделие продается в виде одного профиля, который покупатель сам должен нарезать и затем собрать. Цена профиля несколько ниже готового изделия, что позволяет сэкономить на установке новой двери.
Итак, сборка конструкции выполняется следующим образом:
| Иллюстрации | Технология |
Нанесите на профиль разметку согласно размерам проема | Профиль нужно разметить согласно полученным размерам, и нарезать на три планки — две стойки по высоте минус 10 см, и одну перемычку. Длина перемычки, соответственно, должна быть на 10 см меньше ширины проема. |
Нанесите линию для зарезки смежных краев профиля | До того, как выполняется сборка дверной коробки — под 45 градусов зарезаются края стоек и перемычки. Но, предварительно необходимо выполнить разметку следующим образом:
Подобным образом нужно разметить верхние края стоек и края планки между ними. Совет! Чтобы не заниматься разметкой и быстро подрезать края деталей под 90 градусов, воспользуйтесь стуслом — это приспособление представляет собой специальный шаблон. |
Соедините стойки с перемычкой при помощи шурупов | Промажьте места стыков клеем и скрепите все планки шурупами. При этом убедитесь, что все углы ровные — под девяносто градусов. |
Закрепите подвесы на тыльной стороне конструкции | С тыльной стороны конструкции закрепите шурупами подвесы, которые предназначены для сборки каркаса под гипсокартон. Расстояние между подвесами сделайте 40-50 см. |



