Установка межкомнатных дверей без порога своими руками. Основные правила установки
- Установка межкомнатных дверей без порога своими руками. Основные правила установки
- Как установить дверную коробку без порога. Основные правила установки
- Установка межкомнатных дверей с порогом. Как сделать разметку
- Входная дверь без порога. Как лучше ставить двери с порогом или без порога
- Установка межкомнатных дверей своими руками. Пошаговая инструкция
- Как самому установить межкомнатную дверь без порога. Как установить межкомнатную дверь без порога
- Установка дверей своими руками. Пошаговая инструкция по монтажу
- Простая установка межкомнатных дверей. Оптимальное время для монтажа
Установка межкомнатных дверей без порога своими руками. Основные правила установки
Важными характеристиками хорошего монтажа являются примерно одинаковые по толщине щели между дверью и ее коробкой. Если дверное полотно при установке четко входит в притвор и нигде не цепляется за дверную коробку, а щель по всей длине притвора составляет около 2-3 мм, это можно считать превосходным результатом установки дверного блока.
Качество монтажа также зависит от самого дверного проема. Если по отношению со стеной он будет далек от вертикали, то качественно установить в таком месте дверь без порога – практически невыполнимая задача.

Инструменты для монтажа двери.
Дело в том, что в процессе монтажа двери должны устанавливаться только вертикально и равняться на одну из плоскостей стены, а это приведет к тому, что она верхом или низом неизбежно выйдет за границы неровной стены. Это приведет к тому, что наличник, прикрепленный к дверной коробке на финальной стадии работы, будет в одном месте примыкать к стене, а в другом – отходить от нее. Конечно, это будет выглядеть некрасиво, и, чтобы уберечься от подобных негативных эксцессов, нужно устанавливать двери после отделочных работ со стеной.
Но не все так печально, если учесть, что выровнять стену или ее небольшую часть, прилегающую к дверному проему, можно после установки дверной коробки. В таком случае на момент проведения «грязных» работ двери лучше снять, а коробку оклеить строительным скотчем. Применять какой-либо другой скотч нежелательно, поскольку только строительный имеет бумажную основу, следовательно, он не оставит на деликатном шпоне никаких следов (в отличие от простого скотча). Его можно без опасения клеить на любую поверхность, даже на бумажные обои.
Как установить дверную коробку без порога. Основные правила установки
Важными характеристиками хорошего монтажа являются примерно одинаковые по толщине щели между дверью и ее коробкой. Если дверное полотно при установке четко входит в притвор и нигде не цепляется за дверную коробку, а щель по всей длине притвора составляет около 2-3 мм, это можно считать превосходным результатом установки дверного блока.
Качество монтажа также зависит от самого дверного проема. Если по отношению со стеной он будет далек от вертикали, то качественно установить в таком месте дверь без порога — практически невыполнимая задача.
Инструменты для монтажа двери.
Дело в том, что в процессе монтажа двери должны устанавливаться только вертикально и равняться на одну из плоскостей стены, а это приведет к тому, что она верхом или низом неизбежно выйдет за границы неровной стены. Это приведет к тому, что наличник, прикрепленный к дверной коробке на финальной стадии работы, будет в одном месте примыкать к стене, а в другом — отходить от нее. Конечно, это будет выглядеть некрасиво, и, чтобы уберечься от подобных негативных эксцессов, нужно устанавливать двери после отделочных работ со стеной.
Но не все так печально, если учесть, что выровнять стену или ее небольшую часть, прилегающую к дверному проему, можно после установки дверной коробки. В таком случае на момент проведения «грязных» работ двери лучше снять, а коробку оклеить строительным скотчем. Применять какой-либо другой скотч нежелательно, поскольку только строительный имеет бумажную основу, следовательно, он не оставит на деликатном шпоне никаких следов (в отличие от простого скотча). Его можно без опасения клеить на любую поверхность, даже на бумажные обои.
Установка межкомнатных дверей с порогом. Как сделать разметку
Установка дверей своими руками потребует от новичка трудозатрат. Если мастер завершит монтаж за 1 день, то начинающий строитель может потратить намного больше времени. Этот момент нужно учитывать, если требуется экстренный монтаж конструкции.
Важно выполнить все этапы в четкой последовательности, строго соблюдая строительные нормы. Ряд дверных блоков уже имеет крепления для монтажа. Но есть изделия, коробку которых придется собирать своими силами. Они представляют собой наборы, в которые входят бруски из дерева и планок для наличников. Кроме того, в готовый набор производитель включает дверное полотно.

Решив собрать коробку своими силами, можно воспользоваться разными методами. Нужно обратить пристальное внимание на качество работы, ведь при возникновении даже малейшей погрешности в измерениях придется либо делать всю работу заново, либо покупать новые части конструкции.

Установить дверь в межкомнатную перегородку можно с порогом и без него. Самым простым вариантом станет монтаж конструкции без порога, а вот 2 вариант потребует наличия бруса-планки. В этом случае готовая конструкция будет иметь вид прямоугольника.
Пошаговая инструкция станет подспорьем. Перед тем как начать работу, необходимо снять точные размеры. Сначала нужно узнать габариты проема. Потом следует сделать расчеты, определив размеры боковых стоек и притолоки. Затем нужно определить оптимальный размер полотна двери, не забывая о технологических зазорах. Сделав разметку, элементы отпиливают при помощи ножовки, а потом начинается сборка межкомнатных дверей.
Важно правильно рассчитать толщину коробки, которая должна быть не меньше толщины стены. Для того, чтобы измерения были четкими, нужно использовать рулетку. Начинающие строители не должны полагаться на то, что одинаковые элементы, например, боковые стойки, будут «зеркальными». Чтобы избежать погрешности при измерении, каждый элемент нужно измерять отдельно с правой стороны, а потом и с левой. Если в процессе будут обнаружены отклонения, то их следует обязательно учесть в дальнейшей работе.

Как установить межкомнатную дверь самостоятельно? Особо внимательно нужно выставлять притворный брус, который должен иметь зазор под монтажную пену. Достаточно выделить на него 1 см. Аналогично следует поступить с притолокой и петельным бруском.
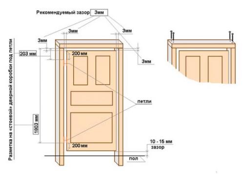
Зазор с внутренней стороны должен быть намного меньше, достаточно 0,3 см. Если межкомнатная дверь будет с порожком, то зазор должен идти по всему периметру конструкции. При монтаже конструкции без порожка между полом и полотном нужно оставить щель. Среднее значение составляет 1 см. Такая сборка и установка межкомнатных дверей будет считаться выполненной правильно.
На вертикальных стойках необходимы отметки для отпиливания, которые определяют на внутренней стороне бруска. При недостаточных размерах отверстия его необходимо увеличить. Если отверстие слишком велико, то его уменьшают путем укладки гипсокартона, вырезанного по размеру.

Входная дверь без порога. Как лучше ставить двери с порогом или без порога

Входные двери ставятся с порогами, а межкомнатные можно устанавливать с порогами и без них. А как лучше и правильно?
О плюсах и минусах вариантов установки
Преимущества и недостатки обоих способов хоть и единичны, но в повседневной эксплуатации весьма ощутимы.
Двери с порогами:
- Проем между комнатами закрывается более герметично.
- Лучше звуко- и теплоизоляция.
Планка порога создает неудобства при входе (спотыкаешься, запинаешься) и при уборке помещений.
При установке межкомнатной двери без порога все плюсы первого варианта пропадают (они чаще всего некритичны), а вот минус становится заметным плюсом.
Поэтому в большинстве случаев межкомнатные двери ставят без порогов.
Когда лучше (но необязательно) ставить дверь с порогом
- В «глухих» непроходных помещениях типа кладовки, чтобы там меньше собиралась пыль.
- Если в помещениях объективно поддерживается разная температура. Например, при необходимости изолироваться от холодной прихожей или веранды.
- В некоторых случаях можно ставить поргог при разных уровнях пола в соседних комнатах.
Двери в ванную и санузел
Еще один вопрос, требующий пояснения — ставить двери в туалет и ванную с порогом или без него?
Здесь есть один важный нюанс. Эти помещения требуют вентиляции, иначе в ванной после водных процедур будет держаться повышенная влажность, с потолка свисать капли а по стенам течь, а в туалете будут застаиваться запахи.
Поэтому в них монтируется вытяжка, но вентиляция не будет работать без притока воздуха. И у вас будет выбор — ставить дверь с порогом и держать ее приоткрытой после каждого пользования местами, или оставить под дверью зазор в 1-5-2 см, установив ее без порога.
Я всегда использую второй вариант, и, поверьте, он никак не посягает на интимность посещения ванной или туалета.
Установка межкомнатных дверей своими руками. Пошаговая инструкция
Если устанавливаемые межкомнатные двери точно подходит под имеющийся проем, то их монтаж рекомендуется производить на завершающем этапе ремонта коттеджа или квартиры. Тогда, когда уже побелен потолок и поклеены обои. Но если дверной проем нужно расширять, то делать эту работу стоит на этапе черновой отделки. Грязи и пыли при разбивании стен образуется немало.

Пошаговая инструкция установки межкомнатных дверей
Непосредственно установка межкомнатных дверей своими руками производится в шесть шагов:
- Сборка коробки.
- Установка петель.
- Навес дверного полотна.
- Монтаж порога и доборов.
- Крепление наличников.
- Монтаж фурнитуры двери (замков и ручек).
Сборка коробки
При изучении, какие трубы лучше для водопровода и проще монтируются, приходится рассматривать множество металлических и пластиковых вариантов. С дверными блоками для интерьеров гораздо проще. Практически все они сделаны из пиломатериалов. Конструкции из пластика или алюминия в частных домах встречаются крайне редко. В итоге работать при установке межкомнатных дверей приходится только с древесиной, что не так уж сложно.

Виды дверных коробок
Собрать деревянную дверную коробку можно двумя способами:
- срезом углов верхней перекладины и вертикальных стоек под 45 градусов;
- соединение перекладин и стоек встык без уголковых обрезов.
Первый вариант смотрится элегантней. Однако второй более прост в самостоятельном раскрое. Только при нем надо быть очень аккуратным при срезе бортика на верхней перекладине, чтобы вертикальные бруски встали ровно и без зазоров. При этом выбирать способ сборки внешнего каркаса межкомнатной двери рекомендуется в зависимости от дизайна интерьера.

Необходимые размеры и допуски для сборки дверной коробки
Чтобы полотно потом не сидело в коробе слишком плотно, при обрезке перекладины следует заложить по 3 мм дополнительно слева и справа. Скрепление горизонтальной и вертикальных деталей производится в углах сверху саморезами в торец стоек снаружи. А чтобы при вкручивании этих шурупов бруски коробки не треснули, надо вначале просверлить в отверстия тонким сверлом (на миллиметр тоньше, чем крепеж).
При этом несущую стойку, где будут петли, не стоит на этом этапе установки двери притягивать до конца жестко. Ее следует лишь слегка зафиксировать на предназначенном месте.
Установка петель
Петли сначала навешиваются на полотно с отступом сверху и снизу в 200–250 мм. Шарниры у межкомнатных дверей бывают накладными («бабочки») и потайными. Первые достаточно приложить к торцу внутренней малой частью и закрепить саморезами. А для вторых придется предварительно вырезать канавки.

Необходимые замеры для установки петель
Далее полотно вставляется в уложенный на полу короб. И производится разметка мест крепления петель на стойках. Но сначала между торцом полотна и деталями коробки надо вставить деревяшки (кусочки ДВП) толщиной в 3 мм, чтобы там потом остались зазоры.
Затем незатянутая до конца несущая стойка откручивается от перекладины и к ней прикручиваются петли. А потом она ставится на место и окончательно фиксируется саморезами.
Установка полотна двери
После практически полностью собранную межкомнатную дверь следует поставить в проем и отрегулировать по вертикали и горизонтали с помощью уровня. Для фиксации блока в нужном положении применяются клинья и деревяшки.
Заделка щелей, отверстий и установка добора
Между внешней стороной блока и торцом стены допускается оставлять просвет толщиной от 0,5 до 3 см. Но если дом деревянный, то этот зазор должен быть не менее 1,5 см на случай усадки сруба.

Варианты добора для межкомнатных дверей
Крепление коробки осуществляется анкерными болтами, которые размещаются под петлями и замочной накладкой. Для этого вначале в вертикальных стойках с обеих сторон просверливаются отверстия до стены. Затем блок убирается и сверлится уже сама межкомнатная перегородка. Если работать дрелью без уборки короба, то есть серьезный риск нечаянно повредить его декоративное покрытие.
Также коробку закрепить можно металлическими подвесами. Они сначала прикручиваются к стойкам, а затем после загиба на стену притягиваются к ней дюбель-саморезами.
Если стена толстая, то потребуется ставить доборы (фальш-откосы, доборный брус). У короба есть так называемая зона охвата. Это внутреннее пространство и необходимо задекорировать. Изготавливаются доборы из массива, ДВП или МДФ. После распила под необходимые размеры их надо просто приставить к коробке и прикрутить к ней длинными саморезами. Затем по всему периметру проема под них также подкладываются распорочные клинья и распорка посередине.

Инструкция по монтажу добора
Дальше остается лишь распылить монтажную пену и оставить блок в закрытом состоянии на некоторое время в покое. Продолжать устанавливать межкомнатную дверь рекомендуется уже на следующий день. Вспененный клей должен полностью застыть и зафиксировать дверной короб.
Как самому установить межкомнатную дверь без порога. Как установить межкомнатную дверь без порога
Если соблюсти четко установленную последовательность действий, как того требует пошаговая инструкция, установка межкомнатной двери без порога своими руками с использованием фото становится вполне выполнимым делом. Но важно запомнить, что каждая ошибка плохо отразится на результате.

Базовые правила
Чтобы собственноручно поставить двери между комнатами и сделать это как полагается, очень важно придерживаться специальных советов. Правила монтажа помогут смонтировать конструкцию, не наделав в процессе непоправимых ошибок. Благодаря этому дверь прослужит долго.
Между дверью и лудкой обязано оставаться небольшое пространство – буквально в пару-тройку миллиметров. Когда полотно установлено как нужно, оно открывается и закрывается свободно.

В ходе установки блок обязан располагаться ровно. Для этого выравнивание проходит по одной из стен. Если вторая стена будет неровной, это станет заметно по окончании монтажа – будет перекос. Чтобы сгладить такие дефекты, обычно устанавливают порог.
Прежде чем заняться собственноручной установкой двери между комнатами без наличия порога, надо выполнить предварительную подготовку – выровнять стены, положить покрытие на пол.

Если же коробка уже поставлена, есть необходимость снять само полотно, а наличники оклеить липкой лентой, чтобы не запачкать.
Что потребуется
Установка дверной коробки всегда берет начало с того, что мастер подготавливает свои инструменты и материалы. Для качественно выполненной работы необходимо достать:
- электродрель. В дополнение к данному электроинструменту потребуется также набор сверл по древесине и камню.
- маркер и рулетка. Для проведения замеров и разметки.
- ножовка и стусло. Для нарезания планок. Дверям необходима завершающая отделка наличниками и доборами.
- отвес и строительный уровень. Дверь надо ставить ровно.
- фреза. С ней удобно делать выборки. Но ее можно заменить на молоток и стамеску.

Что касается материалов:
- деревянные клинья разной степени толщины;
- строительная пена;
- саморезы.
Очень важно сразу же предварительно решить, как именно ставить дверь, чтобы не были заметны крепежи. Если был выбран скрытый монтаж, тогда еще потребуются подвесы. Лудку можно прикрепить анкерами. Шляпки спрятать в углублениях, а после покрыть их шпаклевкой и краской.
Как собрать коробку
Любая установка межкомнатной двери начинается с распаковки приобретенного блока и внимательного осмотра комплектующих деталей на предмет брака.

Когда коробка реализуется разобранная уже с креплениями, собрать ее будет несложно. Рама обычно продается из деталей, составленных по размерам. Стандартно детали всего три:
- петельная (боковая);
- притворная (боковая);
- притолочная (потолочная).

Если для такой двери предусматривается и порожек, тогда элементов будет четыре.
Чтобы собрать раму, из стоек выбивают заглушки на пару с соединительными стержнями. Края элементов обязаны состыковаться так, чтобы между собой совпали все отверстия для монтажа. Молотом нужно забить все соединительные штырьки, а углубления перекрыть специальными заглушками.
Установка дверей своими руками. Пошаговая инструкция по монтажу
Существует три эффективных способа установки металлических дверей своими руками.
Применяются анкерные болты, если коробка оснащена специальными технологическими отверстиями. Также можно вбить в стену арматуру, и приварить к ней проушины. Металлические захваты – изделия, специально разработанные для конкретной модели. Сначала устанавливается коробка, затем врезаются навесы, и уже после крепится полотно. При этом лудка должна иметь не менее 10 точек крепежа: по три по бокам, две сверху и столько же снизу.
Крепление коробки на анкерные болты
Практически все стандартные модификации предполагают именно такой способ крепежа. Алгоритм монтажа входной двери в частном доме или квартире в данном случае предполагает:
Практически все стандартные модификации предполагают именно такой способ крепежа. Алгоритм монтажа входной двери в частном доме или квартире в данном случае предполагает:
- Все элементы, включая полотно, замки, ручки, собираются и проверяются на плавность хода и свободность открытия.
- Коробку высвобождают, сняв все лишнее, так как оно будет мешать на последующем этапе сборки конструкции.
- Ее устанавливают в проем, поставив на 1,5-сантиметровые подкладки. С помощью ответа добиваются вертикального положения.
- Клиньями достигается фиксация. Их закладывают между лудкой и стеной, полом и потолком, чтобы конструкция не двигалась.
- Навешивается полотно, которое необходимо открыть на 45 градусов. Если все сделано правильно, оно останется в таком положении.
- Его снова демонтируют, а сквозь технологические отверстия сверлят углубления под анкера после удаления утеплителя.
- Молотком вбивают анкерные крепежные элементы до характерного щелчка. Не переусердствуйте с силой, чтобы их не повредить.
- Ключом с накидной головкой ввинчивают анкер и затягивают до упора. Смазывают петли. Устанавливают полотно, укладывают утеплительный материал.
Важно после постановки каждого анкера проверять вертикальность, чтобы не допустить перекосов. Окончательная проверка предполагает осмотр, закрытие, открытие, работу ручек и замков.
Важно после постановки каждого анкера проверять вертикальность, чтобы не допустить перекосов. Окончательная проверка предполагает осмотр, закрытие, открытие, работу ручек и замков.
Монтаж дверной коробки сваркой
В основном самостоятельный монтаж входной двери выполняется, как сказано выше, разве что не придется вбивать и закручивать болты. В стене высверливают отверстия, куда загоняют арматурные штыри. После сварочным полуавтоматом приваривают их к проушинам.
Важно правильно вымерять месторасположение прутьев. После фиксации каждого соединения проверяют, чтобы лудка оставалась вертикальной. Проверка выполняется в той же последовательности, описанной в пошаговой инструкции для предыдущего способа.
Крепление коробки с помощью захватов
Перед тем, как установить входную дверь, обратите внимание на качество материалов стен и их толщину. Если ширина меньше 15 сантиметров, устанавливают железную обрешетку. Затем сваривают ее с дверным каркасом. К блоку приваривают пластины, которые со стороны помещения должны доставать до решетки. После выравнивания его распирают клиньями, а затем окончательно крепят, периодически проверяя, чтобы вертикальная ось оставалась перпендикулярной горизонту.
Перед тем, как установить входную дверь, обратите внимание на качество материалов стен и их толщину. Если ширина меньше 15 сантиметров, устанавливают железную обрешетку. Затем сваривают ее с дверным каркасом. К блоку приваривают пластины, которые со стороны помещения должны доставать до решетки. После выравнивания его распирают клиньями, а затем окончательно крепят, периодически проверяя, чтобы вертикальная ось оставалась перпендикулярной горизонту.
Простая установка межкомнатных дверей. Оптимальное время для монтажа
Полная установка дверей – это занятие непростое и достаточно грязное, поэтому нужно правильно выбирать этап ремонта, на котором уже можно работать над проёмами. Внимательно изучив процесс монтажа, начинаешь понимать, что нужно выбрать такой момент, чтобы:
- с одной стороны установка не отразилась на состоянии сделанного ремонта, чтобы обои, напольное покрытие и прочие элементы не пострадали;
- с другой стороны, чтобы покрытие двери нельзя было повредить при выполнении ремонтных работ.
- если придётся удалять старую коробку, расширять или сужать проем, то лучше сделать это на первых этапах ремонта;
- при полном совпадении стандартных размеров изделий и дверного проёма, приступать к монтажу можно после отделки потолка и стен;
- можно разделить процесс на два этапа, сначала смонтировать коробку, а полотно и наличники вешать после поклейки обоев;
- если установка дверной коробки доверена опытным специалистам, то монтаж можно перенести на заключительный период ремонта.
К моменту монтажа все элементы должны быть приобретены. При самостоятельной сборке нужно запастись инструментом. Если монтажом будут заниматься приглашённые специалисты, то нужно уточнить, какие расходные материалы должен приобрести заказчик (монтажную пену, крепежи и так далее), и что предоставляют исполнители.
Выбор варианта установки двери
Существует три варианта решения вопроса, как поставить межкомнатную дверь.
Самый простой, но дорогой способ – заказать дверь вместе с монтажом. В этом случае заказчик только называет модель и оплачивает работу, всю остальную работу, включая замеры, доставку и монтаж выполняют приглашённые специалисты.
Второй способ предполагает, что дверь с коробкой и прочими комплектующими приобретается самостоятельно, а монтаж выполняют ремонтники.
Третий, наиболее экономный и самый рискованный вариант заключается в том, что застройщик сам выполняет все работы. Это вполне возможно, но нужно иметь определённый опыт строительных работ.
Во втором и третьем случае владельцу придётся самостоятельно выполнить замеры проёма, чтобы определить размеры полотна.
Как правильно сделать замеры
Для этого понадобится рулетка с выдвижным механизмом.
Если меняется старая дверь, то измерения можно выполнить двумя способами:
- приступить к снятию мерок после удаления старой коробки.
В новом доме проёмы обычно изначально имеют стандартные размеры, которые указываются на плане. Но на всякий случай, лучше замерить высоту и ширину проёма. Чтобы определить нужные параметры полотна по горизонтали, нужно от полученных чисел:
- отнять ширину коробки х 2
- прибавить 5 мм на установку петель и свободное открывание.
При расчёте высоты замеряется вертикаль проёма, от неё нужно отнять высоту порога (если он будет) и зазор на открывание от 2,5 до 4 см.
Полученные данные сравниваются с типовыми размерами дверей. При небольшой разнице ширину и высоту проёма можно будет уменьшить доборами. Если результаты существенно отличаются от стандартных норм, то можно поступить по-разному:
- сузить или расширить дверной проем;
- заказать изготовление дверей по имеющимся меркам.
Прежде чем решиться на такие кардинальные меры, лучше пригласить специалиста, чтобы он провёл замеры и озвучил свои выводы.
Сбор дверной коробки
После того, как все подготовительные работы проведены, непосредственный монтаж начинается с коробки. Конструкции продаются в разобранном виде.