Диаметр трубы для буржуйки таблица. Расчет дымохода для буржуйки
- Диаметр трубы для буржуйки таблица. Расчет дымохода для буржуйки
- Диаметр трубы армейской буржуйки. Конструкция армейской чугунной «буржуйки»
- Труба для буржуйки в гараж. Как сделать дымоход для буржуйки
- Как правильно сделать дымоход для буржуйки в гараже. Способы прокладки труб и варианты выхода дымохода
- Труба для буржуйки 110. Варианты конструкции дымохода
- Дымоход для буржуйки через стену. Схемы устройства дымоходов
Диаметр трубы для буржуйки таблица. Расчет дымохода для буржуйки
После того как буржуйка установлена и готова к эксплуатации, необходима установка дымохода, который сможет правильно функционировать, сохранять тепло в помещении и одновременно не позволять отходам горения попадать в воздух комнаты где установлена печка. Для этого нужно правильно рассчитать диаметра трубы, её длину и продумать как она будет выводить дым на свежий воздух.
Для того чтобы отопительная система имела наиболее высокий коэффициент полезного действия, необходимо чтобы труба для печки буржуйки обеспечивала достаточную тягу.
Мнение эксперта
Павел Круглов
Печник с 25-летним стажем
Наилучшим является соотношения диаметра трубы к камере сгорания в размере 2,7 миллиметра к 1 литру. Для примера возьмем буржуйку с камерой сгорания 50 литров: 2,7*50=135 мм. Именно такой диаметр дымохода будет оптимальным для эффективной работы буржуйки объемом 50 литров.
После того как определен диаметр трубы для дымохода, следует рассчитать длину всего трубопровода. В этих расчетах важно учитывать не только местоположение буржуйки, но и то на каком расстоянии от конька располагается дымоход на крыше.

Располагать выход трубы над крышей следует согласно определенным правилам:
- Дымоход находится от конька кровли на расстоянии до 1500 миллиметров, значит выход трубы должен располагаться на высоте 50 сантиметров над верхней частью конька;
- При расстоянии до козырька в 150-300 сантиметров, выход трубопровода можно расположить на одном уровне с ним;
- В случае если дымоход расположен около края крыши, то его выход должен быть ненамного ниже конька, либо на одном уровне с ним;
Второй вариант выхода трубы – это через стену, а не через крышу. В этом случае конец дымохода должен располагаться чуть ниже верхней части конька кровли.

Но основной длинной трубы станет общее расстояние от выхода трубы до самой буржуйки – расчеты в каждом индивидуальном случае получатся различные, всё зависит от того на каком этаже, в каком месте комнаты и на какой высоте, будет располагаться буржуйка.
Диаметр трубы армейской буржуйки. Конструкция армейской чугунной «буржуйки»
Со времен, когда печь ПОВ-57 использовалась только военными КА (красной армии), в вагонах и складах МПС (Министерства путей сообщения СССР) ее характеристики и устройство не изменились. Она по-прежнему делается из серого чугуна – сплава железа, углерода, графита. Для буржуек берется чугун следующих марок: СЧ 10, 15, 25, 30, 35. Чем выше цифра в названии марки материала, тем более прочным, жаростойким, устойчивым к карозии будет устройство.Свернуть Содержание:
- Характеристики и размеры
- Преимущества и недостатки
- Требования к установке
- Как пользоваться?
- Цены
- Как отличить подделку от оригинала?
- Вывод
Из чугуна в печи ПОВ-57 делают основные элементы, вот устройство печи:
- Корпус печи.
- Крышка буржуйки (снимается).
- Колосник (снимается).
- Дно печи (снимается).
- Топочная дверца.
- Поддувальная дверца.
Корпус буржуйки имеет форму бочки, реже основу делают прямоугольной. Ставится печка на 4 ножки. Если ножек в комплектации нет, то перед установкой ПОВ-57 придется позаботиться об устройстве пожаробезопасного основания.
На фронтальной части корпуса у печи-буржуйки военной размещаются две дверцы. Одна нужна для закладки топливного материала. Через вторую дверцу производится выемка продуктов горения (золы, сажи). В верхней части буржуйки находится парубок. К нему монтируется дымоход, выводящий угарный газ.
При покупке буржуйки важно проследить, чтобы между парубком и топкой стояла металлическая пластина с прорезями. Она гарантирует циркулирование воздуха внутри печного корпуса, повышает КПД устройства.
Если есть желание ускорить прогрев помещения и уменьшить расход топлива, то рекомендуется установить боковые экраны (в конструкцию стандартной печи ее нет): металлические листы крепятся длинными саморезами к печи, чтобы между ними и стенками буржуйки оставались зазоры длиной 5-6 см.
Труба для буржуйки в гараж. Как сделать дымоход для буржуйки
Как правильно сделать дымоход для буржуйки. Устройство дымохода буржуйки. Длина и диаметр дымохода для буржуйки.
Печь буржуйка это самый экономичный вариант для отопления гаража, бытовки, хоз. построек и небольшого дома. Но при установке печи буржуйки для эффективного обогрева помещения нужно ещё правильно спроектировать и установить дымоход.
При отоплении буржуйкой вместе с дымом по дымоходной трубе на улицу уходит значительная часть тепла, а это перерасход дров. Чтобы эффективней использовать тепловую энергию и пустить её на обогрев помещения, а не улицы, нужно сделать дымоход таким образом, чтобы как можно дольше в нём задерживался горячий дым. Но при этом важно не переусердствовать иначе буржуйка будет постоянно пропускать дым в помещение.
.
Как сделать дымоход для буржуйки.
Из чего сделать дымоход для буржуйки .
В качестве дымохода для буржуйки рекомендуется использовать металлические трубы с толщиной стенки 2 — 3 мм, не рекомендуется использовать тонкостенные оцинкованные трубы, они быстро прогорают.
Диаметр дымохода для буржуйки.
Какой диаметр трубы требуется для дымохода буржуйки?
Диаметр трубы для дымохода буржуйки зависит от нескольких показателей: объёма и формы топки буржуйки, количества колен на дымоходе, высоты дымохода, тяги и т. д. Подсчитать точный диаметр трубы довольно сложно, поэтому большинство печников рассчитывают диаметр трубы дымохода следующим образом. Чтобы рассчитать диаметр трубы дымохода нужно взять объём топки в литрах ( брать нужно только объём топки без объема зольника ) и умножить объём топки на значение 2,7 в результате мы получим примерный диаметр дымохода в миллиметрах.
Например, если объём топки буржуйки 40 литров, то диаметр дымохода должен быть 40 х 2,7 = 108 мм. Значит оптимальным вариантом, будет использовать для дымохода 110 мм трубу.
Данный способ подходит только для буржуек, для булерьянов берутся другие расчёты указанные производителем печи.
Длина дымохода для буржуйки.
Какой длины должен быть дымоход для буржуйки.

Высота дымохода для хорошей тяги должна быть на 0,5 – 0,6 метра выше конька крыши. Длина дымохода зависит от количества колен на трубе, чем больше колен, тем дымоход должен быть длиннее (выше) в верхней части. Для прямоточного дымохода достаточно и 3 метров длины всей трубы, а для дымохода с 2 коленами высота должна составлять не менее 5 – 6 метров.
Как правильно сделать дымоход для буржуйки.
При проектировании дымохода для эффективной работы буржуйки следует придерживаться следующих советов.
Не стоит делать прямоточный дымоход, большая часть тепла будет уходить в трубу, практичней изготовить разборной дымоход, состоящий из нескольких колен и протянуть трубу под наклоном вдоль стены помещения. Труба будет нагреваться и также греть помещение.

Разборная конструкция дымохода нужна для его чистки от сажи. Во время эксплуатации буржуйки на внутренних стенках дымохода постепенно образовывается сажа, которая со временем затрудняет проходимость дыма. Поэтому дымоход нужно периодически хотя бы раз в год чистить. Для чистки можно использовать приспособление верёвка и ёрш с грузом.
При проектировании дымохода следует избегать прямых углов в 90° трубы, каждый прямой угол значительно снижает скорость потока выходящего дыма, как результат весь дым не успевает выйти в дымоход, и часть его будет выходить через топочную дверку в помещение. Рекомендуется для соединения труб использовать колена с большим углом, а трубы дымохода располагать наклонно к верху.
Нижнюю часть трубы дымохода, которая стыкуется с буржуйкой желательно установить вертикально не менее 600 мм в высоту, это нужно, чтобы на выходе из топки образовался хороший поток дыма. Если сразу на выходе из топки поставить колено, скорость потока дыма уменьшится, и часть дыма не успевшего выйти в трубу, будет выходить в помещение через топочную дверку.
Для герметизации стыков между коленами используется асбестовый шнур или термостойкий герметик.
В месте выхода дымохода из помещения, в целях пожаробезопасности металлическую трубу нужно изолировать, для этого можно пропустить трубу через кусок асбестовой трубы большего диаметра.
Наружную часть трубы, выходящую из помещения желательно покрыть теплоизоляцией, это нужно для того, чтобы уменьшить количество сажи в дымоходе. Разность температур способствует повышенному образованию сажи на внутренних стенках дымохода, но если металлическую трубу замотать теплоизолятором, то сажи будет намного меньше.
Наверх дымохода нужно обязательно установить защитный грибок, чтобы дождевая вода не попадала в трубу, на мокрые стенки будет сильно налипать сажа.
Самая частая причина, по которой дымит печка – это забитый сажей и ржавчиной дымоход, поэтому его нужно периодически чистить.
Правильно спроектированный и установленный дымоход будет иметь хорошую тягу и увеличит теплоотдачу в помещение.

Как правильно сделать дымоход для буржуйки в гараже. Способы прокладки труб и варианты выхода дымохода
Принципиальная схема сооружения газохода для буржуйки сможет быть выполнена по одному из 3-х вариантов, отличающихся по зоне месторасположения газохода и его точки вывода из гаража наружу.

Способы прокладки труб и варианты выхода дымохода
Базисные схемы расположения правильного дымохода:
- Дымоотвод будет выводиться в атмосферу через стену на положении 210-255 мм от потолочного покрытия. Это сегодня — оптимальная и действенная норма, поскольку часть дымоотводящейтрубы, проходящей через гараж, несомненно будет выполнять роль “аккумуляционной батареи”, мощного теплового устройства, тепло которого вливается в общий баланс подогрева гаража. Поэтому для создания и поддержания необходимой температуры окружающего воздуха потребуется расходовать меньше твердого топлива.
- Второй метод очень редко используют для обогрева автогаражей либо СТО, поскольку устройство его довольно трудоемкое во время выполнения монтажных операций. В данном варианте дымоотвод проходит сквозь все комнаты, не входя в отверстие в стенке, а подымается к потолочному своду и вводится в атмосферу через крышу здания. Устройство довольно эффективно для подогрева гаражного помещения, но для вывода дымовых газов потребуется проделать целый ряд мероприятий, чтобы предохранить от перегрева абсолютно все пожароопасные строительные материалы, которые находятся в зоне пересечения с трубой.
- Третий способ сооружения — наименее качественный по теплопередаче, но обладает гораздо большей пожароусточивостью. В таком варианте дымоход практически сразу выводят на двор и фиксируют вертикально впродольнаружной стенки гаража. При этом, тепловая энергия для подогрева строения будет распространяться только от самой плиты. Труба, даже при высококачественной изоляции, станет стремительно выхолаживаться и забирать от печки дополнительную энергию, увеличивая потери в окружающую среду, а следовательно, для разогрева объекта и сохранении требуемой температуры воздуха понадобится большее количество твердого топлива.
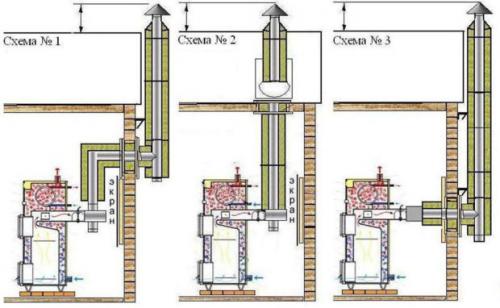
Труба для буржуйки 110. Варианты конструкции дымохода
Принципиальная схема конструкции дымохода для буржуйки может быть исполнена по одному из трех видов, различающихся по месту расположения трубы и ее выходу из помещения наружу.

Три основных схемы расположения дымохода в помещении
Труба для буржуйки 110. Варианты конструкции дымохода.
Принципиальная схема конструкции дымохода для буржуйки может быть исполнена по одному из трех видов, различающихся по месту расположения трубы и ее выходу из помещения наружу.
Три основных схемы расположения дымохода в помещении
- Схема 1: Центральный дымоход
В этом варианте дымоход проходит через центр помещения, соединяясь с вентиляционными системами и выходя наружу через крышу или стену.
- Схема 2: Левый дымоход
В этом варианте дымоход проходит по левому борту помещения, соединяясь с вентиляционными системами и выходя наружу через крышу или стену.
- Схема 3: Правый дымоход
В этом варианте дымоход проходит по правому борту помещения, соединяясь с вентиляционными системами и выходя наружу через крышу или стену.
Выбор схемы конструкции дымохода зависит от конкретных условий и требований к безопасности и эффективности функционирования буржуйки.
- Дымоход может выходить на улицу через стену на уровне 200 ÷ 250 мм от потолка. Это — удобная и эффективная конструкция, так как тот отрезок дымоотводной трубы, который проходит через помещение, будет играть роль своеобразной «батареи», достаточно мощного теплообменника, который эффективно включается в общий процесс обогрева, отдавая в комнату вырабатываемое печью тепло. Это способствует повышению общей теплоотдачи от буржуйки, а значит , для достижения и поддержания нужного уровня температуры будет истрачено намного меньше топлива.
- Второй вариант редко применяют в условиях гаражей или мастерских, так как конструкция достаточно трудоемка в монтаже. В этом случае дымоход тоже проходит через все помещение, но не сворачивает в отверстие в стене, а поднимается через потолочное перекрытие и выводится на улицу сквозь чердак и далее, через кровлю. Конструкция тоже весьма эффективна для обогрева комнаты, но для проведения трубы через чердачное перекрытие нужно предпринять целый ряд мер, чтобы обезопасить от перегревания все потенциально боящиеся огня материалы. Для этого в толще перекрытия необходимо установить вокруг трубы специальный короб, который заполняется жаростойким составом, например, мелкофракционным керамзитом или минеральной ватой.
Дымоход для буржуйки через стену. Схемы устройства дымоходов
Имеются три типовые схемы прокладки дымоходов.

Дымоход можно выводить через потолок или через стену непосредственно за печкой или немного выше её выходного патрубка
Производя самостоятельную установку дымовой трубы для печи-буржуйки, можно осуществить вывод газов согласно одному из предложенных вариантов:
- Выполнить выход дымохода из помещения в верхней части стены на расстоянии 20–25 см от потолка. Конструкция позволяет осуществить дополнительный обогрев помещения за счёт теплового излучения металлической поверхности дымохода, сэкономить при этом топливо и избежать нежелательных соприкосновений трубы с горючими поверхностями.

Труба дымохода поднимается вертикально вверх, а на расстоянии 20–25 см от потолка поворачивается на 90 градусов и уходит в стену
- Произвести вывод дымовой магистрали через потолок. Сложность этого варианта заключается в необходимости прокладки дымохода через расположенные выше потолка жилые помещения, чердак и крышу. Конструкция позволяет выполнить эффективный обогрев расположенных выше помещений, однако требует специальных мер по обеспечению пожарной безопасности.

Прокладка трубы через потолок выполняется сложнее, требует специальных мер безопасности, но обеспечивает лучшую тягу
- Осуществить прокладку дымохода рядом с печью через стену. При этом с внешней стороны помещения дымовая труба будет расположена вертикально. Этот метод устройства дымохода обеспечивает максимальную пожаробезопасность, но обладает серьёзным недостатком. Находящиеся за пределами помещения вертикальная труба быстро остывает, создавая увеличенную тягу в буржуйке. Необходимо своевременно перекрывать выходную магистраль, чтобы быстро не охладить помещение после сгорания топлива.



