Установка дверной коробки из МДФ своими руками. Подготовительные работы
- Установка дверной коробки из МДФ своими руками. Подготовительные работы
- Как демонтировать дверную коробку. Аккуратный демонтаж дверной коробки: сохраняем целостность конструкции
- Как закрепить косяк двери. Стыковка
- Как склеить дверную коробку. Как снимать размеры
- Крепление коробки межкомнатной двери. 90 градусов
- Установка дверей из МДФ. Правильная установка межкомнатных дверей из МДФ своими руками
- Как установить дверную коробку. Форма и размеры конструкции
- Как закрепить дверную коробку в пеноблоке. Установка дверей в доме из газобетона
Установка дверной коробки из МДФ своими руками. Подготовительные работы
Потребуется:
- рулетка и карандаш;
- лазерный уровень;
- угольник;
- ножовка;
- стамеска.
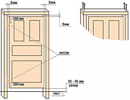
Установка межкомнатной двери из МДФ начинается с проверки стен на вертикальность. Сначала измеряется высота и ширина дверного проема. При этом следует учитывать, что стены в доме могут быть не идеально ровными, поэтому замеры делаются в разных точках и на разной высоте. Нужно помнить, что между дверной коробкой из МДФ и стеной должны остаться зазоры около 10-15 мм, как с левой и правой стороны, так и вверху и внизу.
Если дверной проем больше размера двери из МДФ, то при небольшой его разнице по ширине нужно по всей высоте проема набить брусок необходимой ширины. В том случае, если дверь намного уже проема, тогда он частично закладывается либо кирпичом, либо другим подходящим блоком, либо изготавливается каркас из металла и обшивается гипсокартоном. Если дверной проем меньше по размерам, то его следует расширить.

Сечение дверных коробок разных типов.
Затем делается заготовка будущей коробки из МДФ. Так как стандартная высота двери 2000 мм, то к ней прибавляется размер зазора между верхней ее частью и полотном в 2-3 мм. Если установка двери предполагает наличие порога, то к высоте двери прибавляются 2 зазора, равные вместе 6 мм. Если устанавливать дверь из МДФ без порога, то в этом случае добавляется зазор в 3 мм и расстояние от пола в 10 мм. Это необходимо для того, чтобы при открывании дверное полотно не цеплялось за напольное покрытие. В результате для установки с порогом получается: 2000+3+3=2006 мм; без порога: 2000+3+10=2013 мм. Заготовки стоек для коробки из МДФ готовы.
Далее делаются заготовки порога и верхней перемычки. Для этого измеряется ширина дверного полотна. К ней прибавляется зазор в 3 мм и толщина в 30 мм профильного бруса, который устанавливается с обеих сторон. Например, при ширине двери из МДФ 600 мм получается: 600+6+60=666 мм. После этого у отрезанных в размер элементов делаются посадочные выборки, т.е. с каждой стороны срезаются те части, которые выступают и из-за этого при закрывании упираются в дверь. Для этого от края перемычки отмеривается отрезок, равный толщине стойки, и делается пропил при помощи ножовки с мелкими зубьями. После этого осуществляется вертикальная установка перемычки и скалывается ее ненужная часть либо ножом, либо стамеской.
Как демонтировать дверную коробку. Аккуратный демонтаж дверной коробки: сохраняем целостность конструкции
Для начала необходимо снять дверное полотно с петель. Лучше не просто вынимать ее из штоков, а открутить петли сняв их и убрав подальше от рабочего места.
Совет. В старых дверях саморезы которыми приворачивали петли могут отломиться при выворачивании. Ничего страшного. Демонтируйте остальные крепления и снимайте полотно. После можно будет привернуть петли по другим местам.
Далее необходимо удалить наличники если они есть. Скорее всего вы их не будете использовать повторно, поэтому можно не церемониться и поработать гвоздодером. Если наличники имеют пристойный вид, нужно аккуратно демонтировать их с дверной коробки, поддевая поочередно места фиксации отверткой, чтобы не сломать декор.
Осталась голая коробка, которую и нужно демонтировать аккуратно. Если монтаж проводился на анкера, необходимо найти места где они располагаются. Обычно ими фиксируют на уровне петель и у притворного замка. Элементы могут прятаться под заглушками или если дверь старая их может закрыть слой краски. Найти места будет несложно по характерным выпуклостям.
Крепежные элементы выворачиваем шуруповертом. Необходимо поставить инструмент на низкие обороты чтобы не повредить пересохшую древесину. Слабые модели электрических отверток могу не справиться с креплениями. Тогда вначале необходимо стронуть их с места отверткой с широким жалом, а после выворачивать электрическим инструментом.
Удалив все анкера осторожно простучите коробку (отбивая старую краску) чтобы демонтаж прошел без эксцессов. За время работы полотно может осесть в проеме. В этом случае легкие постукивания молотком, а лучше киянкой помогут сдвинуть короб, который после будет проще убирать.
Важно! Возвращаясь к временным рамкам нужно напомнить про пену. Если между коробкой и стеной есть прослойка, вначале ее удалят ножом. Слой пены держит конструкцию не хуже анкеров, поэтому не разорвав соединение демонтировать дверь не получится.
Когда после простукивания дверь стронулась с места, аккуратно вынимаем короб из проема и укладываем на пол. Если добор прикручен отдельно, удаляем его и выстукиваем молотком угловые соединения из пазов.
Все, коробка демонтирована и разобрана. Осталось только подчистить ее и перевезти на новое место установки, если таковое требуется . Но в некоторых случаях вместо анкеров для фиксации используются гвозди. В этом случае можно рассматривать только неаккуратный демонтаж дверной коробки.
Как закрепить косяк двери. Стыковка
Под 90 градусов
Рама собирается на ровном полу — так проще правильно привести ее элементы в нужное положение.
К боковинам крепится верх. Он располагается сверху либо между ними. Если зафиксировать стойки по сторонам, соединение получится таким же прочным. В месте примыкания выступающий рельеф горизонтали срезается. Соприкасаться с вертикалями должна только ее широкая часть.
Длина вертикалей рассчитывается так, чтобы между ними и створкой оставался зазор по 3 мм. Если порог отсутствует, ширина нижнего зазора должна быть равна 10-15 мм. Возьмем ее минимальное значение. Соответственно, длина опор равна высоте полотна и суммарной ширине зазоров, составляющей 10 + 3 = 13 мм.
Шурупы вкручивают сверху. При монтаже нельзя допускать перекосов. Каждый шаг следует проверять угольником и рулеткой.
Под 45 градусов
Места сопряжений обрезаются под 45 градусов. Вместе делали должны образовать прямой угол. Чтобы придать им нужную форму, используют торцовочную пилу. Она дает возможность зажать заготовку и провести срез в заданном направлении. Такое оборудование, как правило, используют профессиональные мастера. Проще купить или самостоятельно изготовить стусло. Оно представляет собой желоб, в который помещается деталь. В стенках желоба проделано по несколько отверстий с каждой стороны. В них вставляется лезвие ножовки.
Когда элементы каркаса готовы, их соединяют, вкручивая шурупы сверху по диагонали. Так их головки не будут заметны. Перед тем как собрать коробку для, необходимо выбрать правильную длину саморезов. Они должны входить в стойки минимум на 3 см.
Как склеить дверную коробку. Как снимать размеры
Вначале замерьте дверной проем. Стандартные размеры дверных полотен имеют высоту 2000 мм и ширину 900 мм, 800 мм и 700 мм. Внутренние размеры дверной коробки увеличиваются на 3 мм по всему периметру (технологический зазор), внешние размеры коробки больше размеров дверных полотен на 70 мм. Это стандартная толщина реек коробки. Если у вас рейки имеют иной размер, то изменяются и внешние размеры дверной коробки. А зазоры между дверным проемом и коробкой должны быть не менее трех сантиметров.
Таблица соответствия размеров дверных блоков и проемов
Типовые размеры дверей
Теперь можете проверить, подходят ли ваши двери к дверному проему. Если нет – придется или расширять или уменьшать дверной проем. Это наиболее худший вариант, размеры дверных проемов нужно внимательно контролировать на стадии сборки сруба бани.
Дверная коробка должна соответствовать размерам проемов
Еще один важный момент по размерам – зазор между дверной коробкой и полом. В зависимости от конкретного места установки двери этот зазор регулируется положениями СНиП 41–01–2003.
Свод правил. Отопление, вентиляция и кондиционирование
Зазор изменяется в пределах 10÷15 миллиметров и должен обеспечивать минимально требуемую кратность воздухообмена для каждого помещения. Любая естественная вентиляция помещений работает по принципу приточно-вытяжной. Если не будет притока свежего воздуха, то, само собой, не будет и его вытяжки.
Размеры дверной коробки
Некоторые владельцы в целях экономии тепла в помещениях желают поставить двери без вентиляционного зазора, для бань возможен такой вариант, в них никто не собирается ночевать. Но здесь неопытные строители могут сами создать себе проблему. Минимальный зазор между дверным полотном и полом в пределах 1÷2 мм может стать причиной их заклинивания или затрудненного открывания/закрывания. Дело в том, что половое покрытие в банях редко имеет такую точность по горизонтали. Чтобы избежать проблем с дверным полотном и не подрезать его после установки нужно замерить уровень пола по углам коробки.
Какой должна быть дверь в бане
Сечения дверных коробок
Сделать это довольно сложно, расскажем подробно о двух методах.
- С помощью гидроуровня. Очень аккуратно поставьте две метки на дверном проеме с обеих сторон. Расстояние от меток до уровня пола приблизительно 20÷30 сантиметров. При помощи точной линейки замеряйте расстояние от пола до сделанных меток. В большинстве случаев несоответствие составит не менее 2÷3 миллиметров. Это нужно учитывать во время изготовления вертикальных боковин коробки, а минимальный зазор между дверным полотном и полом увеличится на величину несоответствие горизонтальности пола. В одном положении он будет, к примеру, два миллиметра, а в противоположном месте увеличится до 4÷5 мм. Если вы не будете учитывать уровень пола, то дверная коробка вообще может не открываться полностью или будет открываться с большим «скрипом». Придется снимать и резать полотно, а это крайне нежелательно.
- С помощью лазерного уровня. Выставьте лазерный луч точно по горизонтали примерно на удалении 10 см от уровня пола. Линейкой (лучше на угольнике) сделайте замеры по углам дверного проема, нарушение высоты пола учитывайте во время изготовления коробки. Этот способ намного проще, замеры делаются быстрее, но при одном условии – у вас есть в наличии довольно дорогой прибор.
Крепление коробки межкомнатной двери. 90 градусов
В этом варианте сборки верхний брус мы будем крепить поверх боковых. Т. е. его надо положить сверху. Длина боковых профилей вычисляется следующим образом: измеряем высоту двери и прибавляем 2 зазора по 3 мм в случае установления порога. Если порог устанавливаться не будет, прибавляем 1 см для нижнего зазора, чтобы дверь не касалась пола и не царапала покрытие. Вся сборка выполняется аналогично с предыдущей, кроме того, что шурупы нужно вкручивать в панели перпендикулярно поверхности.
Мы рассмотрели, как будет собираться дверная коробка , но перед установкой нового необходимо произвести демонтаж старого блока. Предварительно снимаем наличники. При удалении притворного и петельного бруса не лишним будет распилить их посередине высоты, это облегчит их извлечение из проема. Затем нужно проверить стену на прочность и если необходимо, то укрепить ее.

Для этого также проводят работы по бетонированию. Если ослаблен сам дверной проем, то устанавливают стальные уголки «в обхват».
Проем можно укрепить стальным профилем или же применить одновременно уголки и профиль для большей прочности.
Установка дверного блока межкомнатной двери – дело не легкое, но при грамотном подходе и детальном изучении нюансов и особенностей по силам почти каждому. С помощью доборного элемента при установке двери в стену стандартной толщины 70 мм для уменьшения дверного проема между стеной и коробкой устанавливается монтажный брусок. Установленный затем наличник скроет доборный элемент. Этот способ подходит в случае, когда дверной проем ровный по высоте, но чуть больше необходимой ширины.


Установка дверей из МДФ. Правильная установка межкомнатных дверей из МДФ своими руками
Достаточно сложным процессом является установка межкомнатных дверей из МДФ своими руками. Окончательный результат во многом зависит от точного соблюдения всех операций. Чтобы такая работа была выполнена успешно, нужно строго выполнять последовательность всех технологических процедур.
Двери из МДФ намного дешевле деревянных, именно поэтому они популярны у потребителя.
Как должно выглядеть помещение
Чтобы установка межкомнатных дверей оказалась успешной, необходимо провести предварительную подготовку помещения. Для этого выполняются следующие операции:
«Пирог» панелей МДФ.
- выравнивание стен;
- шпаклевание;
- нанесение штукатурки.
После окончания мокрых работ помещение тщательно высушивается. Сушка должна быть сделана обязательно. В противном случае дверь может «повести». Должна быть точно известна будущая толщина основного пола. Установка межкомнатных дверей своими руками будет сделана с учетом габаритов порога, его высоты. Если проводится только замена дверей, то работу можно выполнять сразу, так как данные условия не будут оказывать никакого влияния на монтаж двери. Большей частью конструкции подразделяются по принципу работы:
- распашные;
- раздвижные;
- складные.
Чаще всего используются распашные двери. Их очень легко установить, но при этом теряется некоторая часть полезной площади. Сегодня известно несколько разновидностей раздвижных дверей:
Двери из МДФ могут быть как одностворчатыми, так и двухстворчатыми.
- одностворчатые;
- двустворчатые;
- правосторонние;
- левосторонние;
- направленные вдоль стены;
- направленные внутрь стены.
Эти модели максимально экономят площадь. Недостатком является необходимость монтажа дверной коробки, двери имеют плохую звукоизоляцию. Наличие нескольких створок характерно для складной двери, которая двигается по направляющим. Такие двери подразделяются на несколько видов:
- гармошки;
- книжки.
Гармошками можно заменить ширму. Книжку отличают от гармошки две секции, более высокая прочность. Характерным недостатком считается быстрая поломка крепежной фурнитуры при больших нагрузках. На современном строительном рынке очень много самых разных предложений межкомнатных дверей. Каждая модель имеет индивидуальные технические характеристики, отличается своей формой и габаритами. Основными материалами, из которых производят межкомнатные двери, являются:
Петли должны быть врезаны на глубину в одной плоскости с торцевой поверхностью полотна и дверной коробки.
- древесина;
- пластик;
- металл;
- стекло;
- МДФ панели;
- различные комбинации материалов.
При выборе модели желательно учитывать интерьер помещения и функциональные возможности двери. Чтобы сделать правильный выбор, необходимо сначала измерить габариты дверного проема. Опираясь на эти данные, можно подобрать нужную дверь, но при этом необходимо знать несколько нюансов. Установка межкомнатных дверей выполняется так, чтобы сохранялся зазор между блоком двери и основанием проема. Обычно он равен 10 мм. Чтобы не происходило заклинивания двери, особенно когда случается перемена влажности, нужно создать дополнительный зазор между полотном двери и деталями блока. Зазор должен быть не более 5 мм. Будущая дверь не должна создавать препятствия отделочным работам полового покрытия. Обязательно, выбирая межкомнатную дверь, необходимо убедиться в ее качестве. Не должно быть:
- трещин;
- царапин;
- сколов;
- других дефектов.
Необходимые инструменты
Как установить межкомнатную дверь без инструмента? Это физически невозможно. Для самостоятельной работы потребуется:
Инструменты для монтажа дверей.
Как установить дверную коробку. Форма и размеры конструкции
Основа-короб должен соответствовать параметрам двери (ширине и высоте), для того чтобы обеспечивать полный охват и поддержку конструкции. Важным нюансом относительно полотна является назначение помещения, для которого оно предназначено. Потому что от этого будут зависеть требования к вентиляции. В парных и банях двери должны обеспечивать надёжную теплоизоляцию, поэтому проём заделывают максимально герметично.
Ванную комнату, наоборот, нужно хорошо проветривать, для того чтобы не скапливалась лишняя влага и не появлялась плесень. Поэтому зазор между коробом и дверью должен быть немного шире. А также требуется хорошая вентиляция для помещений, в которых установлено газовое оборудование.
Для обеспечения надёжной защиты от утечки тепла из четырёх брусков сооружают прямоугольную раму, которая будет служить коробкой для двери. Вертикальные стойки станут петельным и притворным элементом, а поперечные – верхней опорой и порогом.

Для свободного движения полотна зазор должен быть между дверью и стойками около 3 мм. В тех случаях, когда необходим приток воздуха в помещение, короб собирают из трёх брусков, а на месте порога делают зазор около 10–15 мм. Вдоль вертикальных стоек и притолоки оставляют стандартное расстояние в 3 мм.

Коробка с порогом в сборе немного выше, чем без него. Разница составляет около 20 мм. Важно учесть этот нюанс, чтобы не пришлось укорачивать дверь. Потому что подогнать полотно можно только в том случае, если оно изготовлено из дерева.
Зазор между дверной коробкой и проёмом должен быть не меньше 10 мм с каждой стороны, чтобы конструкцию легко можно было установить и зафиксировать.
Как закрепить дверную коробку в пеноблоке. Установка дверей в доме из газобетона
Установка дверей в доме со стенами из газобетонных блоков (из блоков ячеистого бетона).
В руководствах пользователя американских компаний производителей газобетона Contec, E-crete, Delta указывается, что при необходимости установка дверей в относительно небольших проемах (до 91 см) может производиться непосредственно на газобетон. Дверная коробка закрепляется в этих случаях анкерами для ячеистых бетонов (см. рис №1, вариант Г)
Для чего же придуманы более сложные узлы крепления дверных коробок к стенам из газобетона? Газобетон является достаточно хрупким материалом. При установке тяжелых стальных дверей, дверей в больших проемах (проемы более 91 см, гаражные двери и т.п.), дверей в коммерческих помещениях с большой проходимостью посетителей газобетон в местах непосредственного крепления дверной коробки может испытывать значительные ударные нагрузки (сдвига, выдергивания). Для предупреждения постепенного раскрашивания пористой структуры газобетона (ячеистого бетона) под очень небольшой площадью анкера, рекомендуется установка дверных коробок таким образом, чтобы распределить нагрузки от открывания-закрывания дверей на гораздо большую площадь. При установке дверей в индивидуальных домах из газобетона возможно использование промежуточных надежно закрепленных деревянных рам или закладных брусков. Деревянные рамы могут быть изготовлены из сухой доски, клееной древесины (мебельного щита), бруса или фанеры. Дерево обязательно должно быть предварительно пропитано невымываемыми антисептиками или, еще лучше, импрегинировано антисептиками под давлением. Можно использовать термообработанную древесину, так как она значительно меньше подвержена гниению. При использовании обычной сухой древесины, предпочтение следует отдавать лиственнице - как одному из самых стойких к гниению пород дерева, доступных за разумные деньги.