Дымоход для печи своими руками. Разновидности кирпичных дымоходных труб
- Дымоход для печи своими руками. Разновидности кирпичных дымоходных труб
- Дешевый дымоход своими руками. Как смонтировать дымоход из стальной трубы своими руками: чертежи и схемы + правила установки
- Дымоход для кирпичной печи. Сечение канала дымохода
- Дымоход для бани своими руками. Как правильно сделать дымоход для бани — виды и особенности дымоходных каналов из различных материалов
- Дымоход для печи на дровах. №1. Кирпичная труба для дымохода
- Дымоход в бане из обычной трубы. Дымоход в бане: конструкция, схема и установка дымохода банной печи
- Устройство дымохода для дровяной печи. Высота дымохода: зависимость от угла наклона кровли и расстояния до конька
- Дымоход в бане из стальной трубы своими руками.
- Колпак на дымоход своими руками. Как изготовить колпак на дымоход камина своими руками
Дымоход для печи своими руками. Разновидности кирпичных дымоходных труб
Дымоходные трубы разделяются на типы в зависимости от места их установки относительно самой печи. Так, они бывают коренными, насадными и стенными.

Печь с дымоходной трубой насадного типа
- Самой распространенной конструкцией кирпичной дымоходной трубы является насадная. Она устанавливается непосредственно сверху отопительного прибора и является его продолжением. Такие дымоходы часто ставят при строительстве отопительной или банной печи .

Дымоход коренной конструкции
- Вторым по популярности идет коренной дымоход. Эта разновидность трубы отличается тем, что устанавливается рядом с печью или входит в ее конструкцию и размещается с одной из ее сторон.
Коренные трубы могут быть установлены как для кирпичных, так и для чугунных печей. Кроме того, одну коренную конструкцию часто используют для нескольких отопительных приборов. Например, в двух или трехэтажном доме один дымоход пропускают через все этажи и подключают к нему печи. Если планируется использовать трубу таким образом, то в этом случае, должен быть произведен точный расчет её параметров, иначе будет отсутствовать нормальная тяга, а значит, снизится и эффективность работы печей, повысится риск проникновения в помещения продуктов сгорания.

Труба пристенного типа
- Стенная труба встраивается в капитальные внутридомовые или наружные стены. Но, в последнем случае, стенки дымохода придется очень хорошо утеплять, так как в связи с большой разницей внешних и внутренних температур, внутри канала будет активно собираться конденсат, который значительно ухудшит работу печи, снижая тягу и способствуя быстрому зарастанию дымохода сажей.
Следует отметить, что хотя эта конструкция выделена отдельным видом, она может быть как коренной, так и насадной.
Дешевый дымоход своими руками. Как смонтировать дымоход из стальной трубы своими руками: чертежи и схемы + правила установки
Доброго денёчка!
Если Ваш дом не подключён к центральной системе отопления, придётся устанавливать индивидуальный теплогенерирующий прибор . Что бы это ни было котёл, печь, камин или комплекс, состоящий из нескольких приборов сразу, придётся продумывать концепцию отведения продуктов сгорания топлива. И в данной статье мы расскажем, как обустроить дымоход из стальной трубы своими руками.
Что это такое и для чего он нужен
Стальной дымоход – основной конструктивный элемент отопительного прибора, представляющий собой железный трубопровод по которому посредством естественной силы тяги удаляются образовавшиеся в процессе горения газы и дым.
Как устроен дымоход
Дымоход выполняется в форме металлической трубы, отходящей от камеры сгорания теплогенерирующего агрегата и собранной из нескольких элементов, герметично соединённых между собой. Тем не менее его конструкция и конфигурация может видоизменяться в зависимости от особенностей помещения, места его расположения и схемы разводки.

Принцип работы
- Сгорающее в топке топливо поднимает температуру порой до 1000⁰C, при этом горячий воздух становится лёгким и устремляется вверх.
- Поступающий извне прохладный воздух, насыщенный кислородом, наоборот тяжелее.
- Эта температурная разница запускает процесс естественной конвекции.
- В результате в контуре возникает так называемая сила тяги, выводящая наружу вредные газы, дым и сажу.
Виды и конструкции
Дымовые трубы производятся из следующих типов стали:
- Легированной (с эмалевым покрытием и без).
- Зеркальной нержавейки.
- Оцинкованной.
Стальные дымоходы бывают 2 моделей:
- Одностенные (однотрубные).
Простые жёсткие или гибкие гофрированные трубы и фасонные элементы к ним толщиной в одну стенку (0,5 – 1,5 мм) способны выдерживать нагрев до 1100⁰C. Преимущественно используются в качестве вкладышей в кирпичные дымоходные шахты . Могут выступать и в роли самостоятельного конструктивного элемента, однако в данном случае потребуется проведение дополнительных работ по их термоизоляции и утеплению.

- Двустенные (двухтрубные).
Так называемые сэндвич-дымоходы или коаксиальные состоят из двух труб разного диаметра и, как правило, разного уровня термоустойчивости, вставленных одна в другую. Пространство между ними заполняется огнестойким изоляционным материалом (чаще всего базальтовой минеральной ватой), выполняющим несколько функций:
- Утепление трубопровода при его размещении на улице.
- Предотвращение образования конденсата.
- Обеспечение нормального уровня тяги.
Отличаются более длительным периодом эксплуатации, а также самобытностью и эстетичностью, что избавляет от необходимости их закрытия декоративным кожухом.

Различаются дымоходы и по типу конструкционного решения:
- Расположение дымоходного контура внутри или снаружи помещения.
Размещение дымоотвода в доме более трудоёмкий процесс, предполагающий его прокладку сквозь перекрытия и вывод через кровлю. Во многом такая концепция оправдана большим коэффициентом теплосбережения, возможностью обустроить самую простую и более эффективную прямую строго вертикальную конфигурацию. Однако этот способ самый пожароопасный, кроме того труба съедает полезную площадь в комнатах, через которые она проходит.

Вывод трубы на улицу через отверстие в стене дома и крепление к фасаду посредством кронштейнов существенно снижает индекс пожароопасности. Однако в данном случае потребуется проведение дополнительных работ по утеплению контура, а в районах с сильными морозами возникает необходимость строительства внешней кирпичной шахты в качестве комплементарного утепляющего кожуха.

- По углу наклона контура на: прямостоящие (строго вертикальные), наклонные и содержащие горизонтальные участки.
Самой эффективной признаётся первый вариант. Наклоны и горизонтальные плоскости ухудшают тягу в контуре, поэтому их установка должна осуществляться в строгом соответствии со строительными нормативами.

- По форме дымоходы могут быть круглыми, овальными, квадратными и прямоугольными.
Наилучшим считается круглое сечение, обладающее превосходными аэродинамическими характеристиками. Квадратные и прямоугольные форматы способствуют снижению скорости движения воздушной массы внутри контура из-за образования в углах завихрений. Кроме того именно по углам откладывается большее количество сажи .

Преимущества и недостатки
У стальных дымоходов масса достоинств:
- Гладкость внутренних стенок минимизирует оседание сажи.
Дымоход для кирпичной печи. Сечение канала дымохода
Для выбора правильных параметров сечения канала дымохода, нужно учитывать мощность печи, а также размер топочной камеры. Дымоотводные каналы будут дольше оставаться чистыми, если их внутренние стенки сделать гладкими, без выступов и наплывов раствора.
По этой причине во время кладки кирпича выступившие в швах излишки кладочного раствора необходимо счищать не только с наружных, но и с внутренних стенок. Некоторые собственники домов, оснащенных каминами или печами, используют и другой способ добиться гладкости стен канала – внутрь кирпичного дымохода устанавливают керамическую трубу, называемую вкладкой.
Преимущество такой конструкции состоит не только в том, что вкладка имеет абсолютно гладкие внутренние стенки. Она – круглая в сечении, то есть не имеет углов, а это значит, что дымовые потоки не будут встречать на своем пути препятствий и при этом не будет создаваться ненужных завихрений и эффекта «обратной тяги».

Схема, иллюстрирующая движение потока газообразных продуктов сгорания в канале дымохода
Справа на иллюстрации изображено «идеальное» перемещение потока горячих газов, которые в трубе круглого сечения закручиваются в правильную спираль и не встречают сопротивления.
В трубе квадратного сечения эта спираль окружена «паразитными» завихрениями, неизбежно появляющимися по углам (на рисунке – слева). Это уже несколько нарушает, притормаживает нормальное течение газов, и показатели ровной, устойчивой тяги падают. Очевидно, что еще хуже дело обстоит в каналах дымоходов с прямоугольным сечением.
Кроме этого, нужно учесть и то обстоятельство, что дымоходы, имеющие большую ширину, которые до сих пор установлены в старых домах, часто обладают плохой тягой. Это происходит вследствие того, что нагретый в печи воздух в большом пространстве внутри трубы, быстро остывает, что приводит к образованию конденсата, способствующему понижению тяги, также задымлению помещений, быстрому зарастанию канала сажей. Чтобы натопить печь с такой конструкцией дымоотводной трубы, потребуется использовать слишком много топлива. Поэтому наиболее рационально будет их исправить, демонтировав широкую верхнюю часть дымохода, затем сузив шахту и установив в нее круглую или квадратную со скругленными углами, керамическую, металлическую или асбестовую вставку.

Широкая кирпичная труба, зауженная керамическими и металлической вставками требуемого сечения
Теперь от формы – к линейным параметрам. Размер внутреннего сечения дымоходного канала является одной из важнейших характеристик, так как от этого напрямую зависит эффективность работы печи. Обязательно должно быть соблюдено правильное соотношение мощности отопительного прибора и размеров сечения трубы. Еще одним ориентиром для определения правильности размера канала может стать проем поддувальной дверцы – сечение трубы в любом случае не должно быть меньше поддувального отверстия.
Сечение шахты дымохода, относительно размеров окна топочной камеры, можно определить так. Для каминов, имеющих открытую топку, размер отверстия дымохода составляет в среднем 1:10. Однако, в зависимости от формы сечения и высоты трубы этот показатель может варьироваться в ту или иную сторону. Примерные значения площади сечения канала (в процентах) приведены в таблице ниже.
Дымоход для бани своими руками. Как правильно сделать дымоход для бани — виды и особенности дымоходных каналов из различных материалов
Наиболее сложным при строительстве бани является монтаж дымохода. Люди, не имеющие соответствующего опыта, предпочитают заказывать готовые дымоходы для банных печей, благо на современном рынке имеется масса различных вариаций подобной продукции.
Тем не менее труба для бани может быть изготовлена и установлена самостоятельно, в этом нет ничего сложного, главное – правильно определиться с материалом и действовать в соответствии с инструкциями, представленными ниже.
Трубы для бани имеют массу классификаций. Например, в зависимости от месторасположения они могут быть внешними и внутренними. Первые монтируются вне помещения, что позволяет высвободить немалое количество пространства и частично исключить возможность получения ожогов.
Такие трубы для бани имеют и существенный недостаток: вы в буквальном смысле будете протапливать улицу.
Дымоходные трубы для бани, расположенные внутри помещения, следует монтировать особо тщательно, соблюдая все правила. Монтаж дымохода в бане, произведенный с малейшими нарушениями, может являться причиной серьезных последствий: начиная от возгорания и заканчивая удушьем.
Не менее распространенной является классификация, опирающаяся на материалы, из которых изготавливаются дымоходы для бани. В нее включены следующие виды дымоходных каналов:
- кирпичные;
- модульные из нержавеющей стали, имеющие один или два контура;
- гофрированные;
- керамические;
- полимерные и т. д.
Ниже описаны все виды дымохода бани. Помимо этого имеется масса полезной информации, которая наверняка облегчит монтаж конструкций.
Виды дымоходов и требования предъявляемые к ним
Дымоход для банной печи должен соответствовать ряду требований. Малейшее несоответствие может стать причиной слабой тяги. Поэтому выполняя устройство дымохода в бане, следует обращать внимание на следующие факторы:
- Лицевая сторона трубы не должна иметь повреждений. Следствием этого может стать чрезмерное образование конденсата.
- Внутренняя поверхность должна быть гладкой. Различные неровности поспособствуют быстрому накоплению сажи и гари.
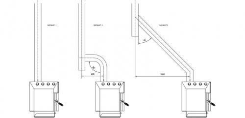
- Дымоход в бане своими руками или с привлечением специалистов обустраивается не только в вертикальной, но и в горизонтальной плоскости. Благодаря этому, тепло в буквальном смысле не вылетает в трубу, при этом каждая горизонтальная составная часть дымоходного канала не должна иметь длину свыше 1000 мм. В противном случае тяга будет слабой.
- Дымоходы для банных печей, монтируемые через перекрытия, в обязательном порядке должны оснащаться противопожарными конструкциями. Например, стальные и керамические дымоходы размещаются в специальных коробах.
- Решая, как установить трубу в бане – через потолок или стену, не в последнюю очередь следует задумываться о диаметре трубы. Он напрямую зависит от мощности печи и, как правило, варьируется в пределах от 100 до 350 мм.
- Часть дымоходного канала, расположенная вне здания, должна быть выполнена из прочных долговечных материалов, способных сопротивляться агрессивному воздействию окружающей среды (дождю, ветру, снегу и т. д.). В большей мере это касается труб, установленных вне помещения. В такой ситуации труба в бане через потолок и крышу имеет больше преимуществ, ведь вне помещения находится лишь ее малая часть.
Дымоход для печи на дровах. №1. Кирпичная труба для дымохода
Кирпич для обустройства дымоходов применяют давно, и он стал уже традиционным материалом. Сегодня его нельзя назвать универсальным, что, впрочем, не снижает его популярности. Кирпичный дымоход обустраивают внутри стены здания, те его участки, которые проходят сквозь неотапливаемые помещения или снаружи постройки, тщательно утепляют , чтобы дымовые газы внутри не охлаждались. Для обустройства такого дымохода подходит красный полнотелый кирпич марки не ниже М150, для его кладки используют известковый или известково-цементный раствор . 
К главным преимуществам кирпичных труб для дымохода относится их долговечность и отличная термостойкость ( керамический кирпич выдерживает температуру до 8000С), да и внешне они выглядят замечательно, а по пожаробезопасности им практически нет равных. Кирпичный дымоход подходит для печей и каминов на дровах , а при работе с котлами на жидком топливе, газе, пеллетными и твердотопливными пиролизными котлами быстро разрушается. Все дело в том, что подобные котлы устроены таким образом, что отходящие газы имеют небольшую температуру. Они быстро конденсируются и оседают на стенках трубы, за счет чего последние постоянно увлажняются. Учитывая тот факт, что в отходящих газах содержаться агрессивные химические вещества, включая серную кислоту, кирпич быстро разрушается. Результаты подобного воздействия проявляются влажными пятнами на наружной поверхности трубы. 
Правда, выход из ситуации есть всегда. Чтобы подсоединить к кирпичной трубе дымохода современный котел на газе или жидком топливе, в кирпичный канал встраивают стальную или керамическую трубу , которые имеют несколько иные эксплуатационные качества.
Так как поверхность кирпича шероховата, на ней хорошо оседает сажа, которая постепенно приводит к уменьшению тяги. Чистка и ремонт кирпичной трубы – занятие не из легких. К тому же, большой вес конструкции обязательно потребует наличия фундамента . С другой стороны, достойный аналог для обустройства дымохода печи или камина найти сложно.
Дымоход в бане из обычной трубы. Дымоход в бане: конструкция, схема и установка дымохода банной печи
Дымоход – вертикальная инженерная конструкция, установленная внутри или снаружи бани. Предназначен для отведения продуктов сгорания топлива в атмосферу путём естественной или принудительной тяги. Правильная установка – гарант бесперебойной работы всей теплогенерирующей банной системы.
Виды дымоходов
Для производства дымоходов используются различные материалы. Выбор конкретного варианта зависит от технических и финансовых возможностей. Наиболее часто их делают из:
Из кирпича
Кирпич – отличный теплопроводник, а дымоход, выполненный из него, ещё на протяжении долгого времени по окончанию топки сохраняет тепло. К его явным преимуществам относятся безопасность и эстетичный внешний вид. Также пропадает необходимость в монтаже противопожарного узла, поскольку кирпич – негорючий материал, обладающий толстыми стенками. Однако минусов тоже достаточно:
- Массивность. Кладка из кирпича имеет тяжёлую массу, что требует наличия прочного бетонного основания бани, глубоко погружённого в грунт.
- Несовместимость. Современные бани наиболее часто оборудуют металлическими печами , с которыми кирпичный дымоход несовместим. Чтобы их соединить, вытяжную конструкцию выкладывают отдельно, после чего соединяют с топкой посредством трубоотвода.
- Монтаж. Работа с кирпичной кладкой – сложный процесс, требующий определённых навыков. Важно знать, как правильно заделывать швы во избежание просачивания дыма через них.
Установка кирпичных дымоходов целесообразно в банях, выполненных из этого же материала. Тогда вся конструкция получится прочной и функциональной.
Из керамики
По техническим характеристикам керамика очень схожа с кирпичом: не подвергается воздействию высоких температур, влаги, кислотных и щелочных растворов. Однако керамические конструкции имеют круглое сечение, а гладкость материала исключает скапливание пыли и мусора на их поверхности.
Имеются и недостатки:
- относительная дороговизна;
- необходимость заливки фундамента;
- “съедание” полезной площади парилки.
Внимание! В соответствии с разновидностью наружных блоков дымоходы из керамики бывают одно- или двухканальными. Практичность такой конструкции трудно переоценить в случае соединения системы дымоотведения с двумя печами . Такое решение актуально в просторных банях большой площади с нескольким количеством изолированных помещений.
Из стекла
Стекло – универсальный и надёжный вариант. Его жаростойкость и ударопрочность находятся на очень высоком уровне. Однако важно учитывать высокую стоимость материала и работ по его последующей установке.
Из асбеста
Дымоходы из асбеста монтируются исключительно снаружи бани, поскольку из материала при нагревании выделяются токсичные вещества. В таком случае установка требует дополнительного использования стальных переходников, соединяющих вытяжку с топкой.
Дешевизна асбеста объясняется его коротким сроком службы. Он быстро впитывает влагу, которая при минусовых температурах имеет свойство к расширению с последующим разрушением всей конструкции. Помимо этого, стенки с лёгкостью накапливают сажу, очищение которой весьма проблематично и губительно для всей системы дымоотведения.
Из стали
Наиболее прочный и практичный материал. Для изготовления дымоходов обычно используют:
1. “Чёрное” железо
С целью экономии можно выбрать “чёрное” железо, являющееся разновидностью стали. Низкая стоимость не лишает материал основных технических опций:
- прочности;
- устойчивости к огню и механическим воздействиям;
- высокого уровня теплоотдачи;
- длительного эксплуатационного срока.
Среди минусов важно отметить:
- тяжёлая масса;
- уязвимость к коррозии;
- сложность монтажа.
Обратите внимание! Стальные дымоходы из “чёрного” железа – отличный вариант для металлических печей , выполненных из толстого листового материала.
Устройство дымохода для дровяной печи. Высота дымохода: зависимость от угла наклона кровли и расстояния до конька
На смену керамическому кирпичу, ранее применявшемуся для строительства дымоходных труб, все чаще приходят системы из других материалов. Чаще всего используются стальные трубы: неизолированные и изолированные. При этом вариант без изоляции может применяться только для внутреннего монтажа — в специально сооруженной шахте. Наружная установка трубы требует обязательного изолирования, в противном случае неизбежно образование конденсата на внутренних поверхностях.
Для того, чтобы определить высоту дымохода для промышленно изготовленного котла, следует воспользоваться формулой: h(м) = (∆p ⋅ Tp ⋅ Tн) / (3459 ⋅ (Tp - 1,1 ⋅ Tн)) , где ∆p (Па) — статическая тяга, Тр — средняя температура в середине трубы (по Кельвину), Тн — средняя температура воздуха снаружи. Температуру в трубе (Тр) можно узнать на основе измерений на выходе из котла и указывается заводом-изготовителем в техническом паспорте отопительного оборудования. При этом учитывается естественное охлаждение на каждый метр дымохода: в кирпичном — 1 градус, в стальном изолированном — 2 градуса, в стальном без изоляции — 5 градусов. Температура снаружи (Тн) должна быть летней: в это время тяга всегда будет слабее, чем зимой.
Однако, результаты расчета высоты дымохода в некоторых случаях нуждаются в корректировке, но только в большую сторону. Дело в том, что сам дом порой оказывается выше полученного значения высоты дымохода. В таком случае действует правило, гласящее:
- дымоход, расположенный на расстоянии до 1,5 м от конька, должен быть выше него как минимум на 0,5 м;
- если он расположен в пределах 1,5–3,0 м от конька, то его верхушка не должна быть ниже конька;
- при больших расстояниях от выхода дымохода до конька, высоту трубы выбирают такой, чтобы она была не ниже линии, проведенной от верхушки дома вниз под углом 10 градусов.
Дымоход в бане из стальной трубы своими руками.
Как известно, различные виды возгораний в частных домах нередко возникают по причине неправильно устроенной дымоходной системы. Для того чтобы обеспечить идеальный выход газов или дыма из помещений дома следует внимательно отнестись к устройству каждого элемента дымохода.
Конечно, можно заказать монтаж дымоходного канала специальной фирме, но стоит такая «процедура» очень недешево. В связи с этим, многие домовладельцы занимаются устройством дымохода самостоятельно. Сегодня мы разберем вариант самостоятельного выполнения внешнего дымоходного канала из стальных труб.

Технология монтажа и установки дымохода из стальных труб
Преимущества дымохода из стали
- стальной вариант современного дымохода не нуждается в фундаменте, в отличие от аналогов из кирпича или керамики. Отсюда реальная экономия времени, денег и сил;
- стальные дымоходные трубы способны одинаково эффективно обеспечивать выход продуктов горения от различных видов топлива, которые используются для функционирования газовых котлов. Речь идет о газе, угле, древесине;
- для производства стальных дымоходных труб используется только метал высшего качества, в который иногда добавляется титан (таким образом увеличивается прочность);
- в изделиях, предназначенных для эксплуатации в режиме повышенных режимов температуры, толщину стенок при производстве увеличивают. В результате такая труба способна выдержат нагревание до 600 градусов (не деформируясь);
- стальной вариант дымохода очень легок в монтаже, кроме того деформация стальных труб, вследствие механического воздействия, практически исключена;
- стальная конструкция дымохода может остывать в течение максимально короткого срока;
- сроки эксплуатации дымоходных систем из стали практически не ограничены.
Колпак на дымоход своими руками. Как изготовить колпак на дымоход камина своими руками
Камин и печь в собственном коттедже, бане или беседке – это сложная в инженерном плане конструкция, которая обязана отвечать всем требованиям пожарной безопасности. Для стабильного вывода продуктов горения через трубу дымохода понадобится дефлектор, перенаправляющий воздушные массы и не допускающий попадания воды и снега. Как сделать колпак на дымоход своими руками, определить наиболее практичную форму и составить чертежи? Основные задачи крышки на дымоотводе: К сведению: применение колпака повышает коэффициент полезного действия дымоотвода почти на 20 процентов. Навершия отличаются по геометрии форм и размеров. Их разновидности обусловлены стилем фасада дома и особенностями погодных капризов местности. Виды колпаков: Изготавливают колпаки из материалов, устойчивых к разрушительному воздействию погодных явлений. Это изделие закрепляется в очень труднодоступном месте, так что лучше не экономить, и приобрести нержавеющую сталь или листовую медь. Некоторые особенности применения колпаков: Воздух, попадая в стенку крышки, заворачивает наверх и своим движением подтягивает дым. Дымоотвод начинает работать эффективнее и значительно усиливается тяга. При угловом или вертикальном направлении ветра, зонт тоже помогает увеличить тягу. Чтобы не возникало проблем и при низовке, нужно установить на крышку обратный конус. Кроме того, предохраняя трубу от влаги, дефлектор препятствует развитию грибка и экономит топливо. К сведению: правильно изготовленный и надежно закрепленный колпак не должен шуметь или вибрировать даже при штормовом ветре. Сделать крышку на каминную или печную трубу не сложно самому. Для работы нужно приготовить: Прежде чем приступить к изготовлению, важно тщательно измерить трубу дымохода. Потом нужно сделать макет зонта из картона. Чертежи выкройки: Зонт должен надеваться на трубу без особых усилий, поэтому нужно при составлении чертежа оставить напуск в полсантиметра. После примерки макета, чертёж наносится на металлический лист. Заготовку вырезают ножницами. С помощью гибов материалу придаётся нужная форма. Стыки скрепляются 3-4 клёпками. Изготовление капельников аналогично. Кронштейны вырезаются из металлических пластин и при помощи сварки прикрепляются к фартуку и навершию. Точки сварки нужно обработать грунтовкой. Весь колпак дополнительно покрывается составом от ржавчины и краской. После остаётся лишь одеть его на трубу камина. Все стыки нужно обработать огнестойким герметиком. Зонт должен покрывать всю плоскость дымохода. На некоторых конструкциях есть выступ в половину кирпича, его тоже нужно прикрыть от дождя. К сведению: зимой на колпаке может образоваться наледь или шапка снега. Важно так подобрать толщину металла, чтобы его не продавило под такой тяжестью. Чрезмерно высокая или слишком низкая крышка не будут полноценно отводить дым, поэтому стоит сделать чертежи с учётом всех нужных параметров. Колпаком не сложно исправить дефекты дымохода, например, если он имеет недостаточную высоту.Форма и функциональность
Как работает колпак на дымоходе
Самостоятельное изготовление навершия дымохода