Изготовление отводов из рыбок. Секторные сварные отводы. Изготовление отводов из рыбок.
- Изготовление отводов из рыбок. Секторные сварные отводы. Изготовление отводов из рыбок.
- Как сделать отвод 90 градусов из трубы. Отвод трубы 90 градусов ГОСТ 17375-2001 100 мм, 159 мм
- Расчет отвода трубопровода. Строительная длина отвода
- Отвод трубы 90 градусов своими руками. Как сделать отвод 90 градусов из трубы
- Программа для раскроя отводов. Раскрой скачать программу
Изготовление отводов из рыбок. Секторные сварные отводы. Изготовление отводов из рыбок.
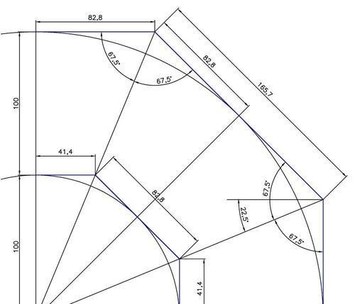
В этой статье речь пойдет о секторных отводах , о их изготовлении и разметке труб на сектора с помощью таблиц. В одной из своих статей я уже писал общую статью про отводы , в том числе про секторные. Но она скорее всего вводная и в ней не приведены конкретные цифры и таблицы про разметку секторных отводов , или как их еще называют сварные отводы , на сегменты.Для того, чтобы изготовить такие отводы изготавливают специальные шаблоны, по которым размечают трубу, а затем и режут ее на отдельные части (сектора и полусектора). Эти шаблоны называются « рыбками » ( Рис. 2,3 ). Для простоты разметки такого шаблона ( рыбки ) используют обычную бумагу.
Сначала необходимо выбрать угол поворота отвода, который нам нужен (30˚, 45˚, 60 ˚, 90 ˚). Затем из рис.1. собрать наш отвод из секторов и полусекторов.
Рис.1. Сектора и полусектора сварных отводов.
Полусектор — это часть секторного отвода, которая с одной своей стороны имеет прямой, а с другого конца скошенный угол
Сектор — это деталь без прямых углов скоса, является соединительной частью полусекторов в середине отвода.
Если есть возможность порезки трубы под углом, пользуются таблицей 1. Размеры сварных отводов, секторов и полусекторов ., но она также необходима для размеров для справки, сверки порезанных частей, при сборке и расчете веса отводов.
Таблица 1.
Размеры сварных отводов, секторов и полусекторов
таблицы 2,3 размечают шаблон(рыбку) ( Рис. 2,3 ). Отмечают общую длину L (Таблица 2,3) , после делят шаблон (рыбку) на 16 равных частей L/16 и отмечают все размеры. Шаблон (рыбка) зеркальный, поэтому можно разметить 9 точек, сложить пополам и разметить остальные точки.
Как сделать отвод 90 градусов из трубы. Отвод трубы 90 градусов ГОСТ 17375-2001 100 мм, 159 мм
Металлические трубы различного назначения используются повсеместно. А так как при монтаже и производстве различных конструкций и трубопроводов бывает необходимо соблюдать определенную геометрическую форму, то широко используются дополнительные конструктивные элементы. Одним из таких элементов является отвод. Отвод – специальный фитинг, который изменяет направление течение различных жидкостей и газов.
Стандарты
Существует целый ассортимент отводов с разными углами – 45, 60, 90 и 180О. Все они изготавливаются по ГОСТ 17375-2001 из различных марок сталей и отвечают всем требованиям надежности и прочности. Однако купить их бывает довольно непросто, особенно когда проживаешь в сельской местности и до крупных магазинов далековато.

Стандарты угловых отводов
ГОСТ 17375-2001 подразумевает использование стали более высокого качества, чем при изготовлении труб, но на таких диаметрах и для бытовых задач вполне достаточно и материала, из которого изготовлены трубы. Такой отвод трубы 90 градусов из стали переносит все нагрузки и служит не меньше самого основного трубопровода.

Как быть в такой непростой ситуации и реально ли в домашних условиях из подручных материалов своими руками изготовить отвод поговорим в настоящей статье.
Как сделать отвод 90 градусов из трубы
Самый простой вариант– найти справочник по изготовлению и монтажу трубопроводов. В нем есть чертежи для изготовления со справочными размерами. Для изготовления потребуется сделать выкройки из картона или плотного листа бумаги, обвести их по контуру на трубе, а затем с помощью болгарки или газа вырезать детали и сварить. Особое внимание следует уделять качеству швов, так как гораздо проще подварить и проверить изделие в еще не собранном состоянии, чем потом лазить по углам и искать течь.

Качественный шов
Трубы диаметром до 100 мм гнуться на трубогибе методом нагрева, и как правило не нуждаются в изготовлении специальных фитингов. Обычно для изготовления угла в 90 градусов используется 3-4 сегмента. Если диаметр трубы будет 100-159 мм, достаточно 3 сегментов. При диаметре свыше 159 мм используются уже 4 сегмента. Изготовление фитингов 90 градусов на трубы диаметром более 180 мм возможно с применением 5 и более сегментов, чтобы завихрения потока были не такими большими.

Разметка фитинга
Отвод трубы 90 градусов 100 мм можно сделать своими руками и без использования выкроек. Для этого достаточно отрезать на глазок два куска стальной трубы с углом примерно 30-35 градусов, а третью часть подгонять уже по месту. Если сила завихрений не играет важной роли можно обойтись и вообще двумя кусками трубы 100 мм по 45 градусов, сваренными между собой.

Фитинг из трех сегментов
На трубу 159 мм отвод 90 градусов своими руками сделать можно точно так же как и на 100 мм. Единственная сложность может возникнуть при вырезании раскроенных кусков, так как 159 мм труба идет с усиленными стенками и достаточно сложно режется болгаркой. Именно поэтому трубы диаметром 159 мм и 180 мм проще резать газовым резаком, что будет более быстро и безопасно.
Как правильно приварить фитинг
Для того чтобы выполнить красивый и надежный монтаж трубопровода и приварить отвод к трубе 90 градусов нужно правильно подобрать сварочный аппарат и электроды. Эту информацию лучше поискать на профильных форумах, где специалисты охотно расскажут какими электродами и режимами работы сварочного аппарата пользуются они в профессиональной работе.

Детали трубопроводов варятся по методу встык, это когда края плотно прилегают друг к другу. Толщина электрода для таких работ берется 2-3 мм при сварочном напряжении 80-110 Ампер. Для того, чтобы внутрь попадало как можно меньше отгоревшего металла электрод нужно располагать под углом 45О к поверхности. Круглые трубы желательно варить одним непрерывным швом. После сварки необходимо дождаться полного охлаждения шва и отбить шлак, и только после этого переходить к следующему шву.

Для того чтобы получались красивые и ровные швы необходимо набить руку, поэтому не отчаивайтесь если сразу не будет получаться. Потренируйтесь предварительно на сварке просто небольших кусков трубы. И лишь после этого стоит переходить непосредственно к сварке трубопровода.
Расчет отвода трубопровода. Строительная длина отвода
Строительная длина – понятие часто используется в строительстве. Однако расшифровки данного понятия в официальных документах (ГОСТ, СНИП и т.п.) отсутствует. В таком случае принимается понятие применяемые в жизни.
Например, по Ефремову Т. Ф. «Толковый словарь русского языка» длина это:
а) Протяжение линии, плоскости, тела и т.п. в том направлении, в котором две крайние его точки наиболее удалены друг от друга.
б) Протяженность, расстояние между концами чего-либо.
По Википедии длина — физическая величина, числовая характеристика протяжённости линий. В узком смысле под длиной понимают линейный размер предмета в продольном направлении.
Другие понятия «Длины» можно посмотреть в .
В строительстве термин «длина» обычно используется как синоним «расстояния».
Часто используются следующие понятия «строительная длина»:
* Длина (применительно к теплоизоляционным материалам): наибольший линейный размер лицевой грани измеряемого образца .
* Строительная длина (применительно к трубопроводной арматуре): линейный размер арматуры между наружными торцевыми плоскостями ее присоединительных частей .
* Строительная длина (применительно к кабельному изделию): нормированная длина кабельного изделия в одном отрезке .
Рассмотрим понятие длина, строительной длины применительно к трубопроводным изделиям. Из следует, что это линейный размер между наружными торцевыми плоскостями ее присоединительных частей* (см. рис. 1).
* Примечание: Ссылка на ГОСТ применительно к трубопроводным деталям не совсем правильная. Так как строительная длина по ГОСТ применяется только к трубопроводной арматуре. В строительных нормах нет указаний, как считать длину, строительную длину отвод. Однако понятие "строительной длины" приведённое в ГОСТ , по мнению автора, применимо и к трубопроводным деталям.
Рисунок 1. Отводы: 90°, 60°, 45° и 180°
Рассмотрим строительную длину в примерах.
Так для отвода 90° длиной будет расстояние 2 F = 2 R , Ф. 1
для отвода 60° длиной будет расстояние 2 W ,
для отвода 45° длиной будет расстояние 2 H ,
а для отвода 180° длина равна 2 B+С .
Примечание: Проектировщики при расчёте проектной длине трубопроводов используют эти формулы. Например, при отводе 90° добавляют к длине трубы две радиуса отвода (2 R ). В проектах отводы рисуют как углы, длины которых учитывают без радиусов. Вот для таких углов в ГОСТ и даны длины F , W , H , B , C .
Однако для расчёта объёма теплоизоляционных материалов и площади покрытия применяются другие расчёты, учитывающие фактические размеры деталей и объём (площадь) изоляции.
Для расчёта длины отвода – использована формула развёрнутой длины отвода L :
Ф. 2
где R – радиус кривизны осевой линии (радиус изгиба) отводов. Радиус R указан в ГОСТ, ТУ и обычно приблизительно равен 1 D или 1.5 D ;
θ – угол (в градусах) между плоскостями торцов (угол изгиба) отводов.
Примечание: При сравнении длины отвода 90° по формулам 1 и 2, показывает что ф.1 примерно на 28% даёт большее значение, чем ф.2.основан на ф.2, с R =1,5 Дн
По ссылке можно скачать файл с расчётными длинами отводов — строительная и развёрнутая длина отводов Строительная длины отвода — 18.05.2020 г. Длина отводов используется:
* при расчёте длины трубопровода, когда к длине трубы добавляется строительная длина отвода;
* при расчёте объёма теплоизоляции и площади покрытия, развёрнутую длину отвода подставляют в калькулятор для расчёта участка трубопровода с отводом.
Расчёт объёма теплоизоляции и площади покрытия отвода так же можно сделать в калькуляторе . В данном калькуляторе для расчёта применяет усреднённые значения отводов.
Отвод трубы 90 градусов своими руками. Как сделать отвод 90 градусов из трубы
Самый простой вариант– найти справочник по изготовлению и монтажу трубопроводов. В нем есть чертежи для изготовления со справочными размерами. Для изготовления потребуется сделать выкройки из картона или плотного листа бумаги, обвести их по контуру на трубе, а затем с помощью болгарки или газа вырезать детали и сварить. Особое внимание следует уделять качеству швов, так как гораздо проще подварить и проверить изделие в еще не собранном состоянии, чем потом лазить по углам и искать течь.

Качественный шов
Трубы диаметром до 100 мм гнуться на трубогибе методом нагрева, и как правило не нуждаются в изготовлении специальных фитингов. Обычно для изготовления угла в 90 градусов используется 3-4 сегмента. Если диаметр трубы будет 100-159 мм, достаточно 3 сегментов. При диаметре свыше 159 мм используются уже 4 сегмента. Изготовление фитингов 90 градусов на трубы диаметром более 180 мм возможно с применением 5 и более сегментов, чтобы завихрения потока были не такими большими.
Разметка фитинга
Отвод трубы 90 градусов 100 мм можно сделать своими руками и без использования выкроек. Для этого достаточно отрезать на глазок два куска стальной трубы с углом примерно 30-35 градусов, а третью часть подгонять уже по месту. Если сила завихрений не играет важной роли можно обойтись и вообще двумя кусками трубы 100 мм по 45 градусов, сваренными между собой.

Фитинг из трех сегментов
На трубу 159 мм отвод 90 градусов своими руками сделать можно точно так же как и на 100 мм. Единственная сложность может возникнуть при вырезании раскроенных кусков, так как 159 мм труба идет с усиленными стенками и достаточно сложно режется болгаркой. Именно поэтому трубы диаметром 159 мм и 180 мм проще резать газовым резаком, что будет более быстро и безопасно.
Программа для раскроя отводов. Раскрой скачать программу

Программа позволяет на предприятиях по производству мебели создавать план раскроя листового типа. Программа простая в использовании на любом компьютере.
Функционал программы.
- С помощью программы можно быстро изготовить рулонные и листовые материалы;
- Программа рассчитана на работу пользователя с любым опытом работы с компьютером;
- Есть функция раскроя с удалением лишних кусков листа;
- Поддерживается ОС Windows, начиная с версии XP и завершая версией 10.

Пользователь может указывать подходящие размеры, производить расчеты, создавать и сохранять проекты. Дополнительное удобство создается путем добавления всей информации о заказе в базу данных. В ходе работы можно внести информацию о деталях, материале и готовности заказе. При указе параметров пользователем программа сообщает о правильности данных. Чертежи можно наносить на дерево, стекло и металл, исключая лишние затраты материала.
В базе данных хранится вся информация, поэтому весь не переработанный материал идет на вторичное использование.
Особенности программы заключается в следующем:
- Каждая деталь имеет символьное название;
- Есть возможность добавить дополнительный набор листов к основному при следующей обработке;
- При расчете можно объединить заказы для экономии расходных материалов;
- Для каждого материала имеется база данных. При выборе необходимого материала программой предлагается параметры листа.
Описание программы.

Программу Раскрой пользователь может скачать бесплатно. В начале работы необходимо задать параметры деталей, которые будут вырезаться. Программа при этом подбирает необходимые параметры для предотвращения образования большого количества излишек материала.
Все резы, которые производятся во время работы, осуществляются по горизонтали или по вертикали. При расчете раскроя программа автоматически ведет учет определенного материала.
Программа снабжена удобным интерфейсом на русском языке, легким в использовании для любого пользователя. Данная программа существенно сэкономит время и поможет произвести различные расчеты проекта. На любом этапе есть возможность внесения изменений в параметры, что значительно оптимизирует процесс резки материала. С программой вероятность совершения любых ошибок значительно сокращается. Для фирм, занимающихся резкой стекла, дерева и иного материала такая программа просто необходима.