Как правильно запилить коробку для межкомнатной двери. Сборка дверной коробки: главное — внимательность, точность, аккуратность
- Как правильно запилить коробку для межкомнатной двери. Сборка дверной коробки: главное — внимательность, точность, аккуратность
- Как сделать дверную коробку из доски. Как можно сделать дверь из досок своими руками: подробная инструкция
- Как крепить коробку межкомнатных дверей. Как закрепить дверную коробку в проеме: способы монтажа
- Сборка дверной коробки без порога. Правила установки межкомнатных дверей
- Запил дверной коробки под 90 градусов. Разновидности дверных коробов
- Как подогнать коробку под дверь. Что такое дверная коробка?
- Как собрать дверную коробку из мдф. Как собрать дверную коробку?
- Запил дверной коробки под 45 градусов. Как правильно запилить торцы дверной коробки
- Сборка дверной коробки межкомнатной двери. Размеры и комплектация
Как правильно запилить коробку для межкомнатной двери. Сборка дверной коробки: главное — внимательность, точность, аккуратность
7 мин.
Двери
Коробка — это часть конструкции дверного блока, в нее устанавливают полотно. Функция этой рамы — обеспечение правильного монтажа створки. В отличие от металлических изделий, деревянные коробки редко продаются полностью подготовленными к установке. Причина — невозможность точной подгонки размеров под конкретный проем. Эта работа достаточно требовательна к мастеру, поэтому многие обращаются за помощью к профессионалам. Однако такие услуги нередко обходятся неоправданно дорого, а самостоятельная сборка дверной коробки привлекает тем, что обещает значительную экономию. Сам процесс установки нельзя назвать невероятно сложным, но он требует соблюдения правил и предельной аккуратности. Двери — капризные столярные изделия, они ошибок не прощают.
Материал дверной коробки

Функции это рамы не ограничиваются обрамлением двери, так как короб является несущей частью, обязанной выдержать вес полотна (или нескольких створок). Поэтому от качества материала зависит долговечность, прочность всей конструкции. Выбор зависит лишь от предназначения дверного блока. Так как металлические и металлопластиковые конструкции поставляются полностью готовыми к монтажу, то рассмотреть нужно лишь два вида — дерево и МДФ.
- Дерево. Весь материал делится на мягкий и твердый. Самый недорогой и популярный товар — сосна, однако она не лучший выбор, если приобретают блок для входных дверей. В этом случае советуют обратить внимание на другие, более прочные, дорогие породы — например, на дуб.
- Недостаточная прочность МДФ — причина, по которой этот материал для входных дверей обычно не используют, их «ниша» — межкомнатные конструкции. Перед сборкой дверной рамы все края, которые разрезали, необходимо обработать нитролаком, он гарантирует защиту от влаги.
Самостоятельная сборка дверной коробки из обоих материалов дает возможность идеально подогнать дверь под проем, поэтому точность во всем — главное требование к мастеру.
Комплект и стандартные размеры
Стандартная дверь имеет высоту 2000 мм, ширина может быть различной — 700, 800, или 900 мм. Внутренние размеры коробки для нее больше на 3 мм, внешние — на 70 мм, если в качестве материала используют стандартные планки, имеющие такую толщину.
Дверная рама состоит из определенного количества элементов: пары боковых, верхней, нижней планки. Последняя присутствует, если конструкция предусматривает порог. У каждой детали комплекта есть свое название:
- петлевой косяк — главная вертикальная стойка, куда крепят навесы;
- притвор — противоположная сторона, на ней монтируют ответные планки замка либо защелки;
- притолока — верхний горизонтальный элемент, который соединяет стойки, другое его название — верхний брус;
- порожек — нижняя часть, она предусматривается не всегда, но обязательна для дверных блоков в ванной, туалете, где возможна аварийная ситуация — потоп.
Коробки с порожком — идеальный вариант для комнат, которым нужна хорошая звукоизоляция. Если глубина проема больше, чем ширина бруса, то в комплект обязательно должны входить доборы, с помощью этих дополнительных элементов глубину любого короба можно относительно просто увеличить.

Как сделать дверную коробку из доски. Как можно сделать дверь из досок своими руками: подробная инструкция
У некоторых городских граждан есть собственный загородный дом с земельным участком, а у большинства просто дача с огородом. Как правило, для обработки земли и уборки территории используется различный инвентарь и технические средства. Для их хранения на любом участке обязательно строится сарай или небольшая хозяйственная постройка. Дачники такие сооружения стараются возводить самостоятельно, чтобы сэкономить собственные средства. Поэтому многие из них интересуются, как сделать дверь из досок своими руками.

Варианты дверных конструкций
Дверных конструкций для установки в хозяйственных помещениях есть несколько вариантов. Они могут быть раздвижными или распашными. Основными элементами конструкции является коробка и полотно. Короб монтируется непосредственно во входной проем сарая, а полотно фиксируется на петли, закрепленные на коробке.

Для хозяйственных построек двери обычно делают из подручных деревянных материалов. Брус используется для изготовления коробки. А дверное полотно часто делают из досок или ДСП панелей.
Как правило, в распашных конструкциях полотно навешивается на петли, вмонтированные на одной из вертикальных стоек коробки в зависимости от того, с какой стороны хозяевам удобнее открывать дверь.
Важно помнить, чтобы дверь не загромождала свободное пространство помещения, она должна открываться на улицу.
Раздвижные конструкции отличаются от распашных тем, что их створки открываются вдоль стены по специально оборудованным направляющим. Если дверь достаточно тяжелая, такие направляющие устанавливаются сверху и снизу дверного блока.

Но для хозяйственных построек чаще всего применяют амбарные распашные двери. В зависимости от ширины проема они также могут оснащаться одной или двумя створками.
Какой должна быть дверь из досок
Требования к дверным конструкциям, предназначенным для хозяйственных построек:
- Деревянная дверь, изготавливаемая из деревянной доски своими руками, должна быть прочной, т.е. способной выдержать взлом злоумышленников;
- Открывающиеся створки должны иметь достаточную ширину, например, чтобы в сарай можно было загнать мотоблок или прочие технические средства;
- На дверях обязательно должен быть установлен надежный замок, который сложно взломать;
- Несмотря на то, что конструкция предназначается для сарая или прочего хозяйственного строения, она должна иметь привлекательный внешний вид.

Коробка
Короб двери изготавливается из 3-4 деревянных брусков толщиной 7,5-15 см, каждый из которых имеет собственное название в зависимости от выполняемых функций:
- Петельный – вертикальный брус с петлями, на которые навешивается дверное полотно;
- Притворный – второй вертикальный брус, который устанавливается напротив петельного;
- Притолочный – верхний горизонтальный брус, устанавливаемый между двумя вертикальными под потолком;
- Порог – нижний горизонтальный брус между вертикальными стойками. Дверной блок может быть и без него.

Полотно
Для изготовления полотна используются доски толщиной 3-5 см или брус аналогичных параметров. Конструкция дополнительно укрепляется подкосом и шпонками, которые изготавливают из реек или брусков толщиной от 10 мм. При этом подкос крепится по диагонали дверного полотна, а шпонки перпендикулярно доскам сверху и снизу. В результате из них получается буква английского алфавита «Z».

Самый простой вариант – полотно из досок складывается на ровном половом основании, сверху набивается подкос и шпонки. Но можно усложнить задачу, сделав дополнительно выемки в досках под поперечные бруски. Такая конструкция прочнее, но из-за сложности сборки большинство хозяев предпочитают первый способ.
В зависимости от предназначения постройки амбарные двери могут дополнительно утепляться. Например, если в сарае круглый год живет птица или другие животные.

Наличники
Чтобы дверная конструкция имела более привлекательный внешний вид, промежутки между коробом и стеной проема закрывают декоративными наличниками, которые также изготавливаются из древесины.
Инструменты и материалы
Перед тем, как сделать дверь из досок своими руками, необходимо разобраться какие для этого понадобятся материалы и инструменты.

Как крепить коробку межкомнатных дверей. Как закрепить дверную коробку в проеме: способы монтажа
Установка дверной коробки межкомнатной двери не отличается сложностью. Главное, надо определиться со способом монтажа и четко следовать алгоритму. Существуют разные варианты того, как закрепить косяк межкомнатной двери к проему. Часто домашние мастера применяют такие методы:
- крепление на герметик, пену;
- установка на подвесы;
- сквозная фиксация анкерами либо саморезами ;
- скрытый тип установки;
- использование особой готовой системы крепежей.
Каждый из этих методов установки дверей имеет свои особенности, преимущества и недостатки.
Крепление на монтажную пену
У становка дверей с помощью пены является популярным вариантом среди домашних мастеров. Это обусловлено простотой реализации метода. Дверную коробку собирают. Ставят в дверной проем и выравнивают. Для этого применяют клинья. Положение коробки стоит проверять правилом, отвесами. Зазор между рамой и проходом запенивают . Но надо учитывать, что герметик имеет свойство расширяться при застывании. Поэтому делать фиксацию им нужно аккуратно. Заполнять зазор следует не полностью. Надо учитывать коэффициент расширения средства. Он зависит от состава пены и указывается на этикетке производителем. Если задуть в зазоры слишком много герметика, то коробка дверного блока деформируется. После застывания средства его лишние части обрезают. Клинья убирают.
Крепеж на подвесы
Фиксация дверной коробки с помощью подвесов относится к скрытым способам монтажа. Она не нарушает целостность короба. Скрывает все крепежные элементы. Для реализации данного способа применяют прямые подвесы, которые подходят для монтажа гипсокартонных изделий. Рекомендуется использовать подвесы известных фирм. Например, жесткие и надежные подвесы выпускает фирма Кнауф и прочие аналогичные компании.
Для фиксации дверной коробки с помощью подвесов надо выполнить ряд следующих действий:
- Вставить собранную раму без дверного полотна в проход. Выровнять ее по уровню. Зафиксировать клиньями.
- Отогнуть крылья подвеса к стенам. Отметить положение.
- На месте метки сделать выборку. Пластина должна встать заподлицо со стеной.
Сквозное крепление на саморезы /анкера
Одним из самых популярных способов фиксации дверной коробки считается ее установка с использованием анкеров либо саморезов . Он идеально подходит для тяжеловесных дверных конструкций, которые планируется ставить в проемы стен из разных материалов. Анкера для дверной коробки межкомнатной двери надо применять только качественные и надежные.
Суть способа в том, что в вертикальных стойках рамы дверного блока просверливаются сквозные отверстия. Дверную раму вставляют в проход и закрепляют клиньями. Через отверстия ставят точки на стене прохода. Раму убирают. В местах отметин высверливают отверстия под крепежи. Коробку снова ставят в проход и окончательно фиксируют анкерами, саморезами . Ставят декоративные заглушки.
Скрытая установка с помощью анкеров, саморезов
Установить раму с дверным полотном можно и с помощью скрытого способа. При нем используются анкера или саморезы . В этом случае крепежные элементы прячут под петлями либо под декоративной пластиной запирающего устройства. Для этого снимают дверную фурнитуру. Крепят раму в проем с помощью анкеров или саморезов . Точки фиксации должны располагаться в местах установки петель. Затем навешивают дверное полотно. Ставят фурнитуру.
Монтаж на готовую особую систему
Можно просто установить дверную раму с полотном на специально предназначенную для этого систему. Это универсальный монтажный готовый комплект. Его используют для качественной установки двери без особых временных затрат. Он позволяет отрегулировать коробку без клиньев и надежно закрепить ее в требуемом положении.
К раме с наружной стороны прикручиваются кронштейны с пазами и отверстиями. В проем двери забивают дюбеля, вкручивают болты. Навешивается короб путем надевания кронштейнов на головки болтов. Системы рассчитаны на разную нагрузку. Это надо учитывать при выборе такого изделия.
Сборка дверной коробки без порога. Правила установки межкомнатных дверей
К особенно важным характеристикам следует отнести наличие одинаковых по размерам щелей вокруг дверной коробки и самой дверью. Превосходным показателем принято считать зазор, составляющий 2-3 мм по всей длине притвора при условии, что открытие и закрытие дверей не сопровождается скрипом или цеплянием.

Рекомендуемые зазаоры между дверью и дверным проемом
Многое будет также зависеть и от самого дверного приема и качества проведенных подготовительных и других работ. При наличии высокого показателя отклонения стены с проемом по вертикали, установить качественно дверь самостоятельно не получится, даже при условии наличия соответствующего опыта в этом деле. При установке межкомнатных дверей, ориентироваться мастер будет по одной из вертикалей и равняться на плоскость стены. И если стена не выровнена, то вертикаль в любом случае выйдет за границы стены. Соответственно, и используемый наличник в процессе эксплуатации с одной стороны будет плотно примыкать к стене, в то время как с другой — существенно отходить от нее. Выглядеть подобное будет непрезентабельно, да и конструкция станет травмоопасной.
Во избежание несчастных случаев и некачественной установки дверей следует предварительно провести отделочные работы, направленные на выравнивание стены.
Дверная коробка устанавливается в первую очередь, а после этого осуществляется выравнивание прилегающей к конструкции поверхности. На время ремонтных работ дверь удаляется, а коробку следует обклеить монтажным скотчем, в основе которого лежит использование обычной бумаги, которая не повредит покрытие. С его помощью можно оклеивать даже обои, с которых он без труда после удаляется.
Запил дверной коробки под 90 градусов. Разновидности дверных коробов
Чтобы правильно установить дверной короб в стеновой проем, предварительно рекомендуется изучить конструкцию изделия.
Коробка является несущим элементом дверной конструкции, который принимает на себя нагрузку полотна. Она состоит из одной горизонтальной и двух вертикальных планок, соединяющихся между собой. Крепление короба осуществляется непосредственно к стенкам входного или межкомнатного проема.
Несущий элемент двери формирует ровный портал, а также обеспечивает надежное крепление самой двери. С одной стороны рамы коробки крепятся петли, на которые навешивается полотно, с другой стороны выполняется отверстие для замочного механизма и крепится ответная планка.
Положение двери в первую очередь зависит от правильного монтажа несущей составляющей (короба). Поэтому именно данный этап работ является приоритетным. Даже из-за незначительного перекоса двери буду плохо закрываться, затираться и быстро изнашиваться. Также важно обращать особое внимание на прочность рамы, учитывая вес материала, из которого изготовлено полотно.

Дверные коробки, предлагаемые на рынке, классифицируются по разным показателям. Одним из них является технология сборки конструкции: прямая, диагональная или шип в паз. Установка в дверной проем коробки межкомнатной двери выполняется только после предварительной сборки конструкции.
В первом случае элементы дверной коробки соединяются между собой перпендикулярно. Во втором – края планок обрезаются под 45 градусов. В обоих случаях для их соединения используются шурупы. Самым надежным способом соединения конструкции является шип в паз, который вырезан непосредственно в планке.
Также коробки можно разделить на разные типы по материалу изготовления. Для их производства используют сталь, дерево, пластик и МДФ панели. Сегодня на входе в квартиры и частные дома чаще всего устанавливают металлические конструкции. Они наиболее прочные, надежные и долговечные. Деревянные двери устанавливаются в межкомнатные проемы, а пластиковые — на балконах.
Как подогнать коробку под дверь. Что такое дверная коробка?
Коробка является частью дверного блока. Применяется в моделях распашного типа, к ней на петли подвешивается створка. Устанавливают лудку входной или межкомнатной двери в проём на стене. Самым популярным материалом для изготовления коробок считается массив. Дешевле вариант – МДФ и другие комбинации из древесных отходов. Лудки могут иметь на торце нарезные пазы, предназначенные для фиксации наличников и доборов.

Скрытую коробку двери прячут при монтаже в стене, она изготавливается из алюминия. Невидимыми остаются даже петли.

Устройство дверной рамы предполагает использование трёх или четырёх элементов. П-образные лудки без порога состоят из двух стоек, соединённых вверху поперечиной. У полноценной лудки четвёртым элементом выступает порог. Такие рамы обязательны при установке дверного блока в санузел или на вход в помещение.
Продаются коробки обычно комплектом с доборами и наличниками. Дополнительные элементы помогают облагородить дверной проём. Устройство лудки различается по следующим признакам:
- с доборами или без;
- с телескопическими наличниками или планками без пазов;
- с наличием или отсутствием уплотнителя;
- с накладной или врезной фурнитурой.

Удобной в монтаже и использовании считается коробка с телескопическими наличниками, а также укомплектованная уплотнителем.
Форма и размеры конструкции
Основа-короб должен соответствовать параметрам двери (ширине и высоте), для того чтобы обеспечивать полный охват и поддержку конструкции. Важным нюансом относительно полотна является назначение помещения, для которого оно предназначено. Потому что от этого будут зависеть требования к вентиляции. В парных и банях двери должны обеспечивать надёжную теплоизоляцию, поэтому проём заделывают максимально герметично.
Ванную комнату, наоборот, нужно хорошо проветривать, для того чтобы не скапливалась лишняя влага и не появлялась плесень. Поэтому зазор между коробом и дверью должен быть немного шире. А также требуется хорошая вентиляция для помещений, в которых установлено газовое оборудование.
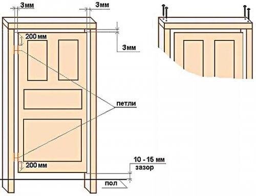
Для обеспечения надёжной защиты от утечки тепла из четырёх брусков сооружают прямоугольную раму, которая будет служить коробкой для двери. Вертикальные стойки станут петельным и притворным элементом, а поперечные – верхней опорой и порогом.

Для свободного движения полотна зазор должен быть между дверью и стойками около 3 мм. В тех случаях, когда необходим приток воздуха в помещение, короб собирают из трёх брусков, а на месте порога делают зазор около 10–15 мм. Вдоль вертикальных стоек и притолоки оставляют стандартное расстояние в 3 мм.

Коробка с порогом в сборе немного выше, чем без него. Разница составляет около 20 мм. Важно учесть этот нюанс, чтобы не пришлось укорачивать дверь. Потому что подогнать полотно можно только в том случае, если оно изготовлено из дерева.
Зазор между дверной коробкой и проёмом должен быть не меньше 10 мм с каждой стороны, чтобы конструкцию легко можно было установить и зафиксировать.
Разновидности дверных коробов
Чтобы правильно установить дверной короб в стеновой проем, предварительно рекомендуется изучить конструкцию изделия.
Коробка является несущим элементом дверной конструкции, который принимает на себя нагрузку полотна. Она состоит из одной горизонтальной и двух вертикальных планок, соединяющихся между собой. Крепление короба осуществляется непосредственно к стенкам входного или межкомнатного проема.
Несущий элемент двери формирует ровный портал, а также обеспечивает надежное крепление самой двери. С одной стороны рамы коробки крепятся петли, на которые навешивается полотно, с другой стороны выполняется отверстие для замочного механизма и крепится ответная планка.
Положение двери в первую очередь зависит от правильного монтажа несущей составляющей (короба). Поэтому именно данный этап работ является приоритетным. Даже из-за незначительного перекоса двери буду плохо закрываться, затираться и быстро изнашиваться. Также важно обращать особое внимание на прочность рамы, учитывая вес материала, из которого изготовлено полотно.

Дверные коробки, предлагаемые на рынке, классифицируются по разным показателям. Одним из них является технология сборки конструкции: прямая, диагональная или шип в паз. Установка в дверной проем коробки межкомнатной двери выполняется только после предварительной сборки конструкции.
В первом случае элементы дверной коробки соединяются между собой перпендикулярно. Во втором – края планок обрезаются под 45 градусов. В обоих случаях для их соединения используются шурупы. Самым надежным способом соединения конструкции является шип в паз, который вырезан непосредственно в планке.
Также коробки можно разделить на разные типы по материалу изготовления. Для их производства используют сталь, дерево, пластик и МДФ панели. Сегодня на входе в квартиры и частные дома чаще всего устанавливают металлические конструкции. Они наиболее прочные, надежные и долговечные. Деревянные двери устанавливаются в межкомнатные проемы, а пластиковые — на балконах.
Как собрать дверную коробку из мдф. Как собрать дверную коробку?
Чтобы собрать коробку правильно, подготавливают ровную горизонтальную поверхность. Предпочтительно работы выполнять на полу, подстелив мягкую подложку, чтобы избежать повреждения элементов коробки при сборке.
Монтируя конструкцию из МДФ своими руками, сначала отпиливают верхнюю перекладину в зависимости от выбранной ширины двери. Обязательно предусматривают припуск для свободного движения створки. Затем отрезают все элементы коробки.
Чтобы конструкция получилась идеально ровной, все элементы, из которых изготавливается коробка МДФ, раскладывают на полу. Сначала располагают вертикальные элементы лутки, рядом с ними – верхнюю перекладину. Между верхней перекладиной и вертикальными брусами должен быть прямой угол. Все элементы укладывают «на ребро». Если угол будет отличаться от прямого в большую или меньшую сторону, установить дверную коробку из МДФ в проем не получится.
Чтобы исключить случайное смещение элементов относительно друг друга, в монтажные пазы вставляют притворные планки. После того как все планки займут свое место, укладывают дверное полотно. Чтобы между коробкой и дверным полотном был равномерный зазор, в него помещают картон одинаковой толщины.
После того как коробке придали требуемую форму, верхнюю перекладину соединяют с вертикальными стойками. Для этой цели используют специальные саморезы, предназначенные для скрепления деревянных элементов. Выбирая место крепления, следует выбирать точки как можно ближе к центру. Для соединения двух соседних элементов хватит двух шурупов.
Совет! Учитывая, что в процессе скрепления отдельных элементов МДФ может расколоться, предварительно просверливают отверстия небольшого диаметра, в которые затем закручивают шурупы.
Собрав П-образную основу, контролируют ширину конструкции. После этого отрезают лишний материал, чтобы обеспечить соответствие монтируемой конструкции по высоте. При определении высоты коробы учитывают наличие или отсутствие порога. Отрезав вертикальные стойки нужной высоты, фиксируют пространственное положение элементов коробки относительно друг друга.

Сборка коробки
Если монтируется конструкция с порогом, его размещают в нужном месте и скрепляют с вертикальными стойками. При отсутствии порога, собирая короб, используют монтажную планку, которая поможет временно зафиксировать взаимное положение элементов. Собранный таким образом короб должен идеально подойти для дверного проема. Надежно зафиксировав все элементы, можно устанавливать его на место.
Запил дверной коробки под 45 градусов. Как правильно запилить торцы дверной коробки
Одним из правил «хорошего тона», является запиливание стыков короба и наличников под углом в 45 градусов. Самый качественный запил производится с помощью торцовочной пилы. Если у вас нет возможности использовать этот инструмент, можете воспользоваться стуслом и специальной ножовкой для сверхчистого реза «пасовкой» или «шиповкой». Очень рекомендую для начала потренироваться на обыкновенных брусках и «набить руку».
Сначала запиливают боковые элементы короба . Не следует сразу отрезать стойки по длине. Объясню почему. Если вы сделаете неправильный запил верхней части под углом 45 градусов, у вас уже не будет возможности исправить ошибку, отрезав еще раз, ведь стойка уже укорочена, и делать ее еще короче, будет просто некуда. Сначала запилите самое сложное, то есть, верхние угловые стыки и проверьте правильность запила угольником. Угол должен быть четким, без отклонений, а плоскость реза идеально ровной. При отклонении даже в пару градусов, при сборке коробки, вы не сможете добиться на стыках угла в 90 градусов, что является обязательным условием качественной работы.
Закончив с запилом стоек, переходим к поперечному элементу короба . Тут так же нужно быть очень внимательным. Ведь второй конец нужно будет запилить не только под углом, но и по длине, так, чтобы остались необходимые зазоры между дверным полотном и боковыми стойками короба. Длина внутренней части, обращенной к дверному полотну должна быть на 8 мм. больше ширины дверного полотна . Если ширина дверного полотна составляет 60 см., то длина будет 60,8 см. Сделайте точную разметку и совершите распил.
Сборка дверной коробки межкомнатной двери. Размеры и комплектация
Межкомнатные двери выпускаются стандартных размеров, жаль только, что стандарты в разных странах отличаются. Например, в нашей стране распашные двери делают шириной 600 — 900 мм с шагом 100 мм. В некоторых странах ЕС нормы такие же — в Г ермании, Италии и Испании. Во Франции стандартны другие. Тут самые узкие двери 690 мм и далее с шагом 100 мм.
А так ли важна разница? Если поменять захотите только дверное полотно без коробки, то важно — придется выбирать из своего сегмента или полностью менять вместе с коробкой. Межкомнатных дверей такого стандарта, как в нашей стране, выбор намного больше, как во Франции — в разы меньше.

Рекомендуемая ширина дверного полотна для разных размеров дверной коробки
Какой ширины двери нужны зависит от того, куда собираетесь их ставить. Если говорить о стандартах, то рекомендуются следующие величины:
- в жилую комнату ширина от 60 до 120 см, высота 2 м;
- санузел — ширина от 60 см, высота 1,9-2 м;
- в кухню ширина дверного полотна не менее 70 см, высота 2 м.
Если при замене двери решено проем сделать больше/меньше, на это разрешения не нужно, но необходимо оставаться в заданных для каждого помещения пределах.
Как же определить, какой именно ширины покупать двери? Измерьте дверное полотно, которое имеется и будете знать, что вам необходимо. Если дверей нет, найдите самое узкое место в проеме, измерив его, вы сможете узнать, какой ширины вам необходим дверной блок. Это дверное полотно + дверная коробка. Так наружные размеры дверной коробки должны быть меньше измеренной величины. Например, у вас получилось 780 мм, ищите блок с параметрами 700 мм. Более широкие в этот проем не вставить.

Самая полная комплектация межкомнатной двери — с коробкой, доборами и наличниками
При выборе двери обращайте внимание на комплектацию. Есть три вида сборки:
- Дверное полотно. Коробку покупаете отдельно.
- Двери с коробкой. Все в комплекте, но коробка в виде отдельных досок. Придется запиливать углы и соединять, навешивать петли самостоятельно.
- Дверной блок. Это готовые к установки двери — собрана коробка, навешены петли. Только подрезать по высоте боковины, ровно выставить и закрепить.
При одинаковом качестве дверного полотна цены на эти комплекты отличаются значительно. Но и разница во времени, которое потратите на установку, приличная.