Длина плинтуса напольного пластикового. Какой ширины бывают плинтуса для пола?
- Длина плинтуса напольного пластикового. Какой ширины бывают плинтуса для пола?
- Размеры плинтуса для пола. Виды напольного плинтуса, плюсы и минусы каждого, размеры
- Длина плинтуса пвх.
- Высота плинтуса напольного. Какого размера должен быть плинтус
- Толщина плинтуса напольного. Основная информация о плинтусах
- Высота плинтуса пластикового. Стандартные размеры пластикового плинтуса
- Длина плинтуса МДФ. Виды плинтусов МДФ
Длина плинтуса напольного пластикового. Какой ширины бывают плинтуса для пола?
Можно ли покупать штучный стройматериал, не зная или хотя бы примерно не представляя его геометрических показателй? Вопрос риторический – конечно же, это было бы неправильно. Так и чтобы рассчитать необходимое для оформления комнаты количество планок, помимо периметра помещения необходимо знать также их линейные размеры.
Самый простой показатель – это длина плинтуса пластикового, которая особым разнообразием не отличается. Ее стандартное значение – 2,5 м. Возможно, такая длина связана с вопросом удобства транспортировки.
Самую большую трансформацию претерпело сечение планок. Ширина варьируется в интервале 15-23 мм, что же касается высоты, то она может достигать примерно 150 мм, если это модель с кабель каналом. Наиболее распространены размеры порядка 55(65)*22(23) мм.

Примерный размер багета.
Размеры плинтусов из других материалов:
- Пластиковый плинтус. Стандартная длина багета ПВХ — 2,5 м. А вот в поперечном сечении размеры профиля претерпели большую трансформацию. Ширина плинтуса для пола по нижнему катету составляет от 15 до 23 мм. Высота же планки может достигать 150 мм. В стандартных квартирах, с потолком 2,7 м чаще всего устанавливают багет напольный пластиковый, размеры которого в высоту колеблются от 55 до 65 мм, и в ширину 23 мм, как правило, это планки с встроенным кабель-каналом.
- Металлический (алюминиевый) плинтус. Предназначен в основном для создания высокопрочных и надежных элементов, где наблюдается повышенная влажность. Особо ценятся такие плинтуса в помещениях, оформление которых произведено в стиле хай-тек. Высота таких планок составляет от 4 до 10 сантиметров, а ширина напольного плинтуса из металла подбирается исходя их присутствия в его конструкции кабель-канала.
- Керамический плинтус. Также популярен при производстве багетов-бордюров. Подобный материал отлично сочетается с кафельными и керамогранитными полами. Обычно их высота не бывает больше 4 сантиметров. Подбирается элемент исключительно при произведении расчетов при укладке плиток.
- Деревянные и шпонированные плинтуса. Сегодня на рынке представлен большой выбор широких и узких фасонных деревянных профилей, стандартная длина которых 210, 230, 250 и 300 см. Высота и ширина планок из дерева обусловлена средними размерами типового жилья. В том числе выпускаются широкие деревянные модели по евростандарту. Материалы и форма во многом зависят от производителя, но покупательский спрос в купе с конкуренцией задают типовые размеры по высоте и ширине планок.
- Другие. Кроме описанных выше, сейчас для отделки востребованы профили из специфичных материалов. Так для плитки оптимальным вариантом является керамический плинтус, ширина такого багета может колебаться от 2,5 до 10 см. Для столешниц из пластика целесообразно использовать профиль ПВХ шириной 3,0 см. Для каменных рабочих поверхностей стандартная высота плинтуса 3,0-5,0 см, хотя при необходимости можно отлить или вырезать любой размер.
Размеры плинтуса для пола. Виды напольного плинтуса, плюсы и минусы каждого, размеры
В продаже представлен огромный выбор плинтусов. Они различаются между собой многими параметрами: материалом, из которого изготавливаются, размером, формой, стоимостью. Каждый предложенный вариант имеет свои плюсы и минусы, типовые размеры.
Дерево (массив) | Отлично подходит к самым популярным вариантам напольного покрытия – ламинату и паркету Имеет аккуратный, привлекательный вид Самый безопасный и экологичный вариант Часто выбирается для детских комнат | Непластичный Склонный к повреждениям Неустойчивый к влажности и резкой смене температур Должен периодически заново покрываться лаком Требует особенного регулярного ухода | 15-25 на 40-120 |
ПВХ | Универсальный, с минимальным весом (это делает его установку особенно удобной и простой) Дешевый, практичный, гибкий, не боящийся влаги. Продается в большинстве магазинов | Простой вид Мало вариантов дизайна и расцветок Неустойчивый к ультрафиолету При нагревании может выделять вредные для здоровья человека вещества Не рекомендован к использованию в детских комнатах | 22-23 в ширину. Высота может доходить до 85 вместе с кабельным каналом |
МДФ | Доступный по цене С огромным выбором форм и цветов Простой в установке Есть возможность интересно сочетать его с разными видами напольных покрытий | Портится при повышенной влажности Быстро изнашивается | 15-25 на 40-120 |
Полиуретан | Долго служит, медленно изнашивается Устойчивый к влаге Имеет минимальный вес Огромное разнообразие структур (среди них встречаются и жесткие, и гибкие варианты) Можно красить | Допустимо окрашивать материал только особыми составами на водной основе При поперечной укладке образует заметные щели, которые необходимо время от времени заполнять | 15-30 на 70-150 |
Пробка | Хрупкий, может быть легко поврежден при физическом воздействии Плохо переносит повышенную влажность Мало вариантов дизайна | 10-20 на 40-100 | |
Металл | Самый надежный и долговечный вариант. Имеет оригинальный интересный внешний вид Становится крепкой поддержкой для гипсокартона | Большой вес Подходит не для всех помещений | Ширина подбирается с учетом особенностей кабель-канала. Высота – 35-120 |
Дюрополимер | Тяжелый и плотный Материал сложно разрезать и подобрать для него крепежи Минимальный выбор форм, цветов. | 15-30 на 70-150 | |
Керамогранит | Выглядит изящно и эффектно Прочный Устойчивый к плесени и влаге С максимально долгим сроком использования Большой выбор форм и расцветок | Ширина – 16-90. Высота подбирается индивидуально. В продаже представлен огромный выбор плинтусов, которые отличаются между собой материалом, размером, формой и стоимостью. Каждый из предложенных вариантов имеет свои плюсы и минусы, типовые размеры. Дерево (массив)
Типовые размеры: 15-25 на 40-120 PVC
Типовые размеры: 22-23 в ширину, высота может доходить до 85 вместе с кабельным каналом МДФ
Типовые размеры: 15-25 на 40-120 Полиуретан
|
Длина плинтуса пвх.
Монтаж плинтуса является, по сути, завершающей стадией ремонта и выполняется относительно нетрудно. Однако, и в этом деле есть свои особенности, на которые стоит обратить внимание, чтобы не загубить общий вид помещения и не испортить дорогой материал.
Ширина
Как мы уже упомянули в предыдущем абзаце, ширина изделия во многом влияет на общий вид помещения. Кроме того, в зависимости от ширины меняется и уровень трудности установки и монтажа напольного плинтуса из древесины.
Основную трудность, как правило, вызывает стыковка плинтуса по углам. Чтобы не ошибиться, лучше при зарезке кромок использовать специальный инструмент — стусло. Учтите, что если плинтус широкий и массивный, для монтажа лучше использовать болгарку вместо ножовки.
Для крепления рекомендуется использовать шурупы. В отличие от синтетических материалов, дерево может плохо воспринять химические клеящие составы: они не будут позволять материалу сужаться и расширяться, а такие процессы неизбежны у большинства пород древесины.
Особенности установки плинтусов из МДФ и дерева
Установка профилей из дерева и МДФ усложнена тем, что у этих моделей нет стыковочных элементов, поэтому, кроме рулетки, карандаша, строительного уголка и дрели, потребуется специальное стусло для запилки углов и ножовка.
Монтаж плинтуса напольного деревянного лучше начинать от дверного проема, слева направо.

Установка плинтуса напольного своими руками, схема монтажа деревянного профиля
Сначала два профиля запиливаем под внутренний угол. Когда вы убедились, что стык ровный, на одной планке отмеряем расстояние до проема, отчерчиваем, и отпиливаем под прямым углом. Вторая планка, по длинной стене, вмещается целиком, чтобы стыки были незаметны, и не портили после установки интерьер помещения, ее необходимо с другого конца запилить под углом в 45о. Все торцы аккуратно шлифуются. После того, как детали подогнаны, они крепятся к основе с помощью саморезов или гвоздей. Подгонка и установка последующих плинтусов производится аналогично. После того, как плинтуса установлены, щели замазываются шпатлевкой, поверхность шлифуется, далее можно наносить финишное покрытие.
Так как устанавливать деревянные элементы очень сложно без определенных навыков, предлагаем посмотреть, как правильно устанавливать плинтуса напольные, как крепить,
Монтаж деревянной галтели
А вот как прибить плинтуса на линолеум или ламинат, и подойдёт ли для этого изделие из ПВХ? Для того чтобы ответить на такие вопросы, важно рассмотреть ещё и установку деревянного плинтуса. Так как до начала широкого применения поливинилхлорида именно он был хозяином этой ниши
В первую очередь следует понимать, что багеты из дерева устанавливать гораздо сложнее. И чтобы не испортить изделие, стоит задуматься, сколько стоит прибить плинтус у специалиста. Потому что на возмещение поломанных деталей может уйти большая сумма денег.

Не уверены? Тогда лучше доверьтесь специалистам
Сложности
Если же вы не сомневаетесь, то идём дальше. Сам процесс имеет такие же шаги, как и установка пластикового багета на саморезы и дюбеля. Только в вопросе, как прибить деревянный плинтус, необходимо быть более внимательными и учитывать особенности помещения.
Например, саморез, загнанный под неправильным углом, может расколоть поверхность. На неровной стене возможен разлом изделия. Также на деревянном фризе намного сложнее сделать ровный угол. Тут уж без стусла лучше не экспериментировать.
Отдельное внимание стоит уделить, конечно же, стыкам. Если в случае с пластиком на месте всегда можно подправить края острым ножом, то деревянную панель надо всё время тщательно обрабатывать в случае неудачной стыковки

Использование шуруповёрта в процессе установки
Перед процессом монтажа изделие должно несколько дней находиться в комнате. Чтобы древесина акклиматизировалась и была более устойчивой во время работы с ней. Поверхность желательно обработать веществом, защищающим от плесени.
Если вы разобрались, как прибить деревянные плинтуса, то результат будет выглядеть так
ПВХ и дерево
На основе всего перечисленного определим, что всё же лучше использовать для пола покрытого линолеумом или ламинатом.
Пластиковый фриз, имеющий окраску древесных оттенков, визуально будет неотличим с деревянным изделием. Зато в сложности установки дерево значительно проигрывает.
Пластиковую галтель соответствующей окраски трудно со стороны отличить от деревянной
Если для того, чтобы научиться, как прибить пластиковые плинтуса, достаточно придерживаться точных инструкций и рекомендаций, то с деревом желательно уже иметь некоторые навыки.
Ну и ещё всегда актуальна цена вопроса. Пластиковый багет значительно дешевле.
Высота плинтуса напольного. Какого размера должен быть плинтус
Стандартные размеры напольного пластикового плинтуса:
- длина: до 2,5 м, за редким исключением можно найти модели на полметра больше или меньше;
- ширина: от 1,5-2,2 см;
- высота: от 1,5 до 12 см и более.
Наиболее популярны размеры 2,3х6х250 см или 5,5(6,5)х2,2(2,3) см. Лучше отдавать предпочтение плинтусам с кабель-каналами. Некоторые из моделей способны «замаскировать» проводку, диаметром в 1см. Устанавливать их несложно, но зато по квартире не будут разбросаны провода, что особенно небезопасно, если в доме есть малыши или домашние животные.

Плинтус может быть универсальным, то есть подходить под любое напольное покрытие или специальным для ковролинов и линолеумов. Особенности второго типа: наличие Г-образной конструкции, в паз плинтуса вставляется край ковролина, что позволяется визуально сделать планку продолжением пола.


Выбор размеров плинтуса как гармоничного элемента интерьера должен начинаться с представления общего дизайна помещения и типа напольного покрытия. Если комната маленькая или имеет низкие потолки, лучше выбрать узкий и невысокий плинтус (до 4,5 см). И, наоборот, для просторной залы с высокими потолками подбирают массивные плинтуса (от 5 см). Как будет выглядеть плинтус в декоре комнаты можно увидеть на фото.



Размеры плинтуса и материал, из которого он изготовлен, и бренд формируют его цену. Одна планка бюджетной пластиковой модели (5,8х2,2х250 см) с кабель-каналом обойдется в столице от 74,3 руб. Более дорогие: 255, 755 и свыше 1 000 руб. за одно изделие. Деревянные плинтуса обойдутся дороже даже в эконом-сегменте, минимальные цены стартуют от 160 руб. за планку с параметрами 5,8х1,8х260 см. и типом материала МДФ под лаковым покрытием.
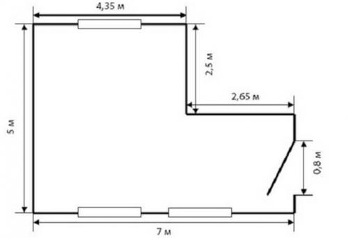
Чтобы подсчитать, сколько плинтуса понадобится, нужно суммировать длину всех стен, вычесть размеры дверных проемов и добавить к длине каждой планки по 5 см. Это необходимо сделать для экономии расхода материала. Схема замеров ниже.

По высоте, рельефности и фактурности плинтуса, необходимо учесть общий дизайн и цветовое решение комнаты. Стоит учесть, чем больше высота плинтусов, тем визуально он будет делать потолок ниже, а пол меньше. Поэтому, если помещение совсем маленькое лучше выбирать планки минимальной высоты в тон напольному или настенному покрытию.
Толщина плинтуса напольного. Основная информация о плинтусах
В начале своего существования такой декоративный элемент как плинтус имел стандартную форму прямоугольного треугольника с внутренними сторонами (катетами) от 3 до 4 сантиметров шириной. Тогда его изготавливали из недорогой древесины, выкрашивали в цвет, соответствующий имеющемуся напольному покрытию.
Эту конструкцию устанавливали на стыке пола и стен таким образом, что она плотно закрывала имеющиеся щели. Учитывая достаточные размеры половых плинтусов, производители дополнительно придавали оригинальный рельеф внешней стороне (гипотенузе), чтобы декоративный элемент гармонично вписывался в интерьер помещения. Читайте также: " Как выбрать и установить гибкий плинтус для пола – особенности ".
На современном строительном рынке покупателю предлагается на выбор огромное разнообразие напольных плинтусов, различимых по ряду параметров:
- материал, используемый при изготовлении;
- функциональность;
- форма и особенности конструкции.
Естественно, не стоит забывать и про размеры: длина, высота и толщина плинтуса для пола, значительно влияющие на основные характеристики данного элемента. С этой стороны к современным плинтусам придраться сложно, поскольку они стали более изящными и создают меньше проблем при расстановке в помещении мебели и техники, а также при монтаже основных объектов интерьера.
- Широчайший ассортимент изделий из древесины обуславливается обилием разновидностей материала. Существуют как цельные плинтуса, вырезанные из древесного массива, так и конструкции обитые шпоном ценных пород. В этом случае высота плинтуса напольного из дерева может быть от 3 до 30 сантиметров, а для ширины устанавливаются стандартные значения – 1,5-2,5 сантиметра. Ширина не меняется с той целью, что в помещении не должно быть утеряно место, на которое может быть установлена мебель или техника. Если же того требует задумка дизайнера, то на заказ могут быть произведены и более широкие изделия.
- Другой не менее популярный материал для изготовления декоративных плинтусов – пластик . Разнообразие пластиковых плинтусов также поражает. Обычно высота плинтуса напольного пластикового составляет от 5 до 6,5 сантиметров. Увеличивают ее исключительно для решения определенных декоративных или функциональных задач.
К примеру, очень популярным изделием в последнее время становится напольный плинтус с кабель каналом размеры которого увеличиваются для создания дополнительного пространства с внутренней стороны.
Под такой плинтус можно не просто закладывать проводку, но и закреплять ее, что значительно повышает безопасность и эстетичность помещения. Каждый владелец понимает, что его дом или квартира лучше будет выглядеть на фото или при визуальном осмотре, если по комнатам не будут висеть паутины проводов.
Рекомендуется подбирать плинтус заранее, несмотря на то, что использовать его придется лишь в завершающей стадии ремонтных работ. Причина такой спешки проста – плинтус с кабель каналом размеры полости для закладки проводов может иметь самые разные, а значит уже на этапе разведения электропроводки необходимо определиться с тем, каковы должны быть габариты данного элемента. Уложить в такой канал можно не только одиночные провода разного сечения, но и толстые пучки кабелей.
Пропорции плинтусов из других материалов:
- Металл (алюминий) предназначен в основном для создания высокопрочных и надежных элементов, где наблюдается повышенная влажность. Особо ценятся такие плинтуса в помещениях, оформление которых произведено в стиле хай-тек. Высота таких планок составляет от 4 до 10 сантиметров, а ширина напольного плинтуса из металла подбирается исходя их присутствия в его конструкции кабель-канала.
- Керамика также популярна при производстве плинтусов-бордюров. Подобный материал отлично сочетается с кафельными и керамогранитными полами (прочитайте также: " Керамогранитный плинтус – виды и преимущества "). Обычно их высота не бывает больше 4 сантиметров. Подбирается элемент исключительно при произведении расчетов при укладке плиток.
Стоит обратить внимание на то, что длина плинтуса напольного по стандарту составляет от 2 до 3 метров. Это позволяет транспортировать элементы без риска их повредить и осуществлять монтаж с минимальным количеством стыков между планками.
Только керамические изделия имеют меньшую длину, равную ширине одной плитки, чтобы швы между элементами идеально совпадали со швами напольного покрытия. На фото и при визуальном осмотре очень красиво будут смотреться покрытия, в которых швы как бы наползают на стены.
Высота плинтуса пластикового. Стандартные размеры пластикового плинтуса
В Советском союзе габариты плинтусов жёстко регламентировались государственными стандартами. Сегодня такие правила уже упразднены, и каждый завод выпускает свою продукцию на основании индивидуально разработанных ТУ. В то же время, пластиковый плинтус считается типовым элементом отделки, и, при его изготовлении, производитель прибегает к унификации следующих базовых параметров:
- Длина.
- Ширина.
- Высота.

Рис. 2. Стандартная длина плинтуса
Данные размеры варьируются, в зависимости от конструкции или функционального назначения изделия. Ниже подробно описан типовой размерный ряд пластиковых плинтусов.
Длина
Учитывая, что пластиковый плинтус относится к продукции эконом класса, наиболее часто встречающемся габариты составляют 2,5 или 2,7 м, что соответствует международным стандартам для данного изделия. Этот размер связан с транспортными габаритами, что облегчает его перевозку.

Рис. 3. Пачка стандартных плинтусов длиной 2,7 м
Исключения составляют лишь гибкие плинтуса, которые могут поставляться в продажу в виде рулонов. Их длина может составлять 3, 4 метра или более, в зависимости от технологических особенностей производственной линии завода-изготовителя.
Ширина
На рынке представлено множество пластиковых плинтусов с разными габаритами. Продавцы в торговых точках и отделочники классифицируют изделия на 3 базовых категории по критерию ширины:
- Узкие. Такие плинтуса представлены в виде гибких ПВХ лент с отгибами для сопряжения со стенами и полом, соответственно. Их ширина не превышает 30 мм, что значительно ограничивает их применение, так как толщина демпферной прослойки между горизонтальными и вертикальными элементами отделки может превышать габариты плинтуса. Чаще всего, такие изделия применяются при устройстве коврового покрытия.

Рис. 4. Узкий пластиковый плинтус
- Средней ширины. Стандартные изделия, которые повсеместно распространены в широкой продаже. Профиль такого плинтуса позволяет устраивать его поверх ламината, паркетной доски и других типов напольного покрытия. Отступ от стены варьируется в пределах от 30 до 50 мм.

Рис. 5. Пластиковый плинтус средней ширины
- Широкие. Многофункциональные изделия с внутренними кабель-каналами для маскировки силовых или слаботочных кабелей. Ширина зависит от глубины встроенного посадочного места под инженерные коммуникации и может достигать 100 мм. Средний размер профиля изделия колеблется в пределах 50 – 70 мм.

Рис. 6. Широкий пластиковый плинтус
Как правило, большинство пластиковых плинтусов производятся на территории нашей страны и не требуют оформления индивидуального заказа.
Высота
Пластиковый плинтус представлен в торговых точках в широком ассортименте. Потребитель имеет возможность выбрать наиболее подходящее для него изделие по критерию оптимальной высоты. Существует 3 базовых параметра высоты пластикового плинтуса:
- Низкий. Такие изделия используются исключительно в декоративных целях для маскировки швов между полом и стенами. Их предельная высота не превышает 40 – 50 мм, а фиксация производится на жидкие гвозди или другие адгезионные составы.

Рис. 7. Низкий пластиковый плинтус
- Средней высоты. Классический вариант, широко распространённый среди большинства потребителей. Представляет собой объёмный элемент, полый внутри, соединённый рёбрами жёсткости для повышения прочности на изгиб. Высота такого плинтуса варьируется в пределах от 50 до 90 мм.

Рис. 8. Пластиковый плинтус средней высоты
- Высокий. Предназначен для визуального разграничения пространства комнаты. Подбирается под оттенок напольного покрытия, либо межкомнатных дверей, монтируется на кронштейны. Средняя высота составляет в пределах 90 – 120 мм. Внутри конструкции имеются кабель-каналы для прокладки силовых проводов в изоляции.

Рис. 9. Высокий пластиковый плинтус
При выборе плинтуса учитывается такой показатель, как жёсткость, что особенно актуально для радиусных стен, так как некоторые модели не могут изгибаться с радиусом менее 1,5 – 2 метров, что значительно ограничивает их применение.
Длина плинтуса МДФ. Виды плинтусов МДФ
Профиль изготавливается из спрессованной древесной стружки, а отличаются изделия внешним видом и покрытием:
Под покраску (L-Декор, Smartprofile Paint, Tarkett) — это белые плинтусы, которые можно окрасить в любой цвет. Особенно актуальны белые плинтусы, а также цветные в тон к стенам.
Шпонированные — имеют финишное покрытие из принтованной пленки, имитирующей древесину. Часто выпускаются в идентичном дизайне к ламинату (Tarkett, Quick Step). Установка на монтажную планку, специальные клипсы или на клей.
3. С полимерным покрытием (Deartio). Обычно это белые профили, но есть также цветные, серые, черные. Они сразу готовы к установке, не требуют окрашивания. Покрытие прочное и износостойкое, хорошо переносит влагу и мытье.
Плинтусы под покраску из МДФ тоже бывают разных видов по внешней обработке: гладкие без грунта, текстурированные, грунтованные. Окрашивать изделия рекомендуется акрилатными или алкидными красками на водной основе.
У многих торговых марок можно приобрести соединительные элементы, которые позволяют эстетично оформлять углы и стыки плинтуса при монтаже.
плинтус с мягким краем
вдохновившись мечтами людей о красивых мдф изделиях, установленных с не очень ровными стенами, производители создали. пластичный край плотно прилегает к стенам по всей их поверхности, даже если при отделке остались перепады.Скрытый плинтус
Еще один вид, появившийся недавно. Представляет собой систему для скрытого монтажа, когда профиль из алюминия устанавливается на этапе отделки стен, а сверху закрывается МДФ вставкой, которая оказывается на одном уровне с плоскостью стен.
Такое решение прекрасно подходит для современных интерьеров. Скрытый профиль при установке светодиодной ленты позволяет создать эффект парящих стен. Плинтус не выпирает, а значит, не создает препятствий для раздвижных дверей, позволяет вплотную подвигать мебель к стенам.