Разрезать профильную трубу в длину. Технология резки труб в размер
- Разрезать профильную трубу в длину. Технология резки труб в размер
- Резка профильной трубы под углом. Шаблон для резки профиля под 45 градусов
- Как разрезать трубу вдоль. Требуемые инструменты
- Для профильной трубы. Конструкция профилегиба
- Резка профильной трубы. Технология резки профильных труб
- Приспособление для резки профильной трубы. Самодельные приспособления для болгарки
Разрезать профильную трубу в длину. Технология резки труб в размер
На подготовительном этапе очень часто требуется разрезать трубу, поэтому нужно заранее определиться, какие инструменты подойдут именно для вашей ситуации и масштабов производства. Механическое оборудование менее долговечно и эффективно. В особенности, для резки труб большой толщины.
Термические способы на сегодняшний день предпочтительнее, однако агрегаты для такой резки более дорогие по сравнению с механическими устройствами. На предприятиях, где резка труб требуется всегда, устанавливается специальное оборудование.

Классические методы обработки трубных изделий:
- термический способ, когда работа производится плазменным, лазерным или газовым оборудованием;
- механический, когда используют роликовый труборез, болгарку, ножовочный станок.
Отдавая предпочтение тому или иному способу, нужно опираться на масштабы работы, а также учитывать долговечность оборудования.
- Термические методы резки.
Более современная термическая резка труб в размер отличается от механического метода низкими энергетическими затратами и повышенной производительностью.
С помощью газокислородного оборудования получается ровная и гладкая кромка трубы. Суть метода можно выразить так: обогащенный кислородом газ запускает процесс плавления металла по линии реза, а затем остатки расплавленного металла сдуваются с поверхности газовой струей. Для выполнения сложных монтажных работ применяются соединенные в один комплект несколько аппаратов газовой резки.
Теперь немного о плазмотроне и о том, что представляет собой резка плазмой. Состояние плазмы возникает благодаря нагреванию воздушной смеси до очень высокой температуры, дополнительным фактором здесь служит электрический ток, вызывающий ионизацию газа. Струя плазмы мгновенно расплавляет металл по линии реза. Выпускаются плазмотроны ручные, автоматические и полуавтоматические.
Резка труб на лазерном станке. Этот процесс полностью автоматизирован, программа может запускать выполнение сразу нескольких операций: сверление отверстий, фрезеровку, обработку кромок. Размер толщины стенок обрабатываемого материала до 6,4 мм, длина до 6,5 мм.

- Механические методы.
Как правило, эти способы ручные, их применение требует значительных физических усилий и временных затрат, и по этим причинам такие технологии применяются для разовых работ.
VT-metall предлагает услуги:
Резка труб в размер болгаркой часто применяется в бытовых целях и для выполнения несложных операций. Но в любом случае ее лучше доверить профессиональному исполнителю. Заготовку предварительно закрепляют тисками, при резке направлять болгарку нужно в ту же сторону, куда вращается абразивный диск. Очень важно при работе соблюдать инструкцию по эксплуатации и меры предосторожности.
К требованиям безопасности относится обязательное использование работником очков и защитной маски. На болгарке должен быть надет защитный кожух. При необходимости можно осуществлять резку изделий, имеющих большой размер толщины стенок, но это существенно увеличит количество расходных материалов.
Обработка труборезом. Резка выполняется одним или несколькими роликами, которые являются в данном оборудовании режущим элементом. Давление на металл вызывает его разрушение, после чего частицы мгновенно удаляются из зоны обработки. Резцы вставлены в специальную обойму, которую приставляют к месту разреза. Движения труборезом производят вперед-назад, надавливая на ролики. По многим причинам труборез не подходит для постоянного использования.
Резка профильных труб в размер с помощью ножовочного станка. Здесь уже можно говорить о промышленном использовании оборудования на различных производствах. Операция выполняется закрепленной в станке ножовкой. Для выполнения работы изделие надежно закрепляют с учетом направления резки. Преимущество станка в его универсальности.
Недостатки – наличие острых необработанных кромок, что в некоторых случаях считается браком, и большие потери времени при обработке толстостенных труб, имеющих большой размер.
Резка профильной трубы под углом. Шаблон для резки профиля под 45 градусов

Чтобы быстро разметить и отрезать профильную трубу под прямым углом, используется обычный угольник, который можно купить в любом строительном магазине.

В принципе, при помощи этого инструмента можно и разметить заготовку под углом 45 градусов, прикладывая к угольнику линейку. Однако в некоторых ситуациях (особенно при больших объемах работ) это не всегда удобно. Поэтому для резки профиля под 45 градусов можно сделать простой шаблон.
Основные этапы работ
Для изготовления данного самодельного приспособления потребуется два небольших отрезка профильной трубы: 60х60 мм и 40х40 мм. Размечаем их при помощи угольника с линейкой под углом 45 градусов и отрезаем болгаркой.

Далее сверлим в кусках профилях по одному отверстию и разрезаем заготовки вдоль пополам — в итоге получилось два готовых шаблона. На следующем этапе работ к просверленным ранее отверстиям необходимо будет приварить гайки, в которые вкручиваются прижимные шпильки.

К верхним концам шпилек привариваются воротки, изготовленные из стального круглого прутка или других подручных материалов. Затем зачищаем места сварки болгаркой и самодельные шаблоны для резки профильных труб разных размеров под углом 45 градусов готовы к работе.

При помощи такого шаблона можно не только выполнять просто разметку, но и резать профиль, прижимая диск болгарки к кромке. Пошаговый процесс изготовления этих приспособлений смотрите в

Как разрезать трубу вдоль. Требуемые инструменты
Для того чтобы разрезать трубу вдоль ровно, очень важно подобрать правильный инструмент. От него во многом зависит качество работы. Итак, рассмотрим наиболее подходящие инструменты для работы над трубой:
- Браслетка с прорезью. Это оборудование предназначено специально для выполнения разреза. Оно удобно и позволяет выполнить работу качественно,
- Лобзик. Позволяет выполнить ровный и аккуратный разрез. В этом случае вам не придется приобретать специального оборудования,
- Напильник. И в этом случае разрез получается ровным и качественным. Однако работа как с напильником, так и с лобзиком, занимает достаточно времени,
- Болгарка. Инструмент позволяет выполнить работу быстро и относительно просто. Однако есть и минусы. Разрез получается недостаточно ровным.
Вы можете выбрать тот инструмент, который вам более подходит, или который уже имеется в вашей мастерской.
Выполнение работы
Сначала рассмотрим, как разрезать трубу вдоль ровно посредством браслетки с прорезью. Выполняется работа просто. Требуется надеть приспособление прорезью вверх на конструкцию, а затем, крепко держа конструкцию, выполнить надрез. Затем браслетка убирается, берется пила, помещается в отверстие приспособления. Браслетка крепится прорезью вниз. После этого вы можете разрезать трубу вдоль ровно.
Можно воспользоваться и другим методом. Труба кладется на гладкую поверхность. Затем она крепко фиксируется. Закреплять конструкцию необходимо с обеих сторон. Выполнить это можно с помощью массивных уголков. Для надежности рекомендуется закрепить конструкцию по всей ее поверхности с помощью бруска. Так можно предотвратить ее вращение при выполнении работы.
Затем отмечаются вершины. Шнуркой, смоченной в чернилах, выполняется контур. Измеряется размер окружности. Выполняется шаблон, представляющий собой нить длиной в половину окружности. Он фиксируется на гвоздях. От линии, выполненной ранее, обозначаются точки на другом краю конструкции. Затем можно разрезать трубу вдоль.
Делать это можно при помощи любого из инструментов, описанных ранее.
Есть и третий метод. Обозначаются две точки на поверхности. В соответствии с ними протягивается нить. Для четкого обозначения линии и предотвращения ее забивания строительным мусором можно закрепить на этом месте бумажный скотч. Край его должен соответствовать краю натянутой веревки. Именно этот край и обозначает место, по которому выполняется разрез. После этого можно разрезать трубу вдоль. Если разрез вы выполняется с помощью полотна от ножовки по металлическим поверхностям, для удобства работы рекомендуется прикрепить к краю полотна ветошь или другой материал. Они позволят надежней захватить полотно руками.
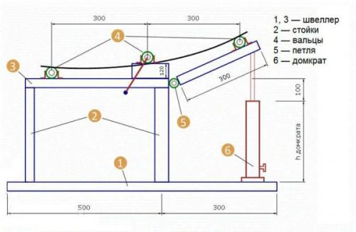
Для профильной трубы. Конструкция профилегиба
Станок для гибки профильной трубы конструктивно отличается от обычного. Это связано во-первых, с большей устойчивостью профиля к изгибающим нагрузкам, а во-вторых, с тем, что радиус изгиба требуется обычно большой. Потому в конструкции присутствуют три ролика. Два из них установлены стационарно, один остается подвижным. При помощи подвижного ролика и изменяется радиус кривизны. Вообще трубогиб для профильной трубы есть двух видов: со средним подвижным роликом и с крайним (правый или левый — по желанию).

Трубогиб для профильной трубы своими руками можно сделать разных размеров
Устройство трубогиба со средним подвижным роликом
Два крайних ролика крепятся на корпусе неподвижно. Они приподняты над плоскостью основания. Для среднего ролика варится специальная П-образная станина. В середине ее перемычки устанавливается длинный прижимной винт большого диаметра. К нижнему концу этого винта крепится третий валик (можно приварить). Вращая этот винт валик опускается и поднимается, изменяя радиус изгиба профильной трубы.

Конструкция трубогиба для профильной трубы с подвижным средним роликом
К одному из неподвижных роликов приваривается тучка, при помощи которой труба прокатывается через станок. Чтобы для прокатки можно было прилагать меньшие усилия, два неподвижных валика соединяются при помощи цепи. Для эффективной передачи крутящего момента к валикам приваривают звездочки (можно от велосипеда), к ним подбирают цепь. Такой простейший механизм делает гибку профильной трубы намного проще.
С крайним подвижным валиком
В данной конструкции подвижным делают правый или левый ролик. Он двигается вместе с частью основания. Эта часть соединяется с остальной станиной при помощи мощных металлических петель.

Чертеж гибочного станка для профильной трубы с подъемной платформой
Изменять высоту можно при помощи домкрата, как показано на чертеже. Высота платформы в этом случае выбирается в зависимости от высоты домкрата. Радиус изгиба изменяется подъемом подвижной части стола.

Трубогиб для профильной трубы с подъемной площадкой
В отличие от предыдущей конструкции этот трубогиб для профильной трубы приводится в движение от центрального валика — к нему приваривают ручку. Для уменьшения требуемого усилия можно также приварить звездочку к двум неподвижным валикам и передавать крутящий момент при помощи цепи.
Резка профильной трубы. Технология резки профильных труб
Профильные трубы получили широкое применение в быту. Материал используется для сооружения тепличных комплексов, лавочек, столов и иной садовой мебели, навесов, качелей и иных малых архитектурных форм. Именно по этой причине важно знать, как правильно выполняется резка профильной трубы под углом 45 градусов, 90°и так далее, а также вдоль.

Отрез профтрубы
Способы резки труб
Чтобы отрезать профильную трубу, в том числе и под определенным углом, можно использовать следующий инструмент:
- углошлифовальную машинку – болгарку (рисунок выше). Такой способ чаще всего применяется в бытовых целях, так как отличается простотой и доступностью оборудования;
- ножовку по металлу. Использование ножовки не отличается сложностью, но процесс выполнения работы достаточно трудоемкий;

Применение ножовки по металлу для резки профтруб
- электрический лобзик. Для резки металла потребуется приобретение специальной пилки с алмазным покрытием. Работа выполняется достаточно быстро;

Резка профтруб электролобзиком
- специальный станок для резки труб. Оборудование чаще всего используется профессионалами, так как отличается высокой стоимостью. В настоящее время специалистами используются два вида станков:
- оборудование с механической резкой, которая выполняется отрезным кругом или специальной пилкой;
- оборудование с лазером. Лазерная резка является более точной по сравнению с механическими аналогами.

Использование специального станка с лазерной резкой
При выборе любого способа важно уделить особое внимание техники безопасности. В ходе резки профтруб образуется металлическая стружка, которая может повредить руки и глаза мастера, поэтому перед выполнением работы важно надеть перчатки и защитные очки.
Как отрезать профтрубу болгаркой
Наиболее популярным способом резки в бытовых условиях является применение болгарки. Как ровно резать болгаркой профильную трубу? Основная проблема выполнения работы заключается в корректной разметке.
Для нанесения разметки можно использовать:
- рулетку, угольник, маркер (карандаш), строительный уровень. Простейшие инструменты позволяют достаточно точно разметить угол реза, но в ходе выполнения работы углошлифовальная машинка может отклониться от заданной линии (оборудование не опирается на подставки, а находится на весу, то есть в руках мастера), что приведет к ошибке. По этой причине данный способ используется крайне редко;

Нанесение разметки для реза при помощи угольника
Применение бумажного лекала
Самое простое приспособление для корректной резки под углом, например, для изготовления теплицы – это лекало, изготовленное из плотной бумаги.
Чтобы сделать рез под прямым углом (90°), необходимо:
- плотным листом бумаги обернуть трубу и добиться полного совмещения краев;
- зафиксировать лист в данном положении;
- режем профильную трубу вдоль края бумаги.

Рез трубы под прямым углом
Чтобы произвести рез профтрубы под углом 45°, необходимо сложить лист бумаги пополам (по гипотенузе) и обернуть трубу так, чтобы совместить острые концы полученного треугольника.

Лекало для отрезки под углом 45°

Автоматическое изготовление бумажного лекала компьютерной программой
Использование стусла
Корректно отрезать профтрубу под каким-либо углом позволяет строительное стусло. Приспособление применяется в следующем порядке:
- профильная труба закрепляется внутри устройства и выравнивается под определенным углом;
- при помощи встроенной ножовки делается предварительный рез;

Рез под углом при помощи строительного стусла
- труба вынимается из стусла и прорезается по заготовке болгаркой. В данной ситуации место реза будет выделено и риск ошибки сводится к нулю.
Готовый мерительный инструмент отличается высокой стоимостью. Чтобы снизить финансовые затраты при выполнении строительных работ можно изготовить аналог стусла самостоятельно. Для этого изготавливается деревянный каркас с нишей под трубы и при помощи мерительных инструментов наносятся насечки под разными углами.

Приспособление для резки профильной трубы. Самодельные приспособления для болгарки
Возможности болгарки можно расширить не только за счет различных насадок, но и установив ее на специальные самодельные приспособления. В результате можно получить отрезной станок, с помощью которого появляется возможность точной резки металлических заготовок под любым углом. Кроме этого, болгарку можно установить на каретку, и использовать получившийся станок для резки листовой стали.
Отрезной станок из болгарки
Для того, чтобы понять, как из угловой шлифовальной машины (УШМ) сделать отрезной станок, можно посмотреть в интернете различные чертежи. Но они мало чем помогут, поскольку все размеры деталей все равно придется подбирать, исходя из размеров имеющейся в наличии у вас болгарки. Варианты исполнения приспособлений могут быть как простые, так и более сложные, требующие умения обращаться со сварочным аппаратом.
Вариант 1
Чтобы сделать данную приспособу для болгарки, потребуются навыки сварщика . Итак, нужно сделать следующее.
Сначала отрежьте от уголка (50х50 мм) 2 небольших куска. Размер их подбирается, исходя из габаритов блока редуктора вашей УШМ.
Далее, просверлите в них отверстия диаметром 14 мм и прикрутите уголки к УШМ, как показано на следующем фото. Если у вас нет подходящих болтов, то можно использовать шпильки с резьбой М14 . Только будьте внимательны, чтобы болты были не слишком длинными. Иначе в некоторых моделях УШМ они могут цепляться за крыльчатку, находящуюся в корпусе редуктора.
Не снимая уголки с болгарки, прихватите их сваркой. После этого, уголки можно снять и хорошо обварить.
Зачистите сварные швы шлифовальной насадкой для болгарки.
Затем нужно изготовить вращающуюся опору для рычага , на котором будет закреплен аппарат. Для этого подберите 2 трубы таких диаметров, чтобы одна могла без особых усилий входить другую.
Для более точного реза на трубки можно приклеить малярный скотч и начертить на нем линию.
Затем, проворачивая трубку, аккуратно разрежьте ее УШМ. Отрезок трубы меньшего диаметра должен быть короче на 20 мм (толщина 2-х подшипников) — она будет служить распоркой.
Подберите для более толстой трубы 2 подходящих под ее внутренний диаметр подшипника. После этого, вставьте тонкую трубку в толстую и запрессуйте с обеих сторон подшипники.
Затем в подшипники вставьте шпильку. Перед гайкой нужно обязательно проложить шайбу.
Когда поворотный механизм будет готов, к нему нужно приварить небольшой отрезок уголка.
На следующем этапе делается стойка для поворотного механизма из того же уголка 50х50 мм. Чтобы отрезки получились одинаковой длины, уголки можно стянуть струбциной и обрезать.
Также, не раскручивая струбцину, их можно сразу и просверлить.
Прикрепите уголки с просверленными отверстиями к уже готовому поворотному блоку с помощью гаек.
К данной стойке приварите уголок подлиннее, как показано на следующих фото.
Теперь необходимо определиться с длиной рычага , на котором будет закреплена УШМ. Делается это методом подбора, исходя из габаритов вашей болгарки. Можно на столе разложить детали и вычислить приблизительные размеры рычага, который лучше сделать из 2-х отрезков квадратной профильной трубы 20х20 мм.
Трубы также необходимо зажать струбциной и обрезать до одинаковых размеров.
После того, как все детали будут готовы, их можно сварить между собой, как показано на следующих фотографиях.
На следующем этапе можно прикрепить к готовой конструкции УШМ и еще раз проверить, что из этого получилось.